快保存!家里装修需要哪些图纸,90%的业主不知道!
李晓鹏
2021-08-24
相信有很多业主朋友都会有一个的问题。家装设计中需要哪些图纸?
小李今天就和大家分享一下。家居装饰行业,作为一个新兴行业,其设计图纸的标准与规范还远不如建筑图纸详细,现阶段还没有一个严格的统一标准,每个设计师都会有不同的图纸。虽然没有统一的标准,但家居设计图纸所涉及的种类,一般来讲还是有一定的相同模式的。
一、方案图
一般来讲,家居设计首先需要方案图。方案图主要包括平面布置图、顶面平面图、墙面展开图等。通常,室内总体布局、区域划分、地面材料、人流线组织、家具的摆放位置、拆砌墙示意等众多内容,都会在总平面布置图中体现。


二、效果图
方案图得到认同后,设计师需要绘制效果图。效果图因其直观、逼真的三维立体图面效果,更便于业主理解设计方案的含义。对于装修所选用的材料如家具、灯具、纺织品等,都要有形象的描绘,业主通过效果图,可以感受到工程完成后将呈现的效果。

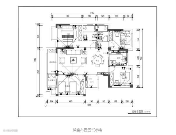
三、施工图和剖面详图
施工图,最简单的理解就是指导施工的图纸。也就是说,是工程正式施工前,由设计人员在图纸上先将工程以一种图纸语言的形式,进行工程施工的演习。一般,施工图是在方案图的基础上,对尺寸、材料、施工做法等作进一步的细化与表示。另外,施工图还要包括陈设与设备平面图、给排水平面图、供暖平面图、电气平面图、开关插座布置图、通风系统与空调图等有关专业图纸。

施工图一般来讲不是给业主看的,但施工人员通常必须以其为指导进行施工。一个设计的好坏,在内行人看来,更重要地是看其施工图的质量与水准。


施工图往往最后决定着工程质量的优劣,故一般好的公司都很注重施工图的绘制。如果施工图绘制不详细、校对审核等过程不完善,都可能造成施工无序、成本核算不清晰等问题,极易产生纠纷。