10.7万打造105㎡时尚轻奢风新居,墨绿色系+黄铜元素
天津Banana家装
2021-01-26
= 基本信息 =
房屋地址:东丽区 融创融园
装修类型:毛坯新房首装
建筑面积:105㎡ 三室两厅一厨两卫
实际完成费用:10.5万元
装修亮点:时尚轻奢风格、墨绿色墙面、灰蓝色经典橱柜、轻奢风浴室柜
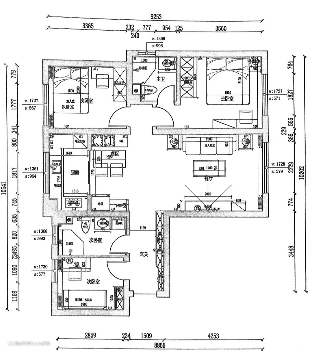
= 平面户型 =

▲户型总览
= 设计综述 =
本套房子是业主赵先生装修的第一套房子,选择了咱们Banana品质整包,在新居采用了欧洲进口及红星美凯龙主打品牌的2020年最新产品,结合德系标准化金标施工,最终以非常合适的性价比完成了新家。
房子的装修风格主打时尚轻奢,由咱们的全案设计师何老师设计。
从初期设计方案,到风格搭配、墙面颜色把控,以及业主的软装选择,都提供了很多建议。
非常荣幸能够一一实现业主对于家的设想,打造出令人满意的第一套新房。
我们一起来看看完装效果吧~
= 完装效果 =
- 玄关 -
▼



▲ 地面瓷砖:依诺设计
客厅看向玄关,利用玄关过道的宽度,左侧设置一整面柜体,有强大的储物功能,并且设计了换鞋凳区域,方便日常生活使用。
玄关右侧为小卧室和独立卫生间。
- 客餐厅 -
▼

▲ 玄关看向内部视角
左侧为餐厅、厨房区域,右侧为客厅区域。

▲客厅瓷砖:依诺设计
乳胶漆:德国进口都芳漆(欧盟蓝天使认证环保)

▲ 电视背景墙视角

▲ 客厅正面视角
客厅区域涂刷了一面墨绿色墙面,作为沙发背景墙,墙面搭配装饰金属条。打造出时尚轻奢的风格气质。

▲ 客厅瓷砖:依诺设计 踢脚线:英仑地板
客厅以及玄关地面选用灰咖色亮面瓷砖,通透度好、亮度高,搭配墙面装饰金属条。突出了时尚轻奢风格。
踢脚线选用棕咖色木纹款式,与地面瓷砖颜色搭配、过渡和谐。

▲餐厅瓷砖:依诺设计
乳胶漆:德国进口都芳漆(欧盟蓝天使认证环保)

餐厅区域的墙面与客厅墙面颜色统一,地面通铺灰咖色瓷砖,与餐厅吊灯相呼应。
装饰金属条、金色吊灯等轻奢元素,装点了餐厅的风格和氛围。

餐厅与厨房相连接,为了合理利用空间,餐厅进行了卡座的设计,底部还设置了储物空间。
墨绿色+姜黄色的撞色,与整个空间色调联动,又突显了时尚前卫的感觉。
- 厨房 -
▼

▲ 厨房瓷砖:博德精工
橱柜:恒茂经典 欧标E0级环保板材柜体

厨房选用了这款Banana家装的明星橱柜,很多客户都选择了这款橱柜。
灰蓝色质感柜体+金色轻奢装饰线条和金色把手。
每个细节都体现了轻奢风格,完美与装修整体风格契合。


▲ 厨房瓷砖:博德精工
根据厨房的户型,完美嵌入一组U字型橱柜。
地面和墙面瓷砖,搭配橱柜柜体颜色,选用了灰色瓷砖,突显厨房的质感。

▲ 全屋开关:罗格朗 legrand
灰色墙面瓷砖,搭配白色石英石台面,厨房整体色调简单、干净。

▲ 厨房门:超窄框长虹玻璃推拉门
厨房门选用了颜值很高的长虹玻璃推拉门,美观和实用性兼备的最佳选择。
玻璃门更具有时尚感,贯彻了时尚轻奢的装修风格。
- 主卧 -
▼

▲地板:英仑地板(宜家IKEA样板间同款)乳胶漆:德国进口都芳漆(欧盟蓝天使认证环保)

主卧与客厅涂刷了同样的墨绿色墙面,色调保持统一。选用黄铜壁灯,融入了轻奢元素。
卧室内墙面嵌入通顶白色大衣柜,与墨绿色墙壁轻重色搭配和谐,金色把手点缀。


▲ 英仑 时尚人字拼地板
地面铺贴时尚人字拼地板,使得主卧的空间感更好,颜值加分。

▲ 卧室门:什木坊 实木复合烤漆门

卧室选择了奶灰色的实木复合烤漆门,颜色饱和度相对低一些,视觉上相对舒适。同时也保有了灰色的质感。
- 主卧卫生间 -
▼

▲ 卫生间瓷砖:依诺设计 全套卫浴:澳斯曼 AOSMAN
吊顶:罗格朗 legrand

▲ 浴室柜:澳斯曼 AOSMAN

墨绿色浴室柜+金色不对称把手,充满了时尚轻奢的感觉。搭配浅灰咖色瓷砖,与全屋的色调呼应,突出视觉效果与整体质感。

▲ 恒温花洒:澳斯曼 AOSMAN 瓷砖:依诺设计

淋浴区背景墙,融入了几何不规则深蓝色装饰花片,作为腰线丰富了视觉效果。提升了卫生间的颜值和变化性。
搭配金属质感恒温花洒,视觉感受和使用体验感兼备。

▲ 卫生间门:什木坊 实木复合烤漆门
卫生间门选用干净的奶灰色木门,搭配磨砂玻璃,与浅灰咖色瓷砖相衬。
- 次卧 -
▼

▲地板:英仑地板(宜家IKEA样板间同款)
乳胶漆:德国进口都芳漆(欧盟蓝天使认证环保)
次卧涂刷了活泼一些的绿色,仍然与全屋色调搭配一致。地板与主卧同样通铺时尚人字拼地板。

▲ 卧室内部视角
卧室内设置了灰色衣柜+书桌,合理利用了空间,满足储物和日常使用需求。

▲ 英仑 时尚人字拼地板 地板细节图


▲ 卧室门:什木坊 实木复合烤漆门
- 小卧室 -
▼


▲地板:英仑地板(宜家IKEA样板间同款)
乳胶漆:德国进口都芳漆(欧盟蓝天使认证环保)
小卧室面积不大,涂刷了灰蓝色墙面,饱和度低的颜色,给人很舒适的感觉。

地板与主次卧款式一致,带一些蓝色调,与墙面颜色搭配和谐。

▲ 门:什木坊 实木复合烤漆门
- 独立卫生间 -
▼

▲ 卫生间瓷砖:博德精工 全套卫浴:澳斯曼 AOSMAN
吊顶:罗格朗 legrand


独立卫生间的色调以灰色为主,灰咖色大理石纹浴室柜,搭配金色把手,材质感和轻奢风格显著。


▲ 恒温花洒:澳斯曼 AOSMAN 瓷砖:博德精工

▲ 卫生间门:什木坊 实木复合烤漆门
以上就是本套105㎡时尚轻奢风,东丽区 融园汇莲馨苑 新房实拍案例的全部内容。更多实拍完装案例,敬请期待。