1居变2居【40㎡】打掉阳台、位移客厅、借用过道做餐厅
桔+整装I翻新改造
2021-02-06
很多人都会有这样一种想法:小房子、小户型、需求多且预算有限,就会没有任何设计在里面,更毫无风格可言?事实并非如此!越是空间有限,越是预算有限,就越需要设计师。
寸土寸金的地段,合理花费每一分钱,利用每一寸空间,真正做到鱼和熊掌可以兼得,是设计师的职责所在。
这是一套小户型案例,业主是一对新婚小夫妻,对居住要求极高。希望通过设计师改造,能多一间卧室,扩大卫生间。整体现代风格,个性又温馨。房子虽小,但家是自己的,如果只有房子而没有家的感觉,生活将毫无意义。
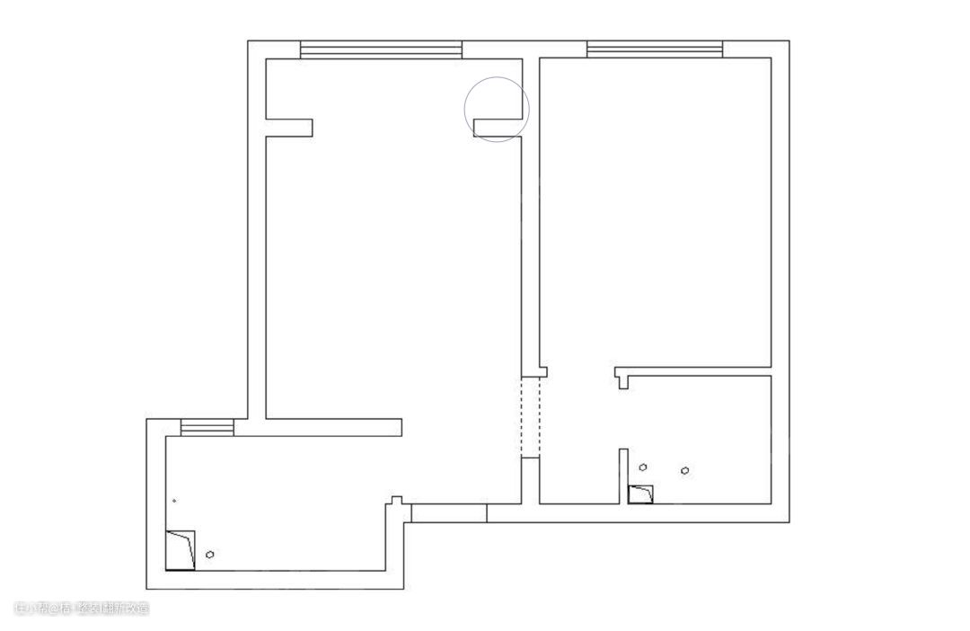
原始户型图

纵观房子本身的格局来看,没什么问题,是够用的,但也仅仅是够用而已。父母暂住或者未来孩子需要独立空间了,都不能满足。
改造方案图

1、借用客厅的部分空间,又扫入原阳台,形成一个包含榻榻米、衣柜、书柜、书桌的多功能空间。
2、卫生间向卧室推进了墙壁,整体扩大了一些,不光卫浴坐便放置起来更舒服,还多了储藏空间,另一边的主卧也并没有显得逼仄。
客厅

通过紫色与乳白色的墙面营造出明亮柔和的空间氛围,视觉上延长了客厅进深。

人字铺贴的深色木质地板搭配造型简练的浅灰色布艺沙发,精致又大气。

与次卧的连接选用玻璃推拉门,空间划分隔而不断,露而不尽,最大程度上不影响采光。
次卧

借出来的空间格外香,这里是安静的工作区,舒适的休闲区,朋友借住的客房,父母多住几天的温馨卧室……更是孩子长大后的独立儿童房,自然光最充分的学习空间。

绿植与棉布窗帘就放在石台上,入眼干净温润,明朗舒适,让人愿意一直在这里。
餐厅

餐厅的金属小圆桌与餐椅给整体空间带来一抹亮色。不管是二人晚餐还是朋友小聚皆是舒适惬意。 面积小,分区无望,就让客餐厅一体化,但必须没有拥挤感,保证通透。所以客餐厅中间为投影幕布留了位置,闲暇之余看个电影,舒服窝进沙发里。
厨房

操作空间虽小却也五脏俱全,L型的橱柜布局紧凑,动线流畅,从备菜到烹调一气呵成。 玻璃门让通透与无油烟味儿的客厅得以共存,家中的烟火气有一处便足够了。
主卧

紫色背景墙与银灰色真皮床头进入主卧后带来了高级感,不需要浮夸的样式,只余下安宁静谧。

金属吊灯与同色系挂画实现巧妙的平衡,即使两者在本质上并不相干。
卫生间

卫生间墙向主卧推进了一些,刚好放进来洗衣机。 多出来的储物空间让囤货节来临之时也不用费心取舍,洗衣液与吸尘器都要在它们该在的地方,瓶瓶罐罐也得井然有序。