融合之美!!!
固安三熊装饰
2021-02-23
我们爱东方的意境,又要享受现代生活带给我们的便利,于是用当下语言融合传统美的设计受到了喜爱。因为融合之美把当下的生活变得诗情画意又舒适自然。
在构建家的同时,兼顾的不只是美观和功能,更是一个可以生长和共享的家庭空间,让家的美好无时无刻不与每一个成员共享,如此才能让家的温情更紧密。一家人坐在一起,享受着最充足的光线,彼此带来笑声,才是最快乐的事儿。

△一楼平面设计图

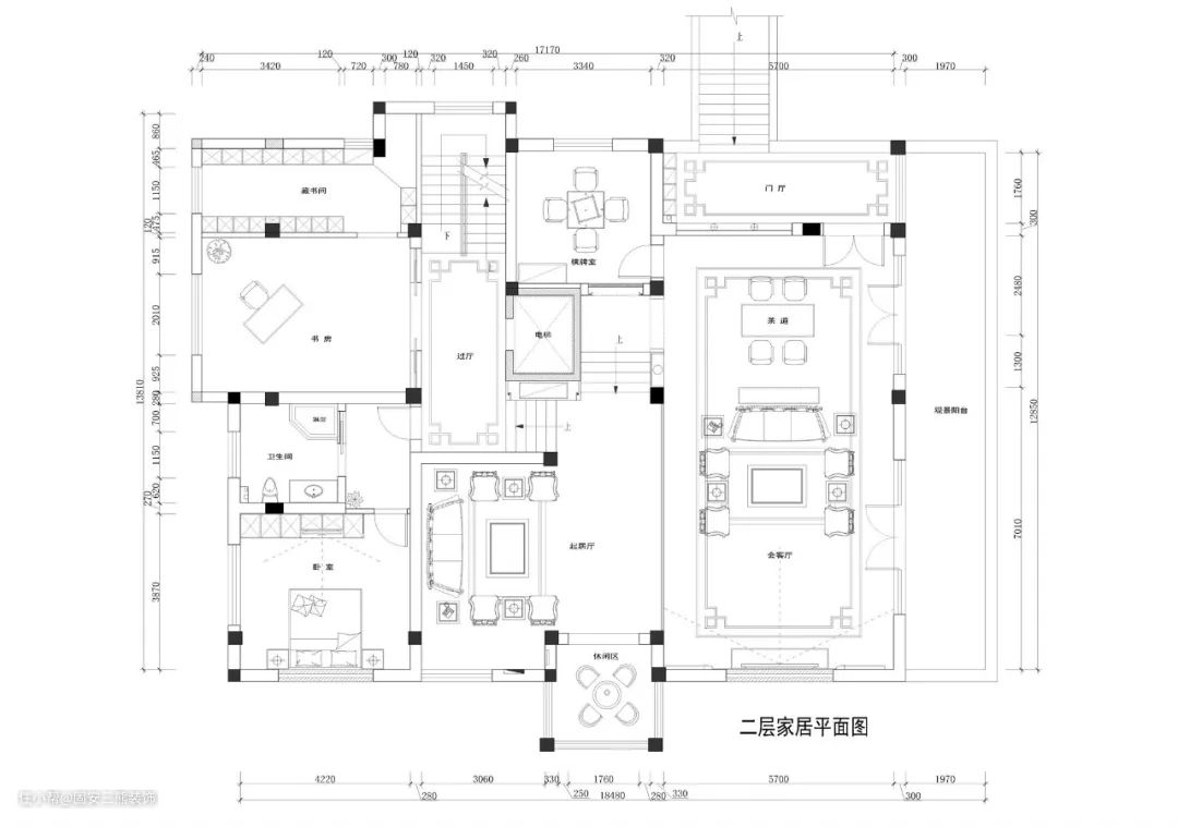
△二楼平面设计图

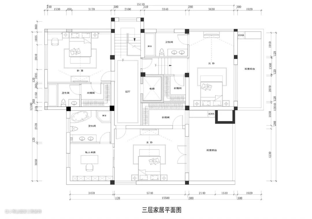
△三楼平面设计图

△主要材料
本案以中式风格为基调,配合现代的设计元素,舒适人性化的功能设计,以现代主义空间处理,融合新东方的文化精髓,打造大隐于墅的生活方式。在空间布局上,设计师最大限度的提高空间使用率。同时使各个空间的关联性、互动性更好地融合在一起,在满足业主对各功能空间要求的基础上,使各空间达到奢华并最大化的延伸,实用且有美感。
|客厅living room|


客厅的设计融进了许多现代元素,将古典元素与现代元素相互结合,整体线条更简洁利落,打造出别具一格的东方情韵。布局讲究对称感,并融进天地方圆,阴阳协调的禅意思想,在不经意中便体现出东方的精神内涵。端庄丰华恢弘大气,一股独特的东方韵味,散发出亦古亦今的层次之美。使用开放式的现代空间手法,使室内宽敞明亮。电视背景以天然山水画大理石为材,结合黑胡桃木护墙,辅以玫瑰金不锈钢条,产生独特、时尚的设计美感。
|茶道Tea ceremony|

茶道与客厅尽量做到通透、连贯。天花板采用棕色线条勾勒,利用垂直吊灯点缀,明丽而典雅、朦胧而婉约,吊灯的装饰让茶道熠熠生辉,起到良好的视觉效果,增强空间的层次感。古朴自然,简洁明快,体现着“茶禅一味”的精神内涵。
|餐厅Restaurant|

灰白与褐色穿映于其中,与其他小巧装饰品默契融合,辅以灰色大面墙与山水画挂画,雅致周到,极度契合主人对高端的追求,以及对中国传统文化的缕缕欢喜。透露出高雅的品味与独到的审美。流光溢彩的暖色调,神秘沉默的褐色,复古餐具传达时光的沉淀。仿若回到黄昏日落,负手庭除,菊花满前,案有旨酒,褪去光鲜亮丽,透过纯粹的质感,品一道用心的美食。
|卧室bedroom|

根据不同的年龄层次,设计出不同格调与色彩的卧室。主卧的设计颇费心思,结合几何元素的现代,搭配白色、棕色的沉稳,棕色的窗帘与一抹淡绿的墙面的结合碰撞出高级质感。更多平常的日子就如同配色本身一样朴实无华,如同岁月一样不露声色,只守着一份心的宁静和知足。全明落地窗最大限度纳入晨光与微风,降低饱和的整体色彩,将宁静淡雅,温馨舒缓徐徐表达。如果空间能激活嗅觉,那它一定是干燥薰衣草清香,寂静安然,绝不喧宾夺主,只为造一个好梦。

卧室延用了主卧的格调与色彩,但又大不相同。移花入室,草木皆听春信,虽是挂画但又显真。这里是私密空间与自然空间的衔接,身处其中,既可自由选择沉入梦想,或是拥抱阳光,亦或是静静与时光闲坐沉淀内心。

次卧为主人的孙子入住。童年,总有源源不断的奇思妙想,还有细数不完的五彩斑斓。设计师在设计颇费心思,考虑到小孩子偏小,采用四角包围的床,避免孩子的磕磕碰碰。在这个空间里,收藏儿时所有稚嫩的小心事。玩具车、卡通人,久久弥留在记忆里。床头之上采用挂画装饰,宁静而自在,让孩子在这空间中能静下心来思考问题或休息。新中式的卧室又能让孩子感受到中国的风韵。

家的设计是具有治愈功能的,可以在不同的时期为家挑选愉悦的味道;家,是舒适放松的,可以让家人在家自由自在,无忧无虑的与家人相处美好时光。把爱渗透到每一处细节之中,让每个人都能被家中爱的温暖气息所包容。