越来越多人不做独立茶室,这样设计好看100倍!
居众装饰集团中心
2021-02-25
茶文化内涵丰富,中国人喜欢喝茶,品的是一种休闲心情,更是一种悠然心境。是时候在家里安排一个茶室了,如果条件允许,可以设一个独立的茶室,如果家里房间不够,也有以下几种办法,甚至比独立茶室更雅致,一起来了解看看。

1. 书房+茶室
常见的方法是书房与茶室合二为一,书房私密安静,与茶室的融合度很高,可以说是千古来的精妙之配。只需在书房里增设古雅的茶桌,即可打造出一方可读书、练字、喝茶、思考的天地,在诗情画意中陶冶情操,在茶香泗溢中沉淀心灵,从容自在,优哉游哉!

2. 客厅+茶室
将茶室设在客厅也是不错的选择,越来越多人把茶室作为会客空间,家里来了客人,便沏上新茶,在杯盏间话聊家常或谈笑风生。客厅增设茶室,可以选择设在窗户旁或者与餐厅相连处,甚至也可以直接用茶桌代替客厅茶几,为居室增添茶香雅调,彰显空间气韵。

3. 阳台+茶室
如果你想要一个休闲感的茶室,那不妨将茶室设在阳台,阳台采光明亮,囊括四季的阳光雨露,窗外美景更是一览无余,以自然借景于室内装饰,美哉。开放式阳台与封闭式阳台皆可打造茶室,各有风采,在家具选择上需注意防腐以及耐光照等性能。

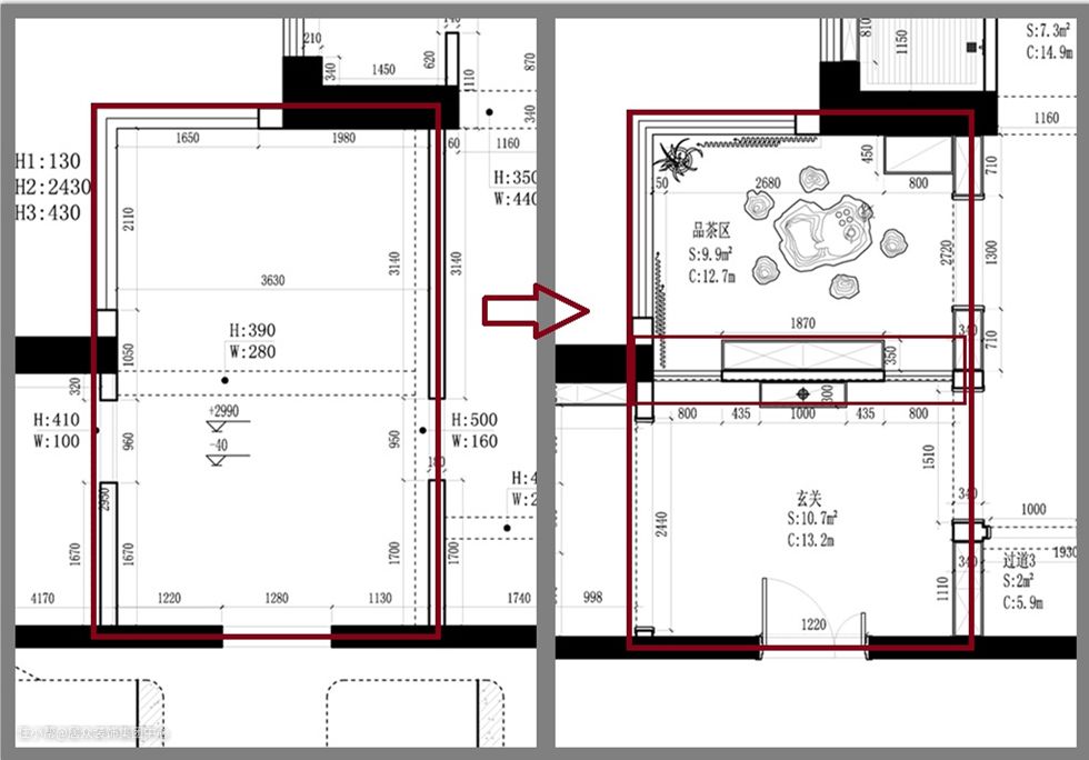
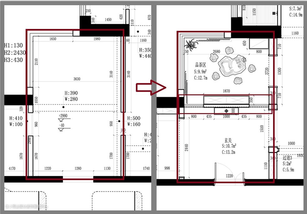
4. 玄关+茶室
最后介绍的一个可以设茶室的地方,就是玄关了。你可能会感到不解,玄关如何设茶室呢?但有一种户型,就非常适合。如果进门有个缓冲之地,而客厅与餐厅各位于左右一侧,那么将玄关与茶室一体化设计,效果绝对让人感到惊喜。


如上图所示,在玄关处增加一个镂空的屏风隔断,把空间一分为二,既改善了入户的空间格局,又呈现一个苏州园林式的优美造景,同时还拥有一个茶室,美观大气,可谓一举三得。
以上就是关于家庭茶室设计的建议与观点,希望对您有帮助!