石材与木质的融合,大理石+木纹空间质感再升级!
潍坊尚境设计事务所
2021-03-02

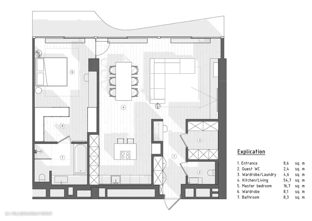
平面图 ▽

现代轻奢
面积104㎡现代家居,设计师以现代简约为定位,大理石的硬朗与木饰面的柔软细腻相结合,丰富的纹理营造了空间的质感,塑造了惬意与舒适的居住空间。

设计师结合屋主追求极致平静与永恒优雅的需求,以“少即是多”作为设计理念,整体空间结构精简,没有过多的修饰,打造出一个彰显个性与不凡品味的家。



门厅入口,在空间材质的处理上采用了高级灰+深木色的搭配,红色的换鞋凳点缀,给人的感觉自然而轻松,是整个家居空间中极具品味的地方之一。



客餐厅作为家庭娱乐休闲的中心区域,落地透明玻璃让空间更加的干净澄明,视野一览无余,屋外的美景尽收眼底。灰白木的简洁色调让客厅空间看起来赏心悦目。





既开放又相对独立的厨房空间设计,功能区可以交互使用,让家居生活变得更加多元化。



餐桌顶上的大圆灯意喻圆满,温柔的艺术线条将舒适的生活,完美勾勒出来。





现代简约风格电视背景墙集美观与实用于一体,将独特的设计风格展现的淋漓尽至,每个细节都是几近完美的设计。





时尚大气的浅灰色卫生间,结合居住者的生活习惯及空间的规划布局,设计悬挑式的台盆,更加美观方便打理,条板的设计又可以增加部分收纳功能。




低调又高级的白灰与木色是整个卧室的主色调, 设计师运用线形几何灯营造柔和的氛围。




卧室中有一个独特的设计,床尾处,结合书柜和卡座,形成一个角落里的安静的阅读和放空的空间。



整个空间中没有过多的装饰,仅仅是利用比例、光影、明暗营造空间的质感和氛围,挑动极致的视觉感官。



设计与生活完美融合,满足高标准的物质生活和艺术品味。精致舒适的衣柜,流动的空间结构及构筑,分区合理。


设计师结合居住者的生活习惯及空间的规划布局放弃了纯正的日式四分离设计,将如厕、淋浴、浴缸进行了三式分离,幸福感也直线上升。




