龙湖听蓝湾 170㎡ 极简风尚的精致与优雅
烟台华杰城市人家装饰
2021-03-05
项目地址:龙湖听蓝湾
建筑户型:叠拼
施工面积:170平方米
设计风格:极简风格
全案设计:吴洋

对于生活的记忆,是本案业主对情怀的向往。我们希望通过极简的风格和多材质的搭配,从居住的角度出发,打破常态寻找空间灵魂,打造业主的信仰之所。
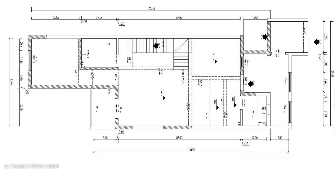
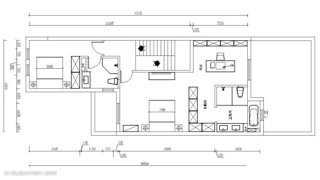
户型分析| House type analysis
▼ 原始结构

一层

二层
▼ 设计布局

一层

二层
△本案原始空间零碎,厨房餐厅较小。设计通过门厅的改造使南北空间更通透,解放出西厨的独立空间,合理分配出客厅空间打造功能阳台 ,各区域规划合理动线明朗,舒适度上升。
设计方案
design scheme
▼ 请旋转手机观看


方案整体追求简洁、轻快,打破了固有的空间形式、结构,让空间偶然性、随机性层层剥离,使各功能区域有机地串联、共融,营造出一个流动、轻快的梦幻空间。木色与白色的碰撞,石材与木材的融合,和谐中透着性格,结合中拥有舒适。

主空间采用无主灯设计,高级感十足,开放的空间布局既增加了视野空间,也不会阻断客厅与其他空间的联系性,带来了视觉景深效果。地面采用的通铺仿大理石瓷砖,质感舒适、纹理自然,在分散式筒灯的渲染下,熠熠生辉。墙面采用墙板与石材拼接的方式,空间更灵动,更富韵味,对比和神韵就有了。

空间布局参差错落,整体色调延续整体,给人良好的视觉体验,配合充满艺术气息的挂画,更是在无形中增添了许多高级感。

在更能体现生活仪式感的书房空间,金属、玻璃和镜面材质的粲然光感完美交融,营造出空间的优雅美好,凝结着都市生活的轻奢享受。

伴着日出日落
主卧营造温馨放松的睡眠环境,被柔软包裹
舒心的居住享受 床头的艺术吊灯散发的暖光源,时尚又温馨。木色的基础色调融入灰色的背景墙,空间清新自然,再搭配皮质的大床、床头柜,有一种纯净的舒适感。
从业多年的资深大宅设计师团队、经验丰富的优秀工程项目经理,用“多对一”的服务体系,打造完美的“私墅生活方式”。感谢关注!