现代风格 | 爆棚的幸福感来自于89㎡的简约
私宅整装设计张尧
2021-03-09

■ 设计风格:现代风格
■ 项目户型:三居住宅
■ 项目面积:89㎡
■ 关键词语:简约时尚
写在开头
preface
本案是一套89平米的现代风格三居住宅,简约时尚中又带着一些轻奢感,满足了业主对精致品质生活的追求,充满腔调的设计,也会给人带来爆棚的幸福感。

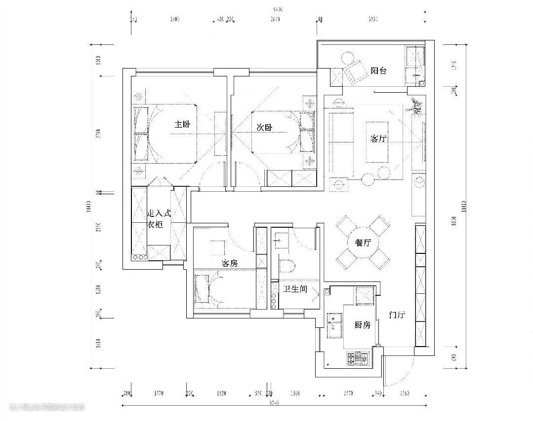
户型解析
Door model the parsing

▲ 户型平面图
优点
三居室房间较为充裕
客厅比较宽敞,采光不错
走入式衣柜方便收纳
不足
入户不够宽敞,过道狭窄
卫生间较小
提到对这个家的要求时,夫妻二人共同的要求——"简约不失品质"。
面临着城市的喧嚣和污染,激烈的竞争压力,还有忙碌的工作和紧张的生活。业主摒弃了繁缛豪华的装修,力求拥有一种自然简约的居室空间。
玄关
Porch

▲ 入户处简约建筑挂画和石膏雕像
玄关用爵士白、金属线条搭配现代水晶壁灯,让人进门时感受到轻奢又不过于浮夸,典雅中透着精致。

▲ 鞋柜门上跳跃的金属色握把,简约而不简单
客厅
Parlour

▲ 客厅主视角
客厅采用了时尚简约的无主灯设计。 大大的落地窗,采光极好。以优雅的灰色为主调,搭配高贵的蓝色和纯净的白色,整个空间给人一种非常时尚尊贵的感觉。

▲ 黑色立式台灯稳固空间的整体视感

▲ 以蓝色调将层次铺展,再加入耀眼的金色装饰,优雅一触即发

▲ 和谐统一的电视背景墙
客餐厅定制款柜子是用贝壳镶嵌制成,十分独特的纹理给空间增加了时尚的视觉感受,珍珠般温婉的光亮,让人心情舒畅,沉醉其中。

餐厅
Dining room

▲ 温馨雅致的餐厅四座,尽显天伦之乐
餐厅风格继续延伸整体的色系搭配,并再次出现了天鹅绒与金属的搭配,柠檬与花卉使得典雅精致中带一些惊喜与活泼感。

▲ 餐厅从设计风格到材质选用上,都呈现出既实用又时尚的折衷理念

▲ 在生活当中我们不仅仅是需要柴米油盐,也需要来点仪式感
过道
Aisle

▲ 通往房间的过道,在视觉的尽头也能发现有惊喜
主卧
Master BedRoom

▲ 太阳的背景墙和落地窗相得益彰
素色搭配看起来太过于单调,设计师在空间中填入紫色窗帘,魅力紫色在色泽上弥补了米白色的单调,在调性上打破了灰粉色的清冷。

▲ 主卧有一种美式轻奢感,舒适又不失精致,气质满满

任一角落的欣赏,都如艺术品般的美丽。整体效果多采用水晶金属制品来搭配,以简驭繁的蓝灰色床头柜,让空间不在彰显单调与乏味,大窗户得以让光线肆无忌惮的穿行室内。

次卧
Supine position

▲ 次卧同样采用了莫兰迪色系
在时尚与舒适间,达到平衡。精致的粉灰色,柔和的棕灰色,明亮的黄色是打破了空间的宁静,变得更加具有朝气。


儿童房
Children's room


▲ 床脚收纳柜给给予孩子丰富藏物空间
充满童真与活力的儿童房,以丰富柔和的色彩突现出孩子的天性。榻榻米设计提高的房间的利用率,并且保证了孩子足够的活动空间。
厨房
Kitchen

▲ U型橱柜设计,彰显业主喜欢做饭的习惯
简约格调的U字型厨房操作流程合理,深灰色瓷砖搭配白色橱柜,使得空间的色泽感觉十分平衡。
卫生间
Toilet

▲ 间内的富贵竹增添绿色生气
卫生间灰花大理石与黑色大理石的搭配,简约大气,金色边框的圆镜,和金色卫浴柜拉手,提升了整体的品质。

写在最后
本案没有过分的装饰,一切从功能出发,讲究造型比例适度、空间结构图明确美观,强调外观的明快、简洁。体现了现代生活快节奏、简约和实用,但又富有朝气的生活气息。
—END—