她家进屋就是厅,依然拥有鞋柜,客厅不常规设计,个性又实用!
天津清航装饰
2021-03-12
相信很多人买房的时候,其实不是那么注意户型。很多人家里的房子,可能是没有真正意义的玄关,一进屋就是厅那种,很多人交房后拿到这样的房子,可能都比较纠结,不知道家里的鞋柜应该怎么样去设计。在这里,大家先别担心哈!
这次给大家带来屋主她家结婚之后八年换来的房子,最开始装修的时候还是二人世界,所以新房更多是考虑未来家里孩子。她家新房就是比较典型的一进屋就是厅,没有玄关,但是经过合理设计与规划之后,还是依然拥有鞋柜。而且,全屋最大亮点就是客厅不常规设计,显得个性又实用。看了全屋整个空间,都很喜欢,很喜欢这样的装修。下面,带大家一起来看看!(本案图源:momologue)
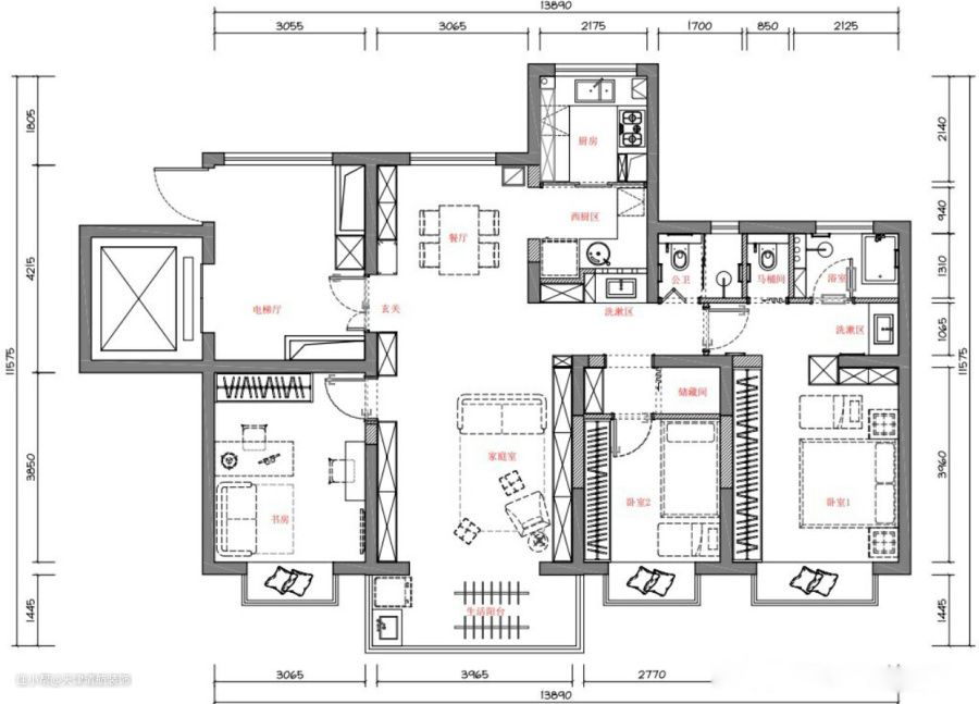
户型图

准确说,这是改造之后的户型图,一梯两户的房子,所以从电梯出来,其实就是自己的入户门口了,中户型图大家可以看出来。家里没有玄关,所以打造客餐厅一排整体的地柜,一整排的书架、黑板、鞋柜等为一体的柜子,弥补没有玄关的户型。并且卫生间做了三分离,更方便使用。
入户门口

从电梯走出来就是到了自家的门口,所以利用入户大门左侧的位置,做了一个顶天立地的鞋柜,并且带着锁头,更安全有保障。入住的时候,大门贴了对联,显得比较喜庆,更有家的味道。一梯两户的房子,在不影响的情况之下,是可以把空间利用起来。
玄关

严格说是没有真正意义的玄关,从大门进屋就是餐厅了。考虑到需求,利用入户大门两边的位置,更是利用餐厅的位置设计了一个非常实用的入户鞋柜,这样就形成了一个玄关,更满足家人需要的入户鞋柜。如果你家进屋也是属于这样的情况,可以学习这样的布局,能拥有一个入户鞋柜。

设计的入户鞋柜自带换鞋凳,可以非常方便坐着换穿鞋子。同时,鞋柜中间安装了洞洞板,颜值很高,也很实用。,很多小物件的东西都方便挂在洞洞板上,更灵活使用,让人见到,都会很喜欢。即使没有独立的入户玄关,只要合理利用起来,鞋柜总会有的。


大门另外一边安装了全身镜,进出门的时候,可以通过镜子的作用,整理穿着。镜子相当于折叠的方式,打开使用不会受到任何影响。并且还安装了鞋架子,可以翻遍挂鞋子,细节处理很好,半点空间舍不得浪费,很值得参考。
餐厅

入户鞋柜稍微占用的餐厅一些位置,所以布置了一张方形餐桌,大小位置合适。平时的餐椅往餐桌底下收纳起来,显得空间特别宽敞。在这样的小餐厅用餐,不影响哈。有个窗户,白天的时候采光还是蛮不错的。


平时就屋主夫妻两人,加上一个未出生的宝宝,其实也是一家三口。不管工作多忙,屋主都会选择在家吃饭。摆上花做装饰,显得非常喜庆,装饰性很强。在灯光的衬托之下,很舒适,也很温馨。旁边进去就是厨房了哈!
厨房


厨房空间不大,定制了“U”字型的橱柜,两边各60CM的台面,不过中间为100COM,平时一人在厨房操作的时候,非常方便。不过,假如多一个人的话,稍微有点拥挤了。安装了洗碗机,5个大抽屉,可以提供大量的储物空间。水槽下面安装了垃圾处理器,净水器等,都非常方便使用。

男屋主在厨房忙活的样子,真的太帅气了。在家里做饭菜,其实是一种幸福,尤其是自己辛辛苦苦换来的房子,辛苦装修出来的房子!安装了黑色岩板台面,特别耐脏。


这边还有一个西厨,定制了“L”字型的橱柜,预留了刚好可以放冰箱的位置,使用很方便。在这里主要是干区,主要是安排烤箱、微波炉、各种小家电等等。对生活比较高要求,一些厨具家电是不可缺少的一部分。
客厅


客厅不常规设计,个性又实用!可以看到,没有电视柜,没有电视背景墙,更没有沙发背景墙,没有茶几,没有沙发,相信很多人都第一次见这样的设计吧!两边都打满了书柜,可以提供非常充足的储物空间,堪比多一间房还实用。布置了无腿凳,坐着更舒服,类似躺着一样,不管是看手机还是看书,都很方便。

这边定制了一排的书架,其中中间留空位置做了一面的黑板墙,可以方便家里小家在这里涂涂画画,并且两边都有很多书籍,需要看的时候,方便很多。以后家里小孩,可以从小学会爱阅读的好习惯。没有电视机,真的很少见啊。

另外一边的书架,不规则安装了柜门,局部是没柜门的,显得比较个性,好看。不管是装书还是其他,都很实用。地面铺木地板,没有瓷砖那种冷冰冰的感觉,非常舒适。如果你家也有这样的需求,可以学这种不常规的设计,太实用了。
阳台


阳台一边放着植物和一些杂物,都方便收纳起来,还是蛮不错的。另外一边定制了非常实用的洗衣柜,旁边放着洗衣机,大小位置合适。在这里晾晒衣物的时候,方便很多。大大的落地窗,光线很好。
过道


顶面有房梁,安装了吊顶可以很好把房梁藏住,显得比较美观,而且很有空间感。安装了筒灯,足够照明亮度,并且光照柔和,不刺眼。里外打扫干干净净,可以说一尘不染。
主卧


主卧非常简单,没有做背景墙。定制的衣柜直接到顶,中间留空位置,安装了插座,需要使用的时候,方便很多。顶面安装了轨道射灯,增加室内采光,包括床头两边的壁灯,真心喜欢。布置了原木色的双人大床,床垫睡着特别舒服。飘窗很大,放着坐垫,可以当小沙发使用。
主卧卫生间


拥有独立的卫生间,把浴室柜是分开出来的,安装了灰色石英石的台面,特别耐脏,使用到的时候方便很多。安装了LED镜子,晚上使用,不会受到任何影响。


其实是做了三分分离,空间布局都是独立使用的,互不影响。比较喜欢泡澡,布置了迷你型的小浴缸,也足够使用了。安装了非常实用的智能马桶,冲洗更方便,并且不会有异味,这是最重要的。
工作区


考虑到需求,腾出一个空间作为办工区域,在这里办公的时候,不会被家人吵到,更不会影响到家人。以后如果有需求的话,作为客房也是可行的,毕竟还安装了一个衣柜,储物空间足够。
儿童房


空间不大,布置了一张单人床,左侧是一排的衣柜,这样布局比较合理,衣柜储物空间更强大。以后方便家里小孩使用,到时候长大了,再布置书桌柜。
公共卫生间


浴室柜也是分开出来的,不过,用浴帘做干湿分离,一家人都很满意。地面铺贴的瓷砖,耐脏又防滑,真心喜欢。安装了非常实用的电热毛巾架,很实用。分享于互联网,不代表公司任何立场,不承担任何责任如侵删。