三河杨庄镇农村自建房改造,装完之后期待别墅的感觉
北京博尔特高端整装
2021-03-19
今天小编分享的一个装修案例是位于河北三河杨庄镇的一个农村自建房案例. 咱们农村人现在生活越来越好了,好多人已经不仅满足于盖新房子, 崭露头角了, 更多的人已经开始关注房屋内部的装修及各种软装摆设. 请跟随小编来体验一下本案例中自建房变洋房的设计方案, 同时也希望可以给您的装修找寻到一些灵感!
我们先一起来看一下自建房目前的状况




目前业主一家四口,还有业主的父母一起住,装修是10年前结婚时的风格.整间屋子的装修配饰已经过时了,当初装修时空间利用不合理,房屋内没有卫生间和厨房, 需要去外面的公用卫生间,厨房在院子里,平时生活方便非常不方便. 整间屋子地面地砖不平坦,墙面发黑,储物空间不够导致物品四处堆放, 从而房间显得杂乱无章,电线线路老化等问题.
业主需求
1: 房屋3.4高,考虑到北方冬天保温的因素,业主要求增加吊顶,使房屋高度保持在3米左右.
2: 整间屋内墙体全拆了,重新划分区域
分别配置根据厨房,卫生间, 客厅, 餐厅,三个卧室,
3:增加一个厨房的位置,需要有窗户,不喜欢开放式厨房
4:父母一间卧室,业主有个卧室,8岁的孩子自己有一间卧室, 一共三个卧室
5:增加卫生间
6:整个房间要有足够的储物空间,考虑全屋定制柜.
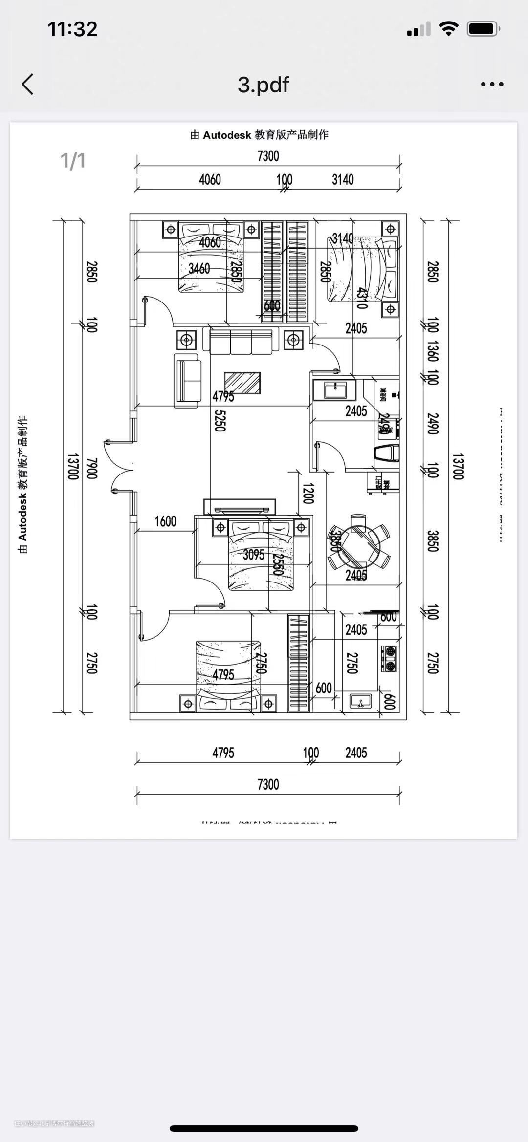
现在我们看一下设计平面图

设计理念
1:厨房空间划分出来, 在侧面打开两扇窗户, 增加通风,采光效果, 整体定制橱柜也可以达到收纳的功能
2:厨房与餐厅之间做玻璃门, 增加了整个空间的延伸感, 同时不影响采光, 通风效果. 冰箱放餐厅, 由于家里三代人比较多, 餐厅不放置别的家具.
3:卫生间有一个单独的空间,所处位置方便家庭中每个成员的使用.
4:4个卧室分别设置通顶的定制衣柜增加储物空间, 每个房间保证有一扇窗户.
5:客厅一组电视柜, 两组沙发, 少放家具从而增加空间感. 不过,这么大的空间不能浪费了他的软装方面,之后可以多放一些绿植盆栽为整个家注入源源不断的生机活力. 同时在装修中还起到“开门见景”的作用
房屋层高可以使用吊灯, 这样可以提高空间感.
客厅是一家三代融合的地方, 一定要有简洁大方令人放松的感觉
6:大家一定考虑鞋子的收纳, 业主自建房可以在正门侧面做一组鞋柜
由于业主只是为了满足全家人生活需要进行改造, 因此在风格上并没有进行特别要求.小编倒是觉得这样的自建房采用简单的北欧风效果不错, 大家怎么看呢?欢迎发表评论.


