90㎡ 两室一厅,拱形元素的时尚应用,清爽又个性!
深圳家装先生总部
2021-03-26

这座公寓位于俄罗斯莫斯科
由工作室 Slovo Design Bureau 设计
家具和装饰融入众多圆角和拱形元素
不仅将室内色彩及纹理协调整合
而且软装形式也达成统一
两房一厅两卫,动线流线清晰明确
呈现出一个优雅舒适的居住空间

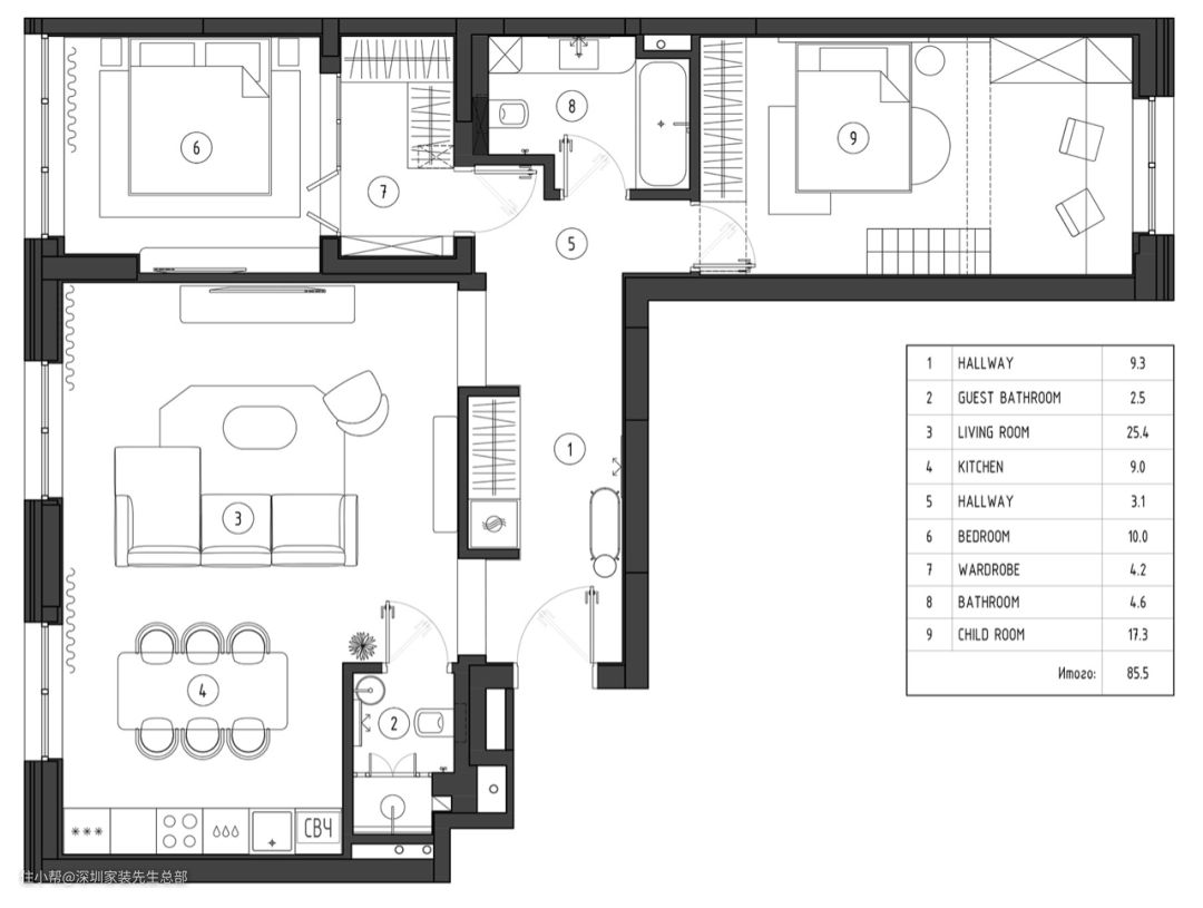
▲ 平面图
玄关选用白色大理石花纹地面砖
引领住户进入室内空间
左侧两个黑框拱形门洞间的通顶木鞋柜
保证充足收纳,一旁并设可移动黑色爬梯
以便取放上层鞋物


倚靠墙面的黑框拱形落地镜
下方拼接拱形大理石饰面,装饰性极强
旁边搭配黑色简约换鞋凳
延伸出圆形大理石置物台面
上面放置香薰瓶释放香气弥漫室内

起居空间与玄关间的隔断墙两端
对称分布的黑色拱形门洞颇为抢眼
设置地面高差以界定功能范围


拱门中间的隔断墙安置简洁的黑色收纳架
摆放各类书籍、艺术装饰品及活力盆栽
再配以草绿色绒面沙发
形成一处悠闲的阅读区域

客厅与餐厨空间相互连通
墙面两扇白色百叶窗引入充足光线
窗户上方还设置拱形装饰线条
呼应对面门洞拱形样式

客厅选用灰色绒布沙发
配以赭色绒面地毯
中间安设异形黑色茶几
窗帘颜色与暖灰色拼接的墙面一致
整体排布井然有序,充满格调


餐厨结构整体呈现对称美
两盏白色球型吊灯组合精致美观
后面的烹饪设备墙由上方白色储物柜
及下方木纹柜门收纳空间共同组成
内衬面采用高档大理石花纹饰面
中部还悬挂有 L 型黑色金属置物搁板
摆放各类调料用品非常方便

餐桌台面选择浅色大理石花纹
由四个木制圆角扁柱支撑
两侧配草绿色坐垫餐椅
看起来十分清新


主卧空间由衣帽间和休息区构成
两个区域中间安设黑框圆角磨砂玻璃隔断
更衣室地面铺设人字拼地板
右侧 L 型墙面建立开放式收纳架
包括三层置物架及两段挂衣层
满足住户各种收纳需求

另一边是全高的收纳区
白色的柜门看起来干净又整洁
中间搭配圆角试衣镜
作为穿衣镜使用的同时
还具有拉伸视觉空间的效果

休息区顶部天花顶
挂设与餐厅相似的白色球状吊灯
地面铺上棕色系花色毛织毯
给人优雅恬静的休憩环境


床头背景墙上方是暖灰色墙面
圆润的墙角设计看起来更加柔和
下方拼接温润质感的木纹装饰面板
并在两侧设置对称床头壁灯
整体营造一丝温馨氛围


两盏圆形床头壁灯下
摆放简约的黑色框架床头柜
里面可放置阅读书籍,便于取放


床尾还安置有素色悬空桌面柜
供住户收纳各类日常用品
墙面挂一副装饰画
为室内增添艺术气息

儿童房由床铺及二层游戏区共同组成
草绿色拱形床头面板活力满满
上方搭配白色的灯笼状吊灯组合

竖条纹圆柱床头柜置于一侧
充满童趣的矩形、圆形地毯分设两处
共同为小孩创造趣味空间

床铺一侧的白色柜面收纳墙
中间设有两个圆角矩形开放式收纳壁龛
用于展示玩具和儿童书籍


朝向窗户的学习区,阳光充足
配以两把灰色绒面靠背椅
整体设计的高度也很契合孩子的身高

右侧洞洞墙安设黑色固定装饰物
两边排布可移动植物展示架
灵活的配置给小孩提供创作平台

左侧分别设封闭式储物柜
以及开放式书架
放置一盆垂坠绿植活跃空间

通往上层的楼梯
木面台阶做成储藏抽屉
收纳小孩各种玩具
白色的栏杆与上层隔墙相连
中间的空隙沿用拱形样式
整体看起来非常和谐


卫浴空间充满精致格调
洗漱区铺设白色矩形饰面砖
前方挂设拱形梳化镜
两盏白球节能灯分设两侧
下方配以 L 型黑色金属搁板
洗漱台及其内衬面均选用大理石花纹贴面
而最下面的木质小桌凳采用拱形样式
以达成室内元素间相互统一


浴缸的壁面和墙面
选用颜色稍浅的大理石贴面
配置黄铜金属制水龙头
显露高级质感

马桶区通体使用木纹面板
白色陶瓷洁具旁还配有无障碍扶杆
方便老人与小孩使用

地址:俄罗斯莫斯科
面积:90.2 ㎡
工作室: Slovo Design Bureau
年份:2021