37㎡的小户型公寓,这样好好装修一下,住起来还是很惬意的!
绿港装饰铁西店
2021-03-31
导语:“loft”是所有年轻人的向往和最爱,人们都喜欢小而精致的小公寓。
这样安排规划更好的利用每一处空间,小空间也能让那些奋斗在异乡的人拥有安全感。
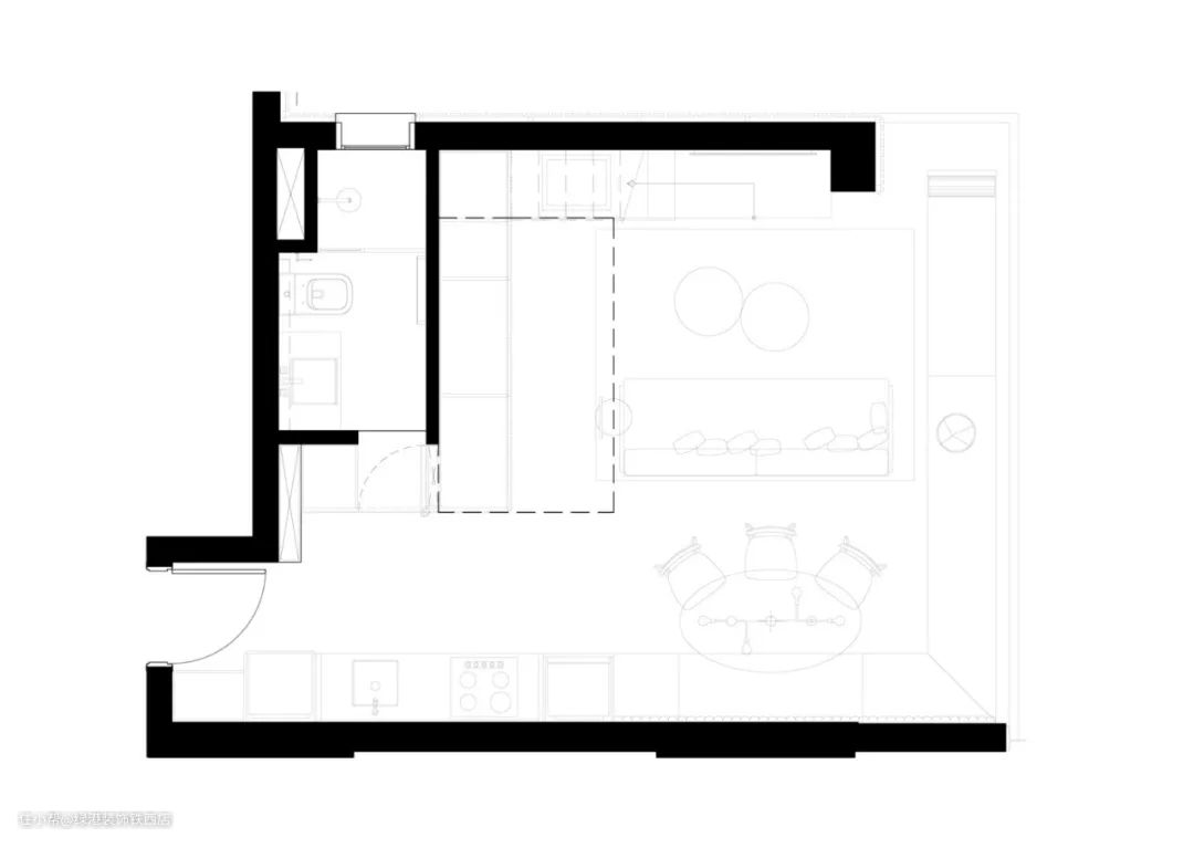
今天要分享的是一套37㎡单身公寓装修案例,公寓层高3.3米。

▲ 一层布局图

▲ Loft二层布局图
设计师巧妙利用层高优势,将卧榻悬空放置置在二楼,在有限空间里满足了独立客餐厅、厨房、卫浴、收纳等多种生活需求。



厨房,深蓝色的橱柜搭配大理石纹瓷砖,低调又不失品质感。
操作台上方的开放置物架,收纳咖啡机等小件电器,取用方便又兼具装饰性。

冰箱、蒸烤箱等厨电都提前量好尺寸嵌入柜体,让空间看起来更加干净整洁。


从厨房再往里走是客餐厅区域,沙发侧面规划为收纳空间,同时作为吊床的支撑。

木栅格元素一直延伸,与通透的铁丝网楼梯衔接,搭配水泥漆、绿植等天然元素点缀,打造粗犷不羁“轻”工业风。


客餐厅沿着墙面定制了L型的卡座设计,局部嵌入浅灰色布艺软垫,作为小憩的卧榻和用餐区的餐椅。

阳台纳入客厅后,一整面落地窗引入充足的自然光,白色卷帘透光不透明,保障了私密性。

餐厅背景墙采用水泥漆和软包拼接,搭配两幅抽象装饰画和几何吊灯,营造舒适有情调的用餐氛围。

餐厅,经典的椭圆形桌面,可以容纳更多人一起聚餐,底部支撑脚神似“红酒杯底座”,一体成型,让空间多了一份优雅纤巧。

卧室区域充分利用3.3米的层高,改造出夹层睡眠区,利用底部的收纳柜体和钢板结构作为支撑。


楼梯、围栏、卧榻底部支撑面均选择铁丝网材质,清爽通透,弱化体量感。

进门另一侧就是卫生间,走道两侧都是收纳柜,所以卫生间入口同样选择栅格门板,更和谐统一。

卫生间内部采用窄框玻璃隔断做了干湿分离,整体以黑白灰色系为主,耐脏好打理。
墙面铺贴大砖,扩大视觉效果。洗手台和淋浴区的吊顶内嵌灯带设计,也保证了空间充足的照明。