水电验收标准节点展示之天麓尚层
金空间
2021-04-08
楼盘:天麓尚层
面积:141㎡
设计师:苏雪峰
项目经理:熊雄
项目监理:李向阳


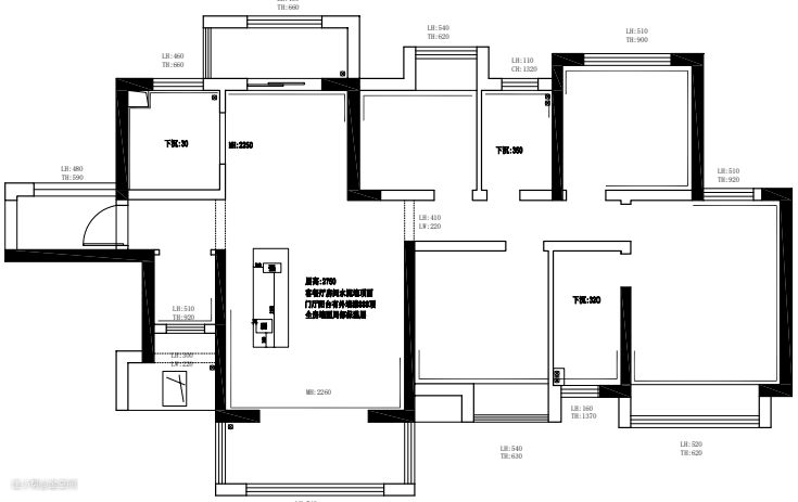
▲平面布置图
今天这期《湖湘家模样》,来到天麓尚层小区的【水电阶段】
点击下方 观看完整视频

水电验收.
■■■
-
电路
图中红色管为强电,蓝色管为弱电,当强弱电发生交叉时,为避免互相干扰而造成室内信号不好等问题,金空间装饰拥有电路屏蔽锡箔纸抗扰工艺,施工人员在强弱电线预埋管铺设时,弱电平行间距需超过20cm,长度不超过100cm。铺设完成后将锡箔纸均匀地缠绕在距离交接处线管的30cm处,能有效屏蔽电流之间的相互干扰,从而提高弱电网络信号,以保证稳定传输。


电线套管使用联排线卡槽地面固定,线管间距保持10-15mm,卡槽间距800mm内,确保瓷砖铺贴时砂浆填充密实,确保贴砖不空鼓,确保线管不磨损。

■■■
-
水平仪底盒
在水电阶段,进行预埋开关面板及相应电器原件的底盒时,所用底盒均采用德国贝莱茵底盒,每个底盒均自带一个独立的水平仪,在前期放置阶段就可以直接根据水平仪进行辅助校正,确保所有的开关面板都处于同一水平位置,更加美观。


■■■
-
墙宝
整屋都刷了黄颜色的墙宝,这是在墙壁上的第一道工序。墙宝的作用主要有两个:1、防潮防霉,轻松应对湖南潮湿闷热的天气,防止墙壁后期开裂;2、极大增加墙壁附着力的同时,对原墙体起到封闭隔离的作用。


■■■
-
盖帽
在水电阶段施工中,卫生间内,不得随意改变排水管、地漏及坐便器的位置,全房所有的下水关口及地漏,都必须使用专用盖板,做好封盖处理,防止施工过程中建筑垃圾掉入管道,造成堵塞引起不必要的麻烦。


■■■
-
水管
图中红色粗水管是热水管,蓝色粗水管是冷水管。所有水管管道均包裹了保温棉,它能够保护管道,降低水管的比热容,使水管能保持在一定温度,不随天气变化而产生剧烈变化,延长水管使用寿命,红蓝分色,有助于辨别冷热水管。此外,保温棉还有阻燃、防腐蚀、静音的作用。


水管上热下冷,严格根据国家标准来制作,水管做完后使用水泥布点保护。施工人员在铺设完水管后,会用水泥将水管固定,这一环节就是“封盖”,以保证后期水泥砂浆能够完全覆盖管槽。

-
金空间装饰采用大弯大流量给水工艺,在水管转角连接处,改掉了传统水管连接件的直角设计,采用大弧度连接件,构成大弯、Y型三通和顺水三通系统,水流量可瞬间提升86%,同时满足多个水龙头,齐开使用,水流和水量完全不受影响,解决很多小区水压小、用水不方便、燃气热水器打不着,和洗澡时,需要同时使用多个水龙头,而造成的水压、水温变化等问题。


■■■
-
三通盒
三通盒内的电线连接采用了三通U型盒出线套波纹管工艺,电线从左端穿入,下端穿出,在下端留出一部分电线后,再从下端穿入,右边接口穿出,将一段U型电线留在三通盒下方,下端留出的电线用来后期连接射灯或其他电器。

