干货 | 7点老房改造思路分享
九陌空间设计
2021-04-29
今天为大家带来的是老房户型改造的一些难点分享,我们经常在老房改造中遇到的这些一定会面临的一些问题进行讲解,具体从墙体改造、到卫生间改造、厨房改造、飘窗的利用、封闭阳台、楼梯改造、门窗选材等等,干货满满,快收藏起来吧!
01 | 想要改变房间的格局改变墙位可以吗
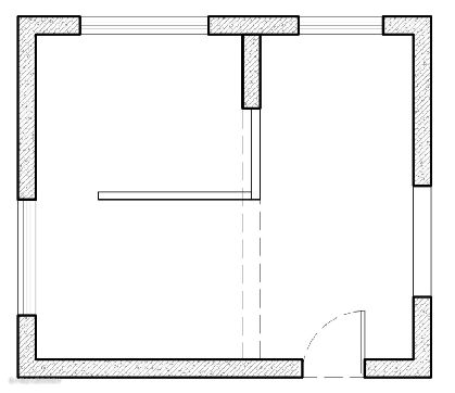
弄清这个问题,首先要跟物业拿到原始的图纸,设计公司才能了解房屋结构,再来判断这些墙体是否能够更改,如下图。

因为很多的客户是拿着一张在房网上面的图纸来问这个问题,是没有可参考性的(见下图),这是为什么呢?

开发商把房子交到买家手上的时候是基本上是毛坯状态或者说是二手房(已经装修状态),房子的结构层是看不见的。
房子结构就是人体的骨架一样,有了结构层这个骨架之后,房子才能被支撑起来。
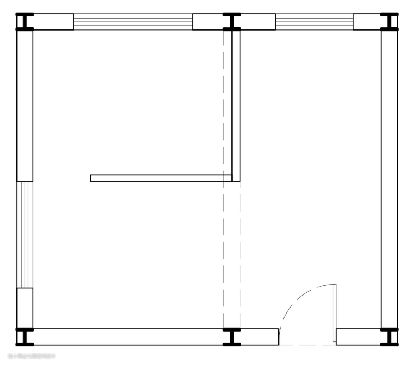
下图就是楼房最初的一个状态,设计公司只有了解具体的结构情况,才能针对户型进行布局。

通常来说,四种房屋的结构是以下四种:
① 砖土结构:80~90年代常用的结构

所有的墙体包括内外墙都是起承重的作用,如果说你是要改变他的话对于整个房体的结构来说,可能会有一个风险存在,所以改造砖土结构需要具备扎实的建筑结构知识的。
② 剪力墙结构:近代常见建筑结构

目前在市面上开发商给予的房子基本上都是这种结构,剪力墙(上图加粗的墙面)基本上是不允许去动的,它的改动对整个大楼的支撑体系会有一定的影响,擅自改动属于违法行为。
③ 框架结构:相对灵活、稳定的结构

相对来说是最好的一个结构形式,这种灵活性会很大,设计操作空间大。除了上图加粗的四个小方块,其余的表示墙面的都可以拆掉改造。
④ 钢结构:住房利用面积最多

施工周期短,成本较低。
第一个案例:深圳·莲花山庄别墅

莲花山庄别墅是90年代的房子,建成的时候是砖土结构,后来加建剪力墙结构,这种混合结构改起来来很麻烦。

平面设计前后基本没有变动,在改造的时候先敲掉加建的部分,再敲掉原来的这个砖墙结构,保证整个结构体系的一个牢固性才能保证这个房子安全无虞。
第二个案例:深圳佛山碧桂园

这个案例是一个剪力墙结构,红色部分是他的结构体系不能改动,对比可以看到这一块是没有变。

第三个案例:深圳翡翠名园

也是剪力墙结构,但这个剪力墙有点特殊。基本上是围着外围一圈都是剪力墙,对比两个平面可以发现整个平面的改动量是非常大的基本上可以说全部敲完了里面的格局全都有都有不一样的地方。

第四个案例:深圳龙基新村

框架结构的案例,图片红点就是这套原始的结构,这红点部分不能动之外,所有的外墙包括内墙都可以敲掉改造。

设计后的平面,基本上内墙全推翻进行布局,又做了一道飘窗卡座。
02 | 卫生间想改位置怎么做?

提到卫生间,就不得不提到干湿分离这一块,下图依次是混合、二分离、三分离、四分离。

干湿分区的概念源于日本,日本人都有泡澡的习惯,觉得洗澡非常的神圣的,是接受不了卫生间马桶跟淋浴、浴缸放在一块的这种行为。
真正的干湿分离是需要把湿区、干区要单独封闭起来做到完全的隔断,这才叫做干湿分离,否则只是干区、湿区的划分。
现代人生活节奏越来越快,许多家庭都需要把洗漱单独出来做到二分离,市面上已经推行的这种二分离的形式,基本上就是可以说是把马桶淋浴和洗漱单独全部单独出来的二分离或是三分离的概念。
日本的所谓的四分离是基本上是把洗漱、洗衣、马桶都单独封闭出来这叫真正四分离。
卫生间想移位的话首先我们可能要先了解卫生间的排水,主要的制约因素是马桶的位置。
马桶的结构有个这有个弯管,移位的话是新马桶要对上以前老的管道位置做一段弯管,所以在要判断地面有没有沉箱(下图左),现在大家的卫生间基本上都会有个沉箱处理,但是如果说是没有沉箱的卫生间要进行移位(下图右)那地面是需要做抬高。

移动卫生间首先要判断卫生间原来到底有没有做过排水,排水系统到底是有没有沉箱。
下面也分享一下几个案例展示一下九陌是如何处理的。
第一个案例:佛山碧桂园
佛山碧桂园的这个案例,首先跟大家介绍一下业主的状况,业主是两位相对上了年纪的,儿子是四十多岁、母亲七十多岁。

原始的平面卫生间只有两个,客户需要增设一个卫生间。我们在这个原来的这个阳台位置,增设了一个卫生间。阳台这位置是没有做沉箱的,改成卫生间必定要抬高地面,包括他的排污管道从外围的管道直接引到原来的这个有沉箱的位置进行一个排污处理。


九陌在设计的时候建议是尽量是能在原结构上面去做调整是最好的不会出现高差,高差对于老人来说行动不便,所以最后调整出来的一个结果是母亲卧室的洗手间做了干湿分离,而对于儿子的这个房间我们不建议他去做。

第二个案例:翡翠名园


这个案例卫生间是同样的处理方式,他的排污管就在墙外,公卫移位的时候,地面需要是去做一个抬高的。
因为干湿分离需要面积,不能小于3.5㎡,小于3.5㎡的话建议就不要做干湿分区。
那么这3.5㎡是怎么算出来的?
马桶的位置需要宽0.8米是最基本的,离对面墙的位置0.8宽也是最基本的,洗漱需要0.8x0.8㎡,再加上这个宽度进深,1.5m左右,可能算下来就接近是3.5㎡。
第三个案例:花园城

花园城案例没有真正的干湿分区,但客户想能尽量做到干湿分离,那有没有折中的办法?
九陌是通过改变主卧的这个进门的方式,把洗漱区梳妆区移到了过道的左边,相当是通过过道来消化了原本属于卫生间里面的这个面积,所以这过道变成一个共用的一个区域了,同时也做到了一个干湿分离的这个状况。

公卫的处理手法也是一样,把洗漱的区域移到了门外,与走廊共用过道区域,来做一个洗漱区的一个结合,形成一个干区的一个湿区的划分。
下图就是花园城的实景照片:


03 想改厨房位置应该怎么做
首先我们要一定要了燃气规范,网上可以查一下篇幅比较多,这里总结三个关键词基本上就就可以自己进行一个判断。
① 首先必须必须满足独立封闭
厨房空间是独立的空间,不能跟其他的混搭在一块。比如说跟餐厅或者卫生间连在一块。
② 要有自然通风
自然通风意思是必须要有窗,并且是对外的,有新鲜空气进来。
③ 燃气管不穿房间的居室空间
这是规范中比较严重的一点,是从人身安全这块来说的。
燃气表拉管穿过了人居住的房间会有安全上的隐患,所以有些公司会出这条规则。
第一个案例:现代城华庭

这个案例是煤气燃气表本来是在这个阳台位置,基于整个大的格局,餐厅缺乏光线,我们希望是进来这块是能打开形成一个相对宽敞的一个空间。所以最后是把厨房的这个位置定了左边这块,但是这样会不具备先前说到的三点条件。

首先这个厨房不是封闭的,我们就做成封闭的;
第二个必须要有自然通风,图片中我们可以看到对外的窗户,这点是满足的;
第三点并没有穿越任何的居室空间,所以这块也成立。
整体结果来看,通过改了厨房的位置将进门这块形成一个非常舒适的一个餐厅餐厨客厅形成一体的俗称LDK一体空间。

第二个案例:翡翠名园

厨房区域在如图所示在这块燃气表在阳台,这个制约因素造成了整个餐厅窝在私密区域里面,所以在重新设计中,我们计划把厨房移到外面去。
那我们这块厨房的区域还是一样的,管道不能经过卧室。
① 首先,封闭卧室去满足上述第一点;
② 封闭厨房空间,但客户要做开放的厨房空间效果,通过设计了推拉门去满足;
③需要新鲜空气,在厨房左侧开了一扇窗户,可以引进阳台的新鲜空气;

好处是颠覆了旧空间的狭小餐厅用餐区域,改造成餐厅、厨房跟客厅能连在一块的大空间。
没想到看似简单的三个点能讲这么长篇幅,希望大家今天有所收获~
下篇文章中将继续跟大家分享飘窗利用、封阳台、改楼梯以及门窗选材的干货,如果有户型改造上的疑问可以在评论里问我们~