老房改造|65㎡的老房如何塞下三间卧室+三分离卫浴+钢琴
壹六装饰
2021-04-25

65㎡的老房如何塞下三间卧室+三分离卫浴+钢琴?
通过调整布局,两房变成三房;厨房、餐厅、客厅三合一,形成一个开阔的LDK空间。阳台纳入客厅改为地台,增加储物空间,也是亲子休闲的区域,可卧可坐,实用性爆棚;客厅放下钢琴且不显拥挤,卫浴实现三分离还能塞下洗衣区和浴缸!
还有更多实用设计值得小户型借鉴~
房屋信息:
户型:三居室
面积:65㎡
预算:15万
地区:天津
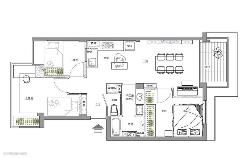
户型图

原始结构图,入户正对着客厅,厨房偏隅一角,比较狭小,餐厅后来在原房东二次扩建中,增加了飘窗,两个卧室秉承了上个世纪的住宅样式,非常宽敞,一个混合所有功能的独卫。

小时候我们大家都玩过的“华容道”,也算是上个世纪的桌游了吧,古人的智慧,今天仍然让我们有借鉴的意义。根据箭头方向所指,将南向的一间卧室移动到北向,并且一分为二,客厅往南面阳台移动,厨房以及餐厅顺移过去,整合为一个大的LDK的空间。

移动以后,我们得到了三间卧室,一个敞开式LDK空间,一个扩大了的卫生间,还有一个独立的玄关区域。
完成版的平面布置图

玄关

进门即可见到开放式厨房,加设一道木质屏风做一个遮挡,玄关的通道右侧是三分离卫生间之厕间的门。

玄关采用了开放式鞋柜的储物方式,塑料鞋盒独立分装,不串味儿,节约空间,上方可以挂外套,顶部增加了层板存放较少使用的物品。 左侧厨房的一组高柜也可以瞥见一些,由下至上,分别是洗碗机,蒸箱预留位置,微波炉,储物柜。
厨房

厨房中间增设一个活动的岛台,可以作为临时备餐台或者早餐台使用。也是厨房区域与过道的一个软性隔断。
LDK空间

LDK的概念来自于日本,是Living Dining Kitchen的缩写, 中文全称指的是起居室/餐厅/厨房,三合一的空间。日本公寓住宅大多面积不大,一个开放型的LDK空间,可以扩展视觉感受,同时增加家人互动性。非常适合小面积的公寓。

墙面和柜体都采用了大面积的白色,减少色彩复杂带来的繁复感,一张1.8米长的原木大餐桌,既是餐桌,也是工作桌。

阳台区域包入户内,做了一个大型的榻榻米,除了增加了储物空间,也是亲子休闲的区域。可卧可坐。榻榻米最靠通道的位置,设置为内嵌式拉手的抽屉柜,方便随时收纳。

主卧墙体内退70公分,恰好塞入一台钢琴。

即使放置了大餐桌和钢琴这样的大物件,整个空间和通道也十分宽敞,并不觉得拥堵。

门内就是主卧。
儿童房

这间是姐姐的房间,大面积飘窗,尽管在北面,采光仍然十分充足。结合飘窗的位置,设置了书桌和书柜。

姐姐的衣柜架在飘窗上,节约室内的地面空间。

这是弟弟的卧室,主要设置床及玩具柜,床侧也有一个大飘窗(没入镜),光线不错,弟弟的卧室紧邻厨房,厨房的水槽上方开设了一扇窗,妈妈在做饭的时候,可以看顾到在房间玩耍的弟弟。
卫浴

三分离式的卫生间,满足一家四口同时使用的需求。干区放置洗脸台和洗衣机以及干衣机。


右侧一点点的储物空间也不放过,上方设置吊柜,下方用布帘子遮挡,收纳卫生洁具。

浴室内景,有淋浴的区域,同时设置了一个小型的浴缸。

俯瞰厕间,尽管不大,功能齐全,层架可收纳双11你囤的卷纸,双桶厕纸架避免坐下来才发现没有纸的尴尬,迷你挂墙式洗手盆满足如厕后的需求。