花了20万装修90平婚房,轻奢风格太喜欢了,分享下~
下雨🌧天
2021-05-14
结婚时,能拥有一套属于自己的房子,真的非常不容易,同时也很幸福了。拥有属于自己的房子,不需要跟着父母生活在一起,更自由,以后更不会跟长辈发生什么矛盾,一家人更和睦。但是,拥有一套属于自己的婚房,应该怎么样去装修,才会更有婚房该有的样子呢?
很开心,这次给大家带来屋主家前后花了20万装修90平婚房,装修风格选择现在比较流行的轻奢风格,整体搭配出来的效果太让人喜欢了,而且也非常符合年轻人的审美与需求。整体的效果还不错,尤其是即使不做电视墙也很有档次,让人看了都羡慕,太幸福了!还没装修或者正在打算装修的朋友,可以参考一下!

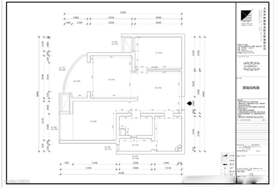
这是户型图,面积90平两居室的房子,户型中规中矩,不是很好,也不是特别差。有一个圆弧的阳台,显得空间还是比较宽敞的哈,唯一的遗憾就是没有独立的玄关。

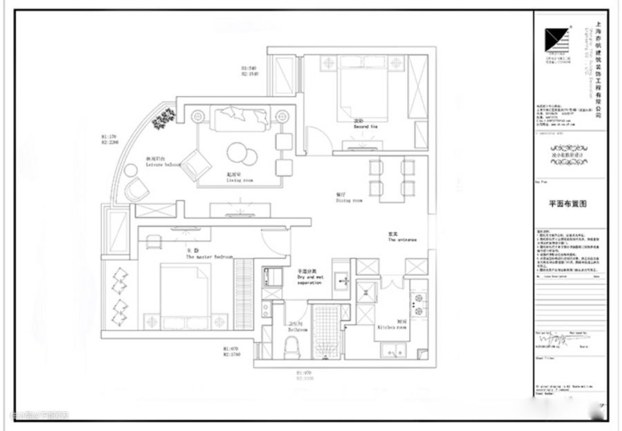
这是改造之后的家具平面布置图,其实变动最大就是厨房和卫生间共用的阳台作为卫生间的一部分,使得浴室柜可以分开出来,增加了卫生间的空间,也作为洗衣区。而客厅与阳台打通,增加了很多室内面积,其他基本没有什么变动了。

从入户大门进来就是餐厅区域了,利用卫生间门口区域设计了鞋柜,这样就可以满足夫妻俩,以后一家三口的储物需求了,并且不会对餐厅区域造成影响,都安装了柜门,显得比较美观,看着就是一面墙体的感觉,考虑真正周到啊。可能很多人家里一进屋就是属于这样的户型,可以参考一下。

餐厅布置了一张大理石方形餐桌,人多如果需要调整位置的话,非常方便,快捷。搭配的餐椅其中两把是蓝色的,另外两把为灰色,搭配起来色彩上协调的同时,显得更丰富一些。旁边布置了小餐边柜,可以提供更多的储物空间,特别实用。

餐厅顶面安装了三盏式的黄铜吊灯,晚上灯光照明亮度,并且不刺眼。与家里装修的轻奢风格完美搭配,婚房能保持一致的效果,真心蛮不错的,可以看出来花了很多心思呢。

客厅和餐厅是不在一个区域,左侧进去就是厨房了,旁边就是卫生间,然后往两边过去就是客厅和卧室。顶面有房梁,安装了吊顶可以把房梁藏住,同时也可以把中央空调包起来,显得特别美观,很有空间层次感。

很多年轻人装修的时候,最多考虑家里的客厅电视背景墙到底想要什么样的一种效果了。而屋主他们家选择了不做电视背景墙,整个空间的效果也显得很有档次,真心不错。这种效果更耐看,以后生活过程中,百看不厌,不会觉得过时。电视机直接挂墙上,可以为电视柜节省一些空间,东西定制的电视柜,可以提供蛮不错的储物空间,考虑真周到啊。

客厅布置了蓝色的布艺沙发,其中搭配了一把偏黄色的沙发椅,刚好完美搭配。沙发背景墙直接贴了石膏线条,显得比较简洁。挂着两幅装饰画,真心漂亮。特别喜欢沙发旁边布置的黄铜材质的落地灯,颜值很高,显得很有质感。黄铜色与整个空间搭配,太轻奢时尚了。

客厅与阳台是打通的,显得空间更宽敞,虽然楼层不高,但是采光还是蛮不错的。阳台定制了非常实用的储物柜,可以提供更多的储物空间,太让人满意了。辛辛苦苦换来的房子,半点空间都舍不得浪费。而且阳台用玻璃封住,刮风下雨都不怕。

主卧床头背景墙刷了粉红色,与其他灰色的墙面形成区别,效果更美。布置了一张睡着特别舒服的双人大床,床上四件套选择满天星的灰色四件套,真好看,特别暖和。毕竟是作为婚房,床头墙上挂着婚纱照,满满都是幸福的味道。床头两边安装的黄铜吊灯真心让人喜欢。

定制的衣柜直接到顶,半点空间都舍不得浪费,而且选择白色,也比较让人满意。全屋都是铺贴木地板,没有瓷砖那种冷冰冰的感觉,更舒适。还有一间儿童房,没有单独拍出来。

卫生间安装了这种小门,显得非常个性,同时不会让人觉得空间拥挤,效果还是蛮不错的哈。


厨房空间不大,形成了“U”字型,并且布局形成了“洗、切、炒”的顺序,使用特别方便。定制的橱柜质量做工都还不错,而且利用墙上的位置,安装了置物架,可以更方便收纳一些东西,真心不错,保持厨房干干净净。地面铺贴的瓷砖是灰色的,特别耐脏。


卫生间扩大了,所以这个区域可以划分出来,可以放洗衣机,另外一边就是浴室柜了,更方便使用。

安装了颜值非常高的台上盆,不过稍微往上抬了一些,安装了柜式镜子,可以适当增加一些储物空间,觉得很实用。

卫生间安装了智能马桶,做了干湿分离,洗澡冲凉不会受到任何影响。布局合理,铺贴的瓷砖搭配出来的效果干净又漂亮,太有档次了。案例分享于互联网,仅作为帮助更好的了解装修,仅作为参考对比,分享给有需要的人,绝无任何商业目的,此文章不代表任何立场,不承担任何责任,如侵删。
婚房能装出这样的效果,真心不错,全屋装修花了20万非常值得,而且轻奢风格太喜欢了,真心希望以后我家也能装出这样的效果。尤其是家里不做电视墙,非常值得参考,可以节省一些开支呢。最后,祝愿他们新婚快乐,早生贵子,也希望他们生活越来越幸福!