装修要不要请设计师设计?这6大好处,请过设计师的人才知道
设计馆
2021-05-13
随着人们生活水平与价值认知的提升,装修花钱请设计师先做个方案,已经是非常普遍的装修方式了。正所谓“专业的事交给专业的人”,装修设计方面,正是设计师擅长的事。今天,我就来聊聊我对“装修要不要请设计师设计?”这个问题的看法,因为设计费动辄几千上万块,花费不小,所以我的文章也是写得比较全面细致,看完大概需要20分钟,但看完肯定会让你对设计师有更深刻的认知。
1、装修要不要请设计师?
①看设计要求
不同人对装修的要求都是不一样的,如果你对设计要求高,希望把家装修得更加实用且美观,那么请个设计师还是很有必要的。比如实用方面,设计师可以从空间规划、收纳储物、动线宽松、材质舒适等方面,给你一个更好的方案;而在美观方面,设计师则是会通过硬装造型、颜色、灯光与家居软装等搭配,让你家变得更加美观大方。

②看改造需求
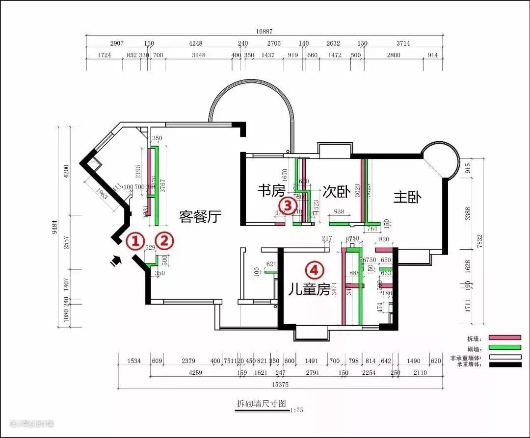
像广州城区的老房子,户型设计不合理,住起来极度不适。因此很多人买了旧房子的,都是想着要改造一下户型。在户型改造优化方面,专业的设计师绝对是会给你超乎想像的方案的。比如我之前在广州遇到过一个客户,买了二房想要改三房,他家户型如下:

▲户型分析,有5个问题需解决。
然后客户自己的设计想法如下:

▲按客户自己想法做的话,客餐厅成为了暗厅,而且客厅与餐厅的家具也不好摆放。
最终我们给出的方案如下:

▲实现二房改三房,解决了户型硬伤,还重新规划了客餐厅之间的格局,解决了玄关的尴尬,同时以室内窗与新风系统大程度改善了采光与通风问题,而卫生间也是采用了四分离的设计,把如厕、洗手盆、洗衣区、淋浴区分开,避免早上一人上厕所,全家人排队的囧境。
③看装修预算
装修预算其实是个无底洞,同样100平的房子,有些人5万就能拎包入住,而有的人20万都只是打个底。对于装修预算太低,想要5万拎包的话,实在就没必要浪费几千上万块去请设计师了。通常装修半包预算在1000元/平左右的话,想要装修出中档以上的效果,建议抽点预算去请设计师,真的物超所值。

▲请设计师的费用,是物超所值。
2、花钱请设计师的6大好处
①风格搭配
设计师可以通过设计效果图,让提前你看到装修好后的大致效果,如果不喜欢的话就直接让设计师换个方案。但如果没请设计师的话,装修出来才知道不喜欢,想要换的话,重新装修成本就大了!

▲物超所值1:有设计方案,避免装修效果不喜欢,重新装修浪费钱。
包括买家具、灯具也是,设计师会给你更专业的意见,避免你买的款式不对,装上去效果不好。然后再换个款式就浪费钱了。

▲物超所值2:避免买错家具等灯具,浪费钱。
②户型改造
在你交待了居住情况与设计需求或给设计师写了《设计委托信》后,设计师会根据你家的情况来给户型做更加合理的分配与改造,让房子变成更适合你家居住。

▲物超所值3:户型合理,住得舒适。
③选材把控
专业的设计师,除了效果图,还会给你整理一份《主材清单表》,里面会详细记录你家设计方案所用到的装修主材料,比如瓷砖的颜色与尺寸、木地板的纹理颜色、墙纸墙面的图案、墙面涂料的颜色等。
▲《主材清单表》示意。
然后你去材料市场买材料的时候,就可以对着图片去选材料,不用担心买回来的材料款式不对,然后装修出来的效果“东施效颦”。如果是同所在地的设计师,还可以邀请设计师跟你一同去材料市场选材。

▲物超所值4:选材省心不出错。
④施工把控
有了设计师的详细设计方案,你家装修里的每个地面、每面墙、每个天花造型都会有施工图,所有地方的尺寸、用材与工艺都清清楚楚。

▲电视墙的施工图。
因为施工图有了详细的用材、尺寸与工艺,找装修公司或施工队报价的时候,有猫腻的话也更容易发现,拒绝偷漏项的行为,淘汰玩套路的装修公司。

▲物超所值5:拒绝装修公司的报价套路。
然后设计师的工地经验多,熟悉的材料与工艺也多,在施工遇到问题的时候,设计师也会有更多的解决方案参考。

▲我的日常工作之一:给装修工人讲解施工方案。
⑤细节考虑更全面
设计师对家具、柜子、马桶等的高度、宽度等尺寸非常熟悉,在设计布置这些家具的时候,会综合考虑相邻的家具、插座、开门范围等因素,避免装修后才发现:厕所门被马桶顶住、插座被家具挡住等情况。比如现在很流行的智能马桶,就需要在马桶旁边留插座,但卫生间面积小,留插座的时候,就要充分考虑插座与马桶的位置关系,避免马桶挡住插座的情况。

▲物超所值6:细节考虑到位,插座不被挡。
⑥同样预算,请设计师的效果更好
同样的20万的装修预算,没请设计师的乱买乱搭效果差,请了设计师合理搭配效果更好。因为设计师对工艺、材料有着更全面的知识,可以根据你的预算需求来做一个更好的搭配;而没请设计师的话,自己没经验,只能是在自己有限的认知里面去选了。

▲物超所值7:设计师更熟悉工艺与材料,同样的价钱,会给你更多方案可选。
就比如我之前有个客户,在找我设计师之前,他一直是打算买柜式空调的,后来沟通发现他家客厅小,摆个柜机很浪费空间,我就建议他换成价格相当的风管机,经过一番了解,他才知道原来同样的价格下,还有这么好的选择,他连声感叹说幸好找了我设计。

▲风管机造价与柜机空调差不多,但是效果却要更好。
作为一枚网红设计师,我遇到很多粉丝装修到一半,出问题了就加我好友来问“我家这个背景墙感觉好丑怎么处理?”、“我这个沙发颜色感觉别扭怎么办?”、“我这个吊顶要怎么做才好看?”——对于这类问题,如果是硬装的我就建议“忍住(忍忍入住)”,毕竟花了几十万装修的,硬装又是不可改的,总不能刚装修好就砸掉重装吧!?如果是软装方面的话,比如沙发款式不对,还可以花点钱换掉。

▲沙发款式不好可以换,但硬装不喜欢就难改了。
其实,如果他们装修有请设计师的话,就不会遇到这样花钱效果差、浪费钱换家具的情况了!所以——如果对装修有要求的话,请设计师还是很有必要的!专业的设计师,可以在风格搭配、户型改造、选材把控、施工把控、细节考虑等角度,给你很多实用的参考意见。让你花同样的钱,设计出更好的装修效果。

当然,以上我提到的设计师一般都是工作室或设计公司的专业设计师,对于装修公司的免费设计,恐怕就未必有这般专业、敬业了。