89㎡两室改三室,客厅不买沙发,舍弃电视墙,围合卡座超实用
渭南空间设计
2021-05-20
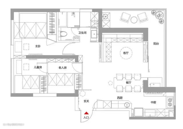
这套89平米的房子,原户型是两居室,但因为屋主需要多一间房,设计师便舍弃了电视墙,将餐厅改到了客厅和厨房中间,而原来餐厅空间结合次卧做成了两间房,这样一来,原来的两居就变成了三居,极大提高了空间利用率,满足了屋主需求。

▲ 平面布局图
玄 关

▲ 进门就是客厅,考虑到入户隐私性,便在入户门对面加了一道原木栅栏隔断,既不会影响采光,视觉效果也很自然大方。

▲ 换个角度,可以正面看到玄关。进门右手边的鞋柜与西厨橱柜相连,无把手的设计让柜体的立面看起来更大气美观。
西 厨

▲ 这里是西厨区,大面积的整体橱柜,将大大小小的厨房电器都容纳其中,浑然一体的结构不仅实用漂亮,利用率也很高。
餐 厅

▲ 西厨旁边就是餐厅,餐桌是用石质台面加木质主体结构打造而成的,冷硬与温润和谐搭配,整个空间看起来简洁富有生机。

▲ 厨房和餐厅的地面做了明显区分,一边是瓷砖,一边是木板,不规则的线条划分,充满个性与活力。绿色的橱柜,也为这个以白色和原木色为主的居室带来了更多的美感。
厨 房

▲ 这是中厨区,U型布局利用率高,但因为空间不够宽敞,所以左边没有做橱柜,但一字型台面也为厨房增加一些摆放和备菜空间。
客 厅

▲ 客厅就在餐厨旁边,餐桌为基准点,将各个功能区划分开来。

▲ 这个家的客厅与之前常见的客厅有所不同,沙发是用地柜加软垫来实现的,L型布局与电视柜形成了一个围合结构,小孩子在这里玩耍也是极好的。

▲ 卡座背景墙面的上方还安装了一排吊柜,增加客厅收纳空间。原本的电视墙空间被改造成了餐厅,现在电视机被安排到了靠近阳台那边的卡座柜上,舍弃电视墙,将空间利用最大化。

▲ 客餐厅共用一个吊顶,简洁的回字形结构,丰富了层次感,加上筒灯和灯带,真的非常漂亮。

▲ 客厅的卡座沙发下面还可以塞收纳篮,利用率很高。
父 母 房

▲ 这间是父母房,为了节省空间没有买床,而是直接定制榻榻米,右边是大面积的柜子,便于储物。这个方向往里走,便是儿童房。
儿 童 房

▲ 儿童房面积不大,左边也是定制的榻榻米床,床底有抽屉可以储物;右边则连接着书桌,方便小孩日常学习。

▲ 儿童房和父母房中间的隔断柜也是儿童房的衣柜。

▲ 回到老人房,沿着这条过道可以去到客厅,当然儿童房也必须由此进入,有些朋友可能会觉得麻烦,但真的面积有限,能满足需求已经很不容易了。
主 卧

▲ 这间是主卧室。进门对面是一条长形的隔板桌,可作为梳妆台以及书桌使用。

▲ 中间的桌面板可以拉开,里面是一面镜子,女主人用来化妆正好。墙面还做了嵌入式书柜书架。

▲ 主卧室也为了节省空间没有买床,与另外两间房一样,采用了定制榻榻米地床,多了很多储物空间。
卫 生 间

▲ 卫生间遵循了三分离的布局方法,如厕区、洗漱区和淋浴区分别设有不同的门,这样就能单独使用了。

▲ 洗漱台左右各一个,镜面柜在视觉上可以起到扩大空间的作用。

▲ 左侧的洗漱台下面还塞下了洗衣机。
阳 台

▲ 阳台用黑框玻璃完全封闭,既隔绝了外界的灰尘和一些噪音,又不影响采光和视野。上下柜用来收纳一些杂七杂八的物品。

▲ 阳台的这一边是晾晒区,紧靠墙面也做了到顶收纳柜。