开关插座装多高,收藏这一篇就够了
壹木设计事务所白熊
2021-05-22
有不少装修的小伙伴在前期不会考虑开关插座布局问题,导致后期入住时居住体验非常不好,开关插座布局在房屋整个空间设计和施工中非常重要,今天给大家整理了一篇开关插座布局知识快来看看吧!
开关

插座

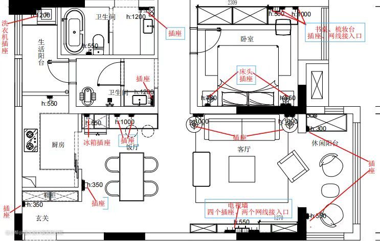
一、玄关
开关: 玄关处一定要留两组双控开关,一组控制玄关过道,一组控制客厅,高度在130cm。
插座:在玄关鞋柜下方可预留一个插座,作烘鞋机使用。高度15-50cm。

二、客厅
开关:在要进入客厅的空间的位置安装可控制玄关过道的双控开关,走到玄关尽头方便关闭高度130cm。客厅另一组开关可放在卧室过道起始处,高度130cm。
插座:客厅的插座需求较多,首先电视墙下方预留四个插座和两个网线接入口的位置,高度30-55cm。沙发两侧后方各两个插座可供在沙发休息时电子产品充电,高度30-100cm。


三、餐厅
开关:饭厅一般可做单控开关,用餐时打开,用餐完毕关掉。高度130cm。
插座:饭厅餐桌处可预留两个插座,高度35cm。如有冰箱预留冰箱插座,高度50cm

四、厨房
开关:厨房开关可设计在厨房里面,也可设计和饭厅一起。高度130cm
插座:厨房插座布局相对复杂,一般要预留6 - 8个插座位置。高度根据实地测算。

五、卧室
开关:卧室一般为双控开关,进门处安装一个,高度130cm,床头安装另一个开关,高度70cm。
插座:床头两侧安装,一侧两个插座,另一侧安装一个插座,因为这一侧有一个开关,书桌处预留两个插座,一个网线接入口位置,梳妆台预留两个插座,高度100cm。如需安装空调,预留一个空调插座。
如需安装电视,电视下方预留两个插座,一个网线接入口,高度100cm。

六、卫生间
开关:进门处安装单控开关,高度130cm。
插座:预留4-6个插座。

Ps:除了卧室床头,其余开关高度为130cm