175㎡现代工业风,水泥质感客厅格外高级
四川桔梓工匠装饰集团
2021-05-22
说在前面
空间主要以艺术涂料、不锈钢、木饰面、和文化砖为墙面背景的主调。
家装主要是采用黑白灰色系黑色给人的感觉是神秘冷酷的,白色给人的感觉是优雅静谧的,白色和黑色混合搭配的话在层次上会出现更多的变化。把有颜敢任性的工业风完美的体现出来。
把裸露在外的水电线和管道线通过在颜色和位置上合理的安排,组成工业风格家装的视觉元素之一。屋内采用大量木饰面,质地柔软,色彩柔和,能够柔化整体空间氛围,其纵深的立体感亦能提升家居档次。
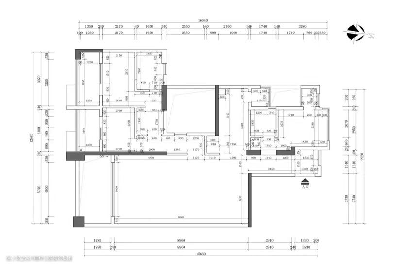
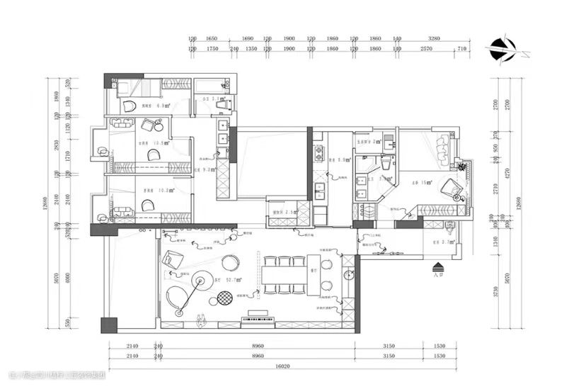
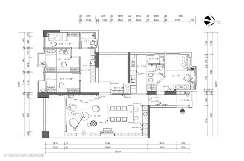
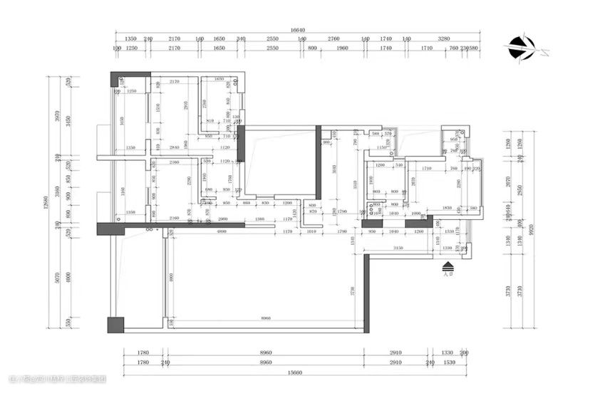
户型图

本案业主最看重的便是客厅改造,希望客厅能实现多功能区又能独自分离,所以重点也在客厅,业主本身就非常年轻,最终完美呈现了他想要的效果。#户型改造

通过与业主的沟通了解,设计师将客厅分为运动区,阅读区,西厨区 以及还要考虑偶尔有客人来时候客厅临时住人的功能。各功能区之间如何和谐过度结合。#户型改造#工业风
玄关

玄关处白色外墙为主,一面铁艺网格做悬挂作用,解决收纳摆放,随意自由,这样的设计,似乎挂什么都带着点街头艺术。#玄关#工业风#收纳#新房改造#大平层
客厅

作为客厅的阅读区,一整面木饰书柜,并不单调。格子多变错落有致,暖色灯带照射下,格外温馨,灯光亦使得整体照明更明亮。人字滑梯的中间部分的低位空格方便孩子使用,同时顶部几个柔和的射灯,方便孩子直接在人字梯底部阅读或者玩耍#客厅多功能区#书柜设计#客厅设计

沙发区域采取海色金属质感 (灯也采取黑色),造型独特的单人沙发与茶几,与背后以家为造型的木饰柜构成了一种家园与太空的强烈对比,冷暖交替,带给人无尽想象。皮质软沙发带来的视觉舒适,整个客厅区的颜色基调为灰,黑,棕 以及休闲椅,总体色调偏冷,但有不失温暖的点缀。#客厅沙发#客厅设计#工业风#对比#

客厅的运动区,裸墙上的攀岩与悬挂的沙袋,小小的一处空间,享受极限运动带来的快感。#运动区#功能区#客厅

一个吊环,一个木质原梯,小孩的玩乐世界,充满着有趣多彩。灰色水泥墙,相得映彰。#吊环#儿童玩乐区#多功能区#客厅
厨房

客厅中的开放式西厨区,L型嵌入式定制柜,烤箱等嵌入收纳,整洁了空间。#西厨区设计#厨房设计#灯饰#装饰
餐厅

木质地板通铺,餐厅左面墙,别出心裁。旧式红黑交替砖,做旧木色儿童椅,这个小区域,仿佛可以拍出个年代照。#设计#工业风#餐厅

最有趣也是业主最喜欢的其中之一便是餐桌上的麻绳吊灯,搭配清水泥的顶,无语言表的工业风扑面而来。#餐厅#灯饰#装饰
卧室

卧室已白色为主,蓝色为点缀。#卧室设计#卧室改造
卫生间

长虹玻璃门通透,镜面柜保证了收纳,干湿分离,沐浴亦带好心情。#卫生间设计#干湿分离