感谢13套案例给了参考,拿了房就要改造!这才是理想的精装房
李秀玲设计师
2021-06-10
理想中的精装房,拿房=拎包入住;而现实中的精装房……拿房=丑哭=后悔=改造
好吧,今天来给大家分享13套已落地的精装房改造案例,希望可以给买了精装房的朋友一些参考和灵感:
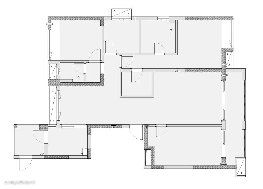
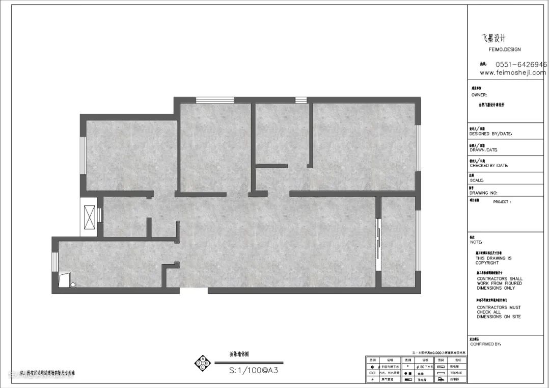
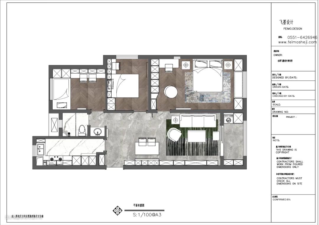
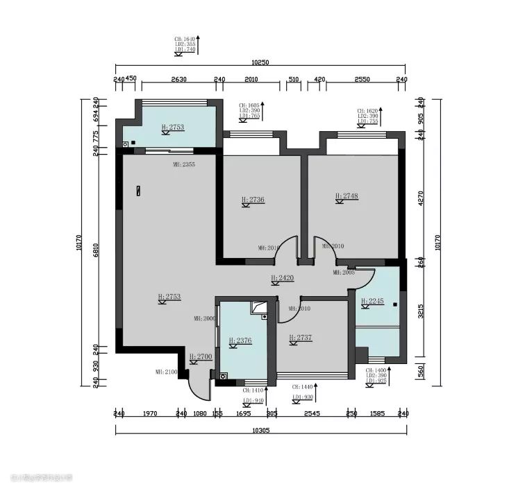
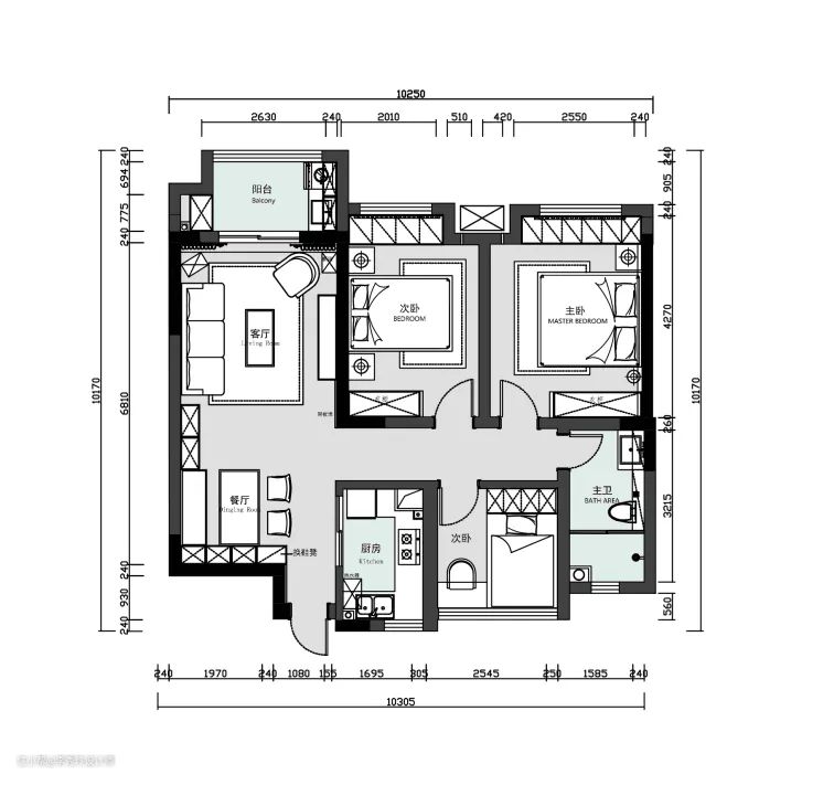
01《Just for you》

面积:160㎡四室两厅
风格:轻奢法式风
半包:19.5W
小区:合肥-金科博翠天辰

原始户型&设计方案

设计亮点:阳台扩入客厅并划分出独立衣帽间,且实现了独立玄关;保留三个卧室,将正对女儿房的空间改成了开放式书房;改变厨房结构并利用餐厅空间实现中西厨。
前后对比▽
【客厅】

【餐厅】

【主卧】

02《鎏光》

面积:145㎡四室两厅
风格:现代轻奢风
半包:硬装10W,软装10W
小区:合肥-中国府

原始户型&设计方案

设计亮点:在未动户型结构的前提下进行全屋整体改造;通过软装搭配和收纳规划让家焕然一新。
前后对比▽
【客厅】

【餐厅】

【主卧】

03《觅春》

面积:88㎡三室两厅
风格:现代简约风
半包:11W
小区:合肥-保利五月花

设计亮点:原始厨房面积太小,封闭式的布局太过拥挤,于是拆除墙体,做了开放式的设计;拆除厨房与卫生间之间的墙体,新建窄墙,扩大厨房面积;将北次卧与主卧之间墙体拆除,设计主卧+衣帽间的布局。
前后对比▽
【客餐厅】


【主卧】

【卫生间】

04《期颐》

面积:140㎡四室两厅
风格:中古北欧风
半包:11W
小区:合肥-栢悦公馆

原始户型&平面方案

设计亮点:拆除玄关部分非承重墙,将厨房门移位,原始门洞设计嵌入式玄关柜,缓解玄关收纳压力;冰箱移入餐厅,嵌入储藏间的墙体,并在餐厅设计岛台,功能更丰富实用。
储藏间与餐厅之间设计双面柜体,实用性更高;缩小主卧卫生间,扩大卧室面积;主卫门体嵌入墙体内部,设计隐形门。
前后对比▽
【客厅】

【餐厅】

【主卧】

05《追光》

面积:148㎡四室两厅
风格:现代风
半包:21W
小区:合肥-融福园

原始户型&平面方案

设计亮点:拆除客餐厅中间的衣帽间,提高空间通透度;悬浮式柜体保证空间隐私,解决玄关收纳;客厅与主卧之间设计嵌入式柜体,保证空间的整体性;南次卧用隐形门解决隐私性问题。
前后对比▽
【玄关+客厅】

【餐厅】

【主卧】

06《夏日狂想曲》

面积:130㎡三室两厅
风格:美式轻奢风
半包:硬装9W,软装6W
小区:合肥-凯旋门

原始户型&平面方案

设计亮点:空间规划上保留两间卧室+书房;主卧结合衣帽间+卫生间,形成套间格局,舒适度更高;餐厅设计吧台,满足更多生活场景。
前后对比▽
【客厅】

【餐厅】

【主卧】

07《星河万顷》

面积:152㎡四室两厅
风格:美式轻奢风
半包:硬装15W,软装14W
小区:合肥-铂悦庐州府

原始户型&平面方案

设计亮点:空间规划上保留三间卧室+书房;局部户型改造将空间利用率最大化;儿童房高低床设计+阶梯吊顶将空间充分利用。
前后对比▽
【客厅】

【主卧】

08《云开》

面积:130㎡四室两厅
风格:复古北欧风
半包:7W
小区:合肥-中海央墅

原始户型&平面方案

设计亮点:在尽量不动硬装的前提下进行全屋整体改造;取消两个卧室功能改成衣帽间与书房。
前后对比▽
【客厅】

【餐厅】

【主卧】

09《热恋夏威夷》

面积:105㎡三室两厅
风格:美式混搭风
半包:硬装14.7W,软装5.9W
小区:合肥-万科森林公园旭庭

原始户型&平面方案

设计亮点:主卫并入主卧,提高空间利用率;客餐厅一体化,电视背景墙与餐边柜结合并设计卡座,增强收纳能力;现场手工柜体,实用度更高。
前后对比▽
【客厅】

【主卧】

【书房】

010《风之回响》

面积:130㎡三室两厅
风格:混搭风
半包:软装7.5W
小区:合肥-政务壹号

原始户型&平面方案

设计亮点:空间规划上保留三间卧室+书房;定制家具与色彩搭配和谐统一。
实景现场▽
【客厅】

【餐厅】

【主卧】

011《秋河日落》

面积:96㎡三室两厅
风格:现代简约风
半包:13W
小区:合肥-加侨悦湖公馆

原始户型&平面方案

设计亮点:餐厅设计卡座,提高空间收纳能力,且实现玄关功能;更改洗衣机位置,优化阳台功能。客厅设计黑板墙,可以记事。设计多功能书房,可作为办公间、儿童房使用。把设备平台扩进了卫生间,完善了使用功能。
前后对比▽
【客厅】

【餐厅】

【主卧】

012《指尖流光》

面积:200㎡四室两厅
风格:北欧风
半包:15W
小区:合肥-恒大华府

原始户型&平面方案

设计亮点:自然系配色丰富空间;全屋柜体现场手工打造,实现完善的收纳系统;客厅卧室护墙板设计,增强隔音,美观优雅;增加全屋影音系统,提高生活格调。
前后对比▽
【客厅】

【餐厅】

013《夏盎》

面积:99㎡三室两厅
风格:混搭风
半包:13W
小区:合肥-新地中心
平面方案

设计亮点:餐厅卡座的设计,充分利用空间;扩大女儿房的书房,打造休闲卧榻;重新规划灯光,提高空间亮度;全屋合理设计收纳,提高收纳力。
前后对比▽
【客厅】

【餐厅】

好,13套精装房案例咱们今天就看到这里了,祝大家的精装房都能好住又好看!