如何挑选优质户型看这6个要点#干货
设计师猫姐
2021-06-22
房子楼层很重要,但是除了看楼层,还要看朝向,看遮挡关系,看房子的通透性,房子的布局和结构。
1.看楼层
1-5楼的采光不好,一般会被植物遮挡。尤其是一楼,买房的时候看样板间在一楼,外面是草坪很不错,因为那时候小区里还没有种上树子,容易被一楼的样板间误导,觉着环境好,就跟住别墅一样,完全不是一个概念,一楼还有一个问题就是潮湿,日照短。

顶楼如果是高层的话,建议不要购买,顶楼有漏水的风险,顶楼还有一个问题就是冬天冷夏天热,顶楼的安全性要差一些,小偷喜欢光顾顶楼。如果房子不是高层,楼顶带花园,这种房子居住体验就好多了,相当于自己家多出一个院子,可以种上花花草草,生活过得美滋滋。
顶楼的价格一般要比中间层的楼房便宜很多,一般楼顶的房子也会在最后的时候买出去,性价比高些。
选房子楼层是很重要,普通住宅一楼的采光不好,顶楼容易漏水,安全性不好,但是底楼和顶楼的价格相对便宜。
顶楼还一个问题,楼顶是公共空间,有的时候楼顶可能有人会在上面种菜,晒衣服,还有在上面运动跳绳的,家里的隔音问题也要考虑。
腰线层可定要比没有腰线的差一些,但是有些我看见说是会影响采光,这个有点过分了,腰线对采光影响很小的,主要问题是腰线层会有一个很窄的台子,安全性要差些,同样的价格肯定买没有腰线的好些,一般腰线层是房价的分界线。
选房不要选腰线层,开发商为了装饰,在一些楼的外墙做装饰,突出的部分,为了好看,其实对这一层是不利的,可能会造成房屋漏水,也是小偷打主意的楼层之一。这种腰线是开发商用了标价用的,你仔细观察一下,很多楼盘都会把腰线设在五楼,二十八楼到三十楼会有腰线,掐头去尾中间最贵。
2.看朝向
买房除了看楼层还有看朝向,朝南的要比朝东西的好,朝东西比朝北的好。朝南的采光好,日照长,朝东边的房子日照不足,朝西北的房子西晒,朝北的房子常年看不到阳光。
3.看遮挡关系

买房除了看朝向,还有要看遮挡关系,你的房子虽然朝南,但是整体的楼栋布局客厅对你的房子有遮挡,这样的户型采光也不行。相对于楼层户型的通透性和视野很重要,有些户型虽然通透,但是也可能被邻居家的墙遮挡一大半,采光就会变差。

楼栋和楼栋之间间距也会有遮挡关系,选房子之前先看一下楼栋之间的遮挡关系,再看楼层户型的遮挡关系。
4.看房子的通透性

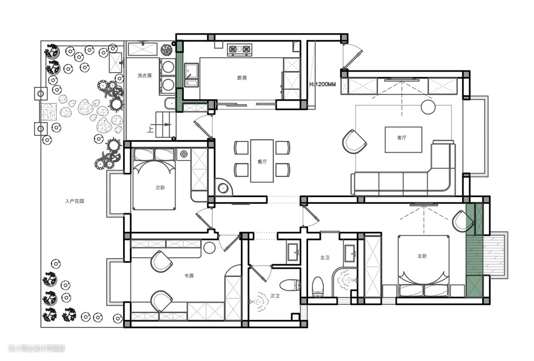
买房除了看朝向还要看通透性,房屋的空间流通关系到健康问题,一般南北通透最佳,其次是东西通透。举个例子,看下图房子的南边是窗户,北边是书房有窗户,这种户型就比较通透,空气可以对流。
- 客厅和餐厅一体,客厅窗户朝南,餐厅窗户做北边,两面的窗户打开,可以形成空气对流的过堂风。
- 卧室两个门南北房间门对门,空间可以对流。
- 室内进深短,采光面积大。
5.看户型布局

户型方正浪费空比较少的。2.户型功能齐全的,给大家梳理一下,一套普通住宅要包含的功能分区:独立的入户,不要入户直接对客餐厅的隐私性不好;客厅和餐厅可以连为一体的,空间感好;厨房空间可以做U型厨房的,空间利用率高;双卫设计,好的户型布局90㎡就可以做双卫。有独立的生活阳台,作为洗衣区。客厅有个阳台,可以作为休闲区。
6.户型尺寸面积

房子的客厅、卧室、厨房、卫生间的基本尺寸。
- 客厅宽度大于3.5米的才是优质的客厅距离,这样观看电视的时候才不会累。
- 卧室面积要大于9㎡,才可以做收纳柜才舒适。
- 厨房面积要大于6㎡,操作台面使用才够用,做饭的时候才会舒适。
- 卫生间要大于4㎡,可以做干湿分区,这样的卫生间使用起来才舒适。