80㎡地中海风,卫生间门对着大门,这样布置你喜欢吗?
圳星装饰(南山店)
2021-06-24
户型解析
房屋面积:80㎡ 装修预算:15~20万 风格:地中海 城市:深圳 房型:2室2厅1厨1卫
前后对比

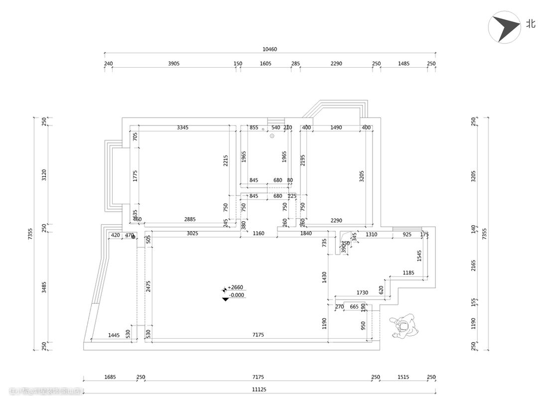
原始户型图 2室2厅

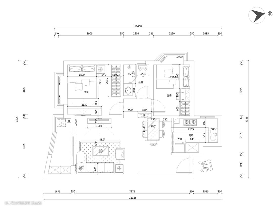
平面布局图 2室2厅
客厅

客厅正面照。

沙发对面。

不同角度的两张:买电视机的时候纠结与55寸还是60寸,还好听老公的买了60寸(虽然他的理由是电视大,看着爽。)

买回来发现其实60寸正好,不然55的话电视墙就显得空了。。。

从客厅往餐厅拍。

来张航海地图的特写,老公为了营造做旧感,特意用打火机烧的坑坑洼洼,哈哈!
餐厅

进门左手边就是餐厅。

执意要的卡座,和设计师刚开始沟通的时候要求就是要有卡座。。。

卡座对面的博古架。

餐厅全貌。

餐桌特写。

再来个进门右手边的鞋柜吧忽略没理整齐的鞋子。。。and枯萎的花朵。

餐厅客厅全貌。

餐厅全貌卡座的侧面贴了2片买的花砖,卡座的弧度是和干区的扶手弧度呼应的!
厨房

厨房也很彩色吧~应景的半帘,米技的绿色的烧水壶,双立人的彩色的刀具,曝光好像有点过。
卫生间

由于大门对着卫生间的门,我比较迷信,觉得不好,所以搞了个百叶门。

打开百叶门后面就是干区,看到干区那个扶手嘛?和卡座是呼应的~~~

干区洗手台的对面就是一个小衣橱。挂平时客人来的外套还有我们平时换下来还不用洗的衣服~很方便的。

特写一张最喜欢的灯的图片,没有选择网上泛滥的蓝色,选了绿色,再加上暖黄的灯光,整个好有feel。

特写干区,从干区对面拍门口。

特写洗手台:扶手也有和淋浴区的扶手呼应吧~~哈哈!

看到卫生间了,那就先更卫生间吧。马桶的上面出于实用性考虑,买了个镜柜,薄薄的,平时上厕所头碰不到的。

卫生间里面:浴帘用了2层,里面加了一层12块的那个浴帘,脏了到时候就直接扔了,便宜也不心疼!
主卧

主卧面积比较小,面积都留给客厅了。

另一边的床头柜买了不一样的,嘿嘿!

床对面:本来是个梳妆台,因为迷信镜子不能对着床,所以没有买镜子,就买了个柜子,当电视柜用也很不错。
次卧

次卧没人住,考虑到有时候父母来可以住住(概率比较小),所以弄得很简单,一个沙发床,一个写字台,沙发床旁边一个衣橱。