50㎡小窝大改造,一人一猫妙生活
禧鑫装饰丨旧房翻新
2021-07-11
【导语】作为曾经的租房一族来讲,拥有一个真正属于自己的家是最幸福的事。虽然房子空间不是很充裕,但是对于一人一猫来讲却是刚刚好的生活空间。无需要过多复杂的设计,将日式简约、精简的理念融合到空间中,就能获得一个完美的家居体验。

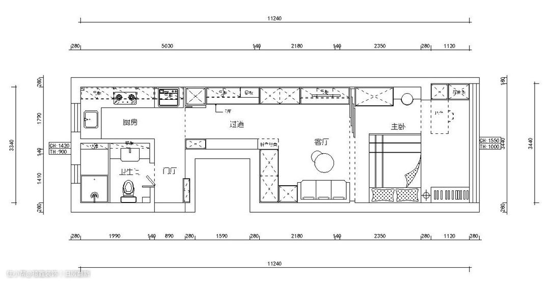
【结构】因为面积有限,所以整体结构为传统的老公房结构,每个空间只能依次排列,所以在优化空间方面只能在每个空间的内部结构上下手。

【玄关】小户型空间的每一处都需要精细化,入户处的空间是一个狭窄的过道,所以将鞋柜内嵌在墙壁中,减少空间压力的同时又可以满足鞋子的收纳,一举两得。


【客厅】沙发虽小但足够精致可爱,沙发一侧做开放格式壁橱,每一寸空间都可以收纳绝不浪费。电视柜的设计采用日式的精巧,内嵌式电视机,外部为组合收纳柜,美观得体的同时东西再多一个电视柜也都能满足需求。

【餐厅】客厅与厨房的过道本来为餐厅的空间,但如果放置餐桌餐椅就会堵塞过道,空间不流通。所以此处将储藏柜设计成小型榻榻米卡座,而餐桌设计可折叠形式,用餐时取出放置过道即可。



【厨房】厨房空间不大但是也充分做了干湿分离,洗菜区在窗户下方拐角处,其余操作台面为烹饪区。在墙面上也做了挂钩,方便墙面空间也能够收纳餐厨具。厨房的剩余空间除了放置冰箱外,还单独设置了洗衣机柜,让空间利用率更加充分。


【卧室】卧室是户主居住和猫咪玩耍的主要空间,所以在卧室的小阳台处设置了一个小猫舍,供猫咪娱乐,材质也是依然采用实木材质,贴近生活,贴近自然。床头处的落地灯和吊灯不仅美观,在夜晚点亮时非常有氛围感。


【卧室】卧室的衣柜与写字桌相互连接,上方安装小圆嵌灯,提供照明。白色的衣柜中间设置开放格也拥有展示的效果。为了拓展储物容量,在写字桌上方做三个木制横板,收纳装饰两不误。

【卫生间】一抹清新抹茶绿让整个卫生间的段位一下子被拉了上来,空间不大设计就需要更加简洁实用。抹茶绿让人心旷神怡,因为家中有一个爱宠猫咪,所以单独为猫咪设计了一个洗漱池,方便给猫咪洗澡淋浴。

【卫生间】所有收纳都尽可能采用内嵌式,水磨石材质壁龛时尚简约,实打实的高颜值。长方形自带灯带的镜面更大程度上拓宽了空间感,木质壁橱收纳洗漱物品。