工艺 | 同层与异层排水优缺点对比,看完你立马清晰
设计师阿琳呀🌻
2021-07-17
家
温暖、静谧
舒适、安全
能让你抛弃一切烦恼
放松身心
营造一个舒适的家
就像建造一台精密的仪器
每一个环节、每一个角度
都做到最好

在这个品质为先的时代
细节之处见真知
同层排水与隔层排水的细节较量
究竟谁更占据优势?

住宅卫生间的排水系统做法通常有两种,第一种是卫生器具排水支管穿过楼板,排水支管在下层住户卫生间顶板下连接的排水方式,因为排水管道和卫生器具不在同一楼层,所以称为异层排水;第二种是卫生器具排水支管和排水横管均与卫生器具在同一层连接,不穿越楼板进入下层,这种排水方式称为同层排水。
01
异层排水
住宅卫生间在使用过程中,最被关注的问题是堵塞和渗漏。采用异层排水时,上层住户排水管道悬吊于下层住户卫生间顶板下,如果管道堵塞或者发生渗漏,会直接破坏楼下住户的装潢,影响楼下住户的正常生活,再者,怎样对经济损失进行责任划分直接考验着邻里关系。

图一 异层排水剖面示意图
对比同层排水,异层排水的优势是吊顶内可同时设置排水管及其他管道设备,有利于控制卫生间的实际使用净高,卫生间内无降板,不回填,不需要增加额外建造成本。
但是异层排水的缺点比较明显,它对施工要求较高,穿板留洞位置必须准确,如果需要后期改造及检修,容易与楼下住户产生纠纷。
02
同层排水
相较于异层排水,同层排水管道敷设在本户产权空间以内,便于住户改造卫生间布局,产权也很明晰,避免堵塞和渗漏等管道问题影响下层住户。同层排水根据降板的区域和高度不同又分为四类,一是传统降板同层排水,二是局部降板同层排水,三是微降板同层排水,四是墙排式同层排水。
1
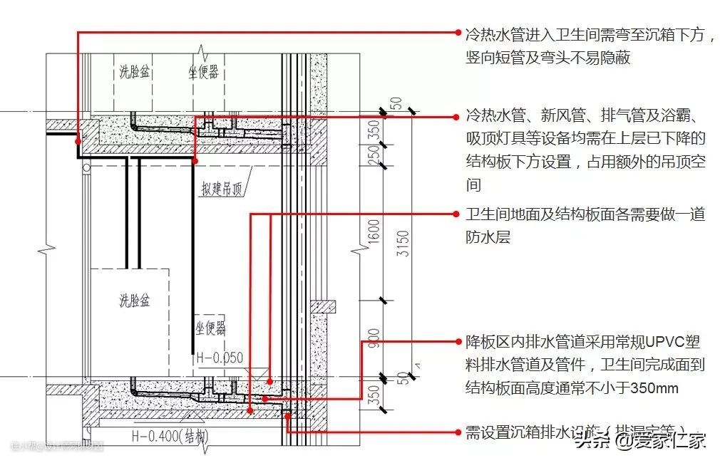
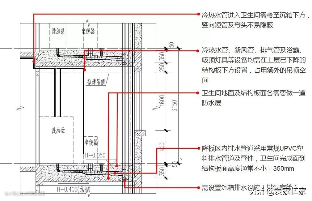
传统全降板同层排水
传统全降板即卫生间楼板整体下降,本层冷热水管、浴霸等管道设备需在上层下降的卫生间楼板下方设置,影响本层卫生间实际可使用净高。

图二 传统全降板同层排水剖面示意图
采用全降板同层排水,本户器具排水管道设于本户卫生间楼板整体下降形成的沉箱内,易于住户改造,后期管道渗漏及检修不会影响其他住户,排水噪音比较小。
但检修时将破坏本户卫生间地面装饰材料及防水层,代价比较大。而卫生间整体降板、整体回填,结构荷载加大,结构板面及建筑完成面各需要做一道防水层及找平层,土建施工难度及成本均较异层排水要高;且需额外设置沉箱排水设施。

图三 传统全降板同层排水土建做法剖面示意图
2
局部降板同层排水
局部降板只需在设置卫生器具及敷设排水管道的区域降板,因局部卫生间楼板并未下降,本层浴霸、吸顶灯具等设备可设在未下降的上层楼板下方,对卫生间使用净高的影响小于全降板同层排水。

图四 局部降板同层排水剖面示意图
采用局部降板同层排水,本户器具排水管道设于本户卫生间楼板局部下降形成的沉箱内,后期管道渗漏及检修不会影响其他住户,卫生间采用局部降板、局部回填的方式,结构荷载较全降板同层排水要小,土建成本较全降板同层排水低,但仍需设置沉箱排水设施。
但因部分卫生间楼板未下降,住户无法将卫生器具调整至沉箱范围以外的区域,改造将受一定限制。
3
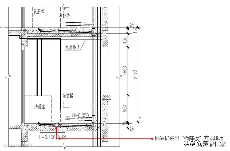
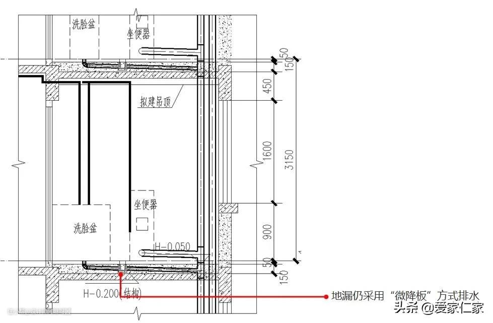
微降板同层排水
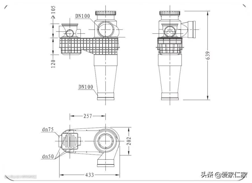
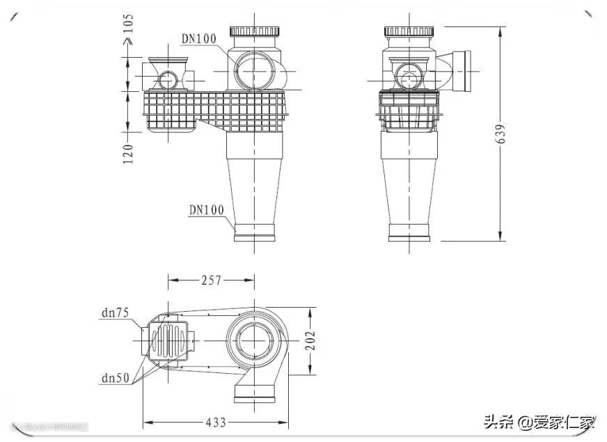
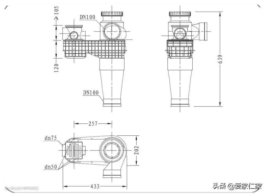
“微降板”即采用一系列特殊的排水管道附件(排水汇合器、排水汇集器、多通道地漏、直埋式地漏、多功能地漏等)代替传统的P型、S型存水弯及排水地漏,从而压缩排水管道安装所需的高度,最终使得同层排水的卫生间完成面至结构板面的降板高度控制在100mm至250mm左右(各类厂家及产品数据有所不同)。


图五 排水汇合器
采用此类排水附件后,卫生间楼板下降高度较小、回填量小,土建成本较传统降板同层排水低,对卫生间使用净高的影响小于全降板同层排水。洗脸盆排水流经多通道地漏可有效避免地漏干涸反臭。在后期使用上,本户器具排水管道设于本户卫生间楼板下降形成的沉箱内,产权明晰,避免纠纷。
但特殊排水附件生产厂家较少,且价格较高,传统管件被特殊管件取代后,成都地区的工程实例项目较少且使用年限不长,长期使用效果有待考证。
4
墙排式同层排水
“墙排”即利用洗脸盆下部空间、浴盆下部空间及坐便器后方的装饰墙体将地漏以外的器具排水管道敷设在本层卫生间靠墙位置并进行隐蔽,地漏管道通常设于高度为100mm的微降板回填层内。
坐便器需选用带隐蔽水箱的后出水式;浴盆需采用水平出水的特殊排水附件。

图六 微降板同层排水剖面示意图
墙排式同层排水仅需100mm的降板高度用于敷设地漏排水管道,对卫生间使用净高的影响较小,但增加的装饰墙体占用了部分理论上的使用空间和使用面积。本户器具排水管道设于本户卫生间墙脚,地漏排水管道设于微降板沉箱内,产权明晰,避免纠纷。卫生间降板高度小、回填量小,但需设置隐蔽水箱和管道所用的装饰墙体。
但是特殊排水附件及后出水式坐便器生产厂家较少,价格较高。
03
同层、异层排水方式的综合对比
不同的排水方式所需要的工程造价差别也比较明显。下表为某项目某一个卫生间的经济测算结果,仅供参考:

从表中很明显的可以看出,微降板和墙排水的排水方式造价较高,而异层、传统同层、局部降板的同层排水造价相对较低。
04
排水方式的适用性分析

由表中可以看出,异层排水和微降板同层排水的空间占用最小,而传统全降板和墙排式同层排水在后期改造和检修上有着明显的优点。
05
市场主流楼盘排水方式统计

从表中可以看出,不同的开发商采用的排水方式也不尽相同。
06
住宅类型与排水方式适用性分析
随着我国民众对居住环境要求的提高,住宅卫生间的设计除满足一般居住使用要求外,还应创造方便、舒适、优美的生活空间。住宅卫生间排水方式类型众多,各有利弊,但综合各方面的因素,我们推荐在新建住宅尤其是精装户型的卫生间采用异层排水,因其改造的可能性小,且异层排水可更好的保证卫生间净高,节约成本;而传统全降板同层排水或局部降板同层排水由于其漏水渗水事故隐蔽性强且难以处理,维修成本高,故应谨慎采用。