75㎡北欧风小户型,利用粉色和蓝色搭配,打造梦幻的家居空间
佰丽爱家旗舰店
2021-07-20
这是一套75㎡的北欧风小户型,全屋以蓝色为基调,并加入粉色和蓝色的软装、家具,打造出一个浪漫、梦幻的家居空间。小编最喜欢餐厅空间,大理石台面餐桌搭配粉色和蓝色的餐椅,非常可爱,餐厅里的一整面墙的餐边柜,面板也选择的粉色和蓝色搭配的设计,可爱又实用!

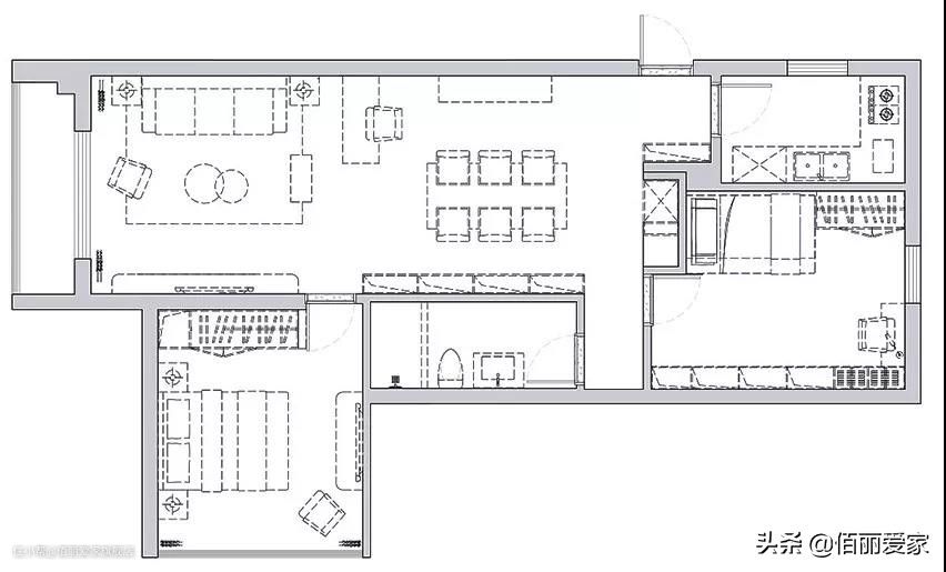
平面布置图

入户左边是厨房,右边是客餐厅,门对面墙做了嵌入式鞋柜,中间留出干净的通道。厨房的玻璃门让厨房与客餐厅的采光更加通透。

客餐厅是一个开放式的设计,墙面从入户开始全被刷上了蓝色墙漆,客餐厅之间的吧台设计成粉色,两个空间形成隔而不断的效果。墙上安装装饰画装点空白的墙面。

餐厅墙面设计的置顶储物柜,展示柜+开门柜的组合设计,面板是蓝色+粉色的搭配,储物能力很强,同时又能起到装饰墙面的效果。

横在客厅与餐厅之间的吧台,连通墙面一起刷成了粉色,在颜色上区分客餐厅两个功能区。吧台上方设置了吊灯,提升吧台的氛围。

相对色彩缤纷的餐厅,客厅的颜色搭配清爽,蓝色沙发和窗帘与蓝色墙面搭配呼应,高低搭配的茶几和地毯提升客厅的质感。

客厅电视墙没有过多的装饰,简单清爽。

卧室床头延续全屋的风格,刷上蓝色的墙漆,再用几幅装饰画来点缀。

衣柜是展示柜与开门柜的结合,蓝色面板为主,加入一面粉色面板,跳跃的色彩搭配与餐厅餐边柜相呼应。

卫生间墙面和地面通铺灰色的瓷砖,淋浴区设置黑框玻璃隔断,隔断功能区不隔断光源,搭配白色的马桶和木色的浴室柜,很干净舒服的搭配。