别再建老土的欧式别墅了,来看看这套带小院的新中式别墅
建房云图库
2021-07-28

建筑尺寸:面宽13.5米 进深 17.9米
建筑面积:336.78
占地面积:153.24
户型概况:
2层 / 5室 3厅5卫 1厨 1娱乐 2储藏 1休闲 1露台
造型设计

一层平面图
一层以公共空间为主,整个房子为L形,留出了院子空间,正房一进门是超大客厅和单跑楼梯,左手边厨餐厅,右手边是带私卫的老人房,沿着左手边走廊来到了天井,增加了采光和观景空间,天井旁做了洗衣房和公卫,再往前走是娱乐室,在这里可以K歌打麻将

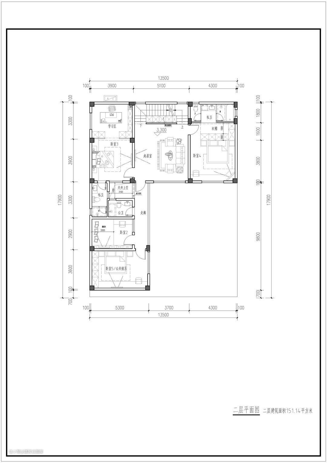
二层平面图
二层以居住功能为主,共布置了4间套房,一个起居室,东南侧为主人房带私卫,西侧为儿童房,设计了学习区,西侧公卫和天井和一层对应,西南侧两个卧室是客房。客人来了可以居住。

阁楼层平面图
阁楼层是做了两个储藏室和一个休闲娱乐室,超大的储藏空间可以放置很多物品,休闲娱乐室也可以改为影音室。
造型设计

△东南侧效果图
建筑整体为新中式风格,使用大面积中式窗纹运用增强建筑的传统韵味,条窗和落地窗设计增加采光效果,既有中式风格的古典高雅又含有现代风格的时尚元素。

△东南侧效果图
中式元素与现代时尚巧妙结合,体现新中式清新脱俗的气息。立面简单、新中式风格的装饰让空间上的变化十分契合,与露台结合,有极佳使用效果。

△东南侧效果图

△庭院俯视图

△庭院夜景俯视图

△东北侧效果图

△西北侧效果图

△北侧效果图
整个外墙采用白色真石漆,屋顶用小青瓦,国风浓郁的木色窗套,处处散发优雅而底蕴浓厚的中式气质。

△西北侧效果图
在院子里观赏风景、独享醇茶、聆听美妙的不期而遇碰撞,展现不同凡响的悠闲美妙的家居时光。

△北侧效果图

△局部效果图

△局部效果图

△庭院效果图

△庭院效果图

△庭院夜景图

△室内效果图

△室内效果图

△室内效果图

△室内效果图

△卧室效果图