122平法式现代复古,玄关弧形改动既美观实用还能补充收纳
搭某设计
2021-07-30
·项目信息·
设计时间:2021年7月
全案设计公司:搭某设计
作品名称:《逆反》
项目名称:香港置地·林山郡
套内面积:122㎡
设计总监:陈蔚昊
设计师:刘浩
风格:法式现代复古
预算:52.5万
(硬装10.5w机电设备8w主材25w软装9w)

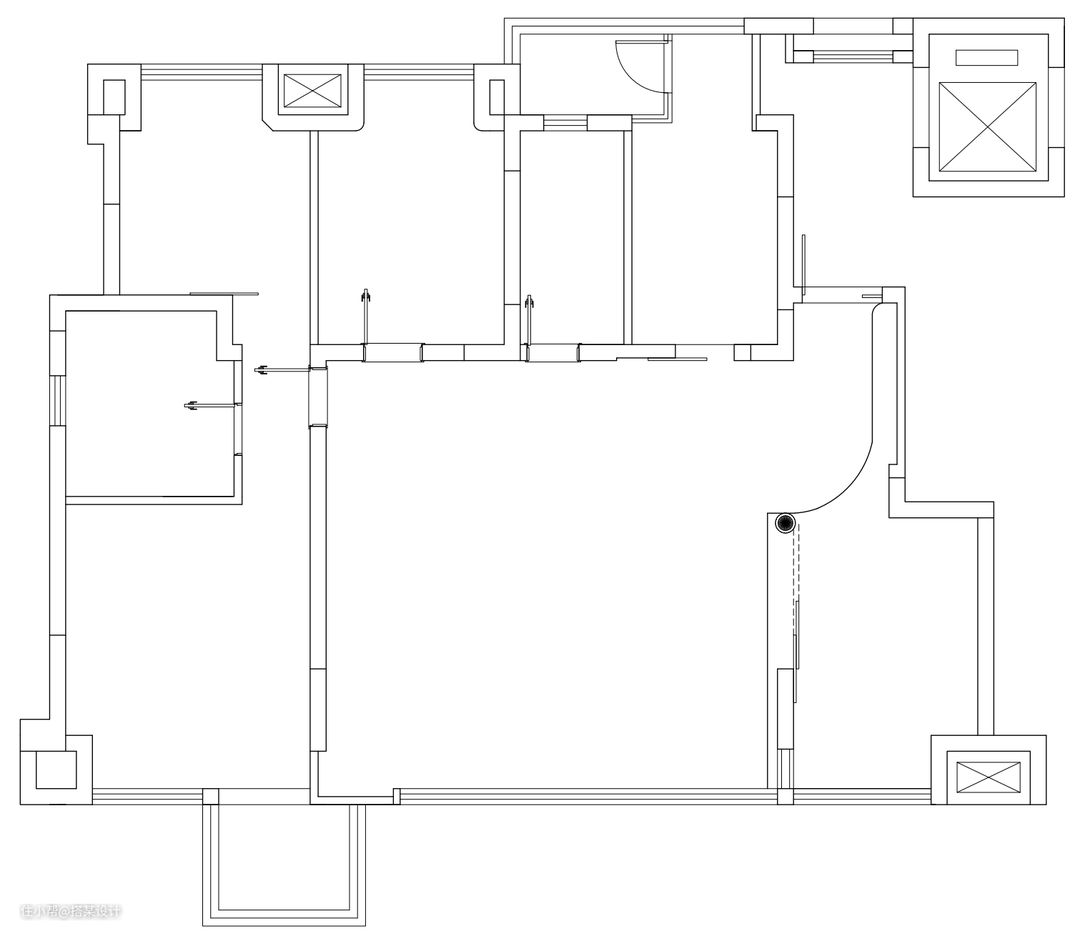
01/户型图
HOUSEHOLD

需求说明:
①业主两人对空间优化、材质质感、色彩搭配都有一定的要求
②业主两人不希望设计过于常规,他们能接受异于常规但又合乎逻辑的设计

业主情况:业主一家为归国高知,一家三口中,男主人现为公司高管,女主人全职太太热爱写作、旅游,家中平时就三口人,父母来居住次数较少
设计思路:设计风格定位在了法式现代与复古,将两种相反的定位进行融合,借鉴Art Deco的有机线条与机械线条元素来碰撞传统法式细节上的精致,同时借鉴希腊建筑的古典柱式,罗马,埃及等等元素
02/玄关
PORCH

我们在对原始户型分析时,发现玄关处在原始的户型结构之中存在两个问题
一、玄关处狭小拥挤,进门动线不是特别流畅
二、玄关处采光不足,光线偏暗。所以在优化上将原有卡在玄关处的墙体拆除,把玄关的空间扩大

再利用弧面将动线改得更为流畅,同时左侧放置错位金属板,沿用Art Deco的机械金属感,右侧放入罗马柱,增强整屋的设计风味,再搭配上透明的艺术长虹玻璃隔断,将旁边书房的光照引入玄关
03/客厅
LIVING ROOM


客厅风格以业主所需求的法式为主,同时做出了现代与复古结合的挑战式设计,采用复古法式与现代艺术相冲击的方式,来展现视觉美感。整个客厅加入弧面元素,结合温柔的灯光让空间给人一种暖暖的感觉


艺术感爆棚的艺术主灯,搭配上意式轻奢水纹灯(WAW COLLECTION),将一种独有的浪漫情调展现出来


为了做出不常规的设计,所以将极具现代感的沙发套件,放入整屋复古的房间中,无疑是一种视觉上的冲击,但细细品味又会发现,它又含有它独特的韵味
04/餐厅
DINING ROOM


在餐厅部分,因为业主注重材质质感,所以采用极具法式艺术感的餐桌,同时质感的选择上,采用偏金属的材质,加上独特的艺术造型,餐厅就显得十分有品味


在对于业主想要的质感的表达,在餐厅后面的单人沙发小憩处,采用极具现代艺术感的装饰,同时艺术褶皱的设计,又表现出一种令人舒服的质感


业主对色彩的搭配也是有一定要求的,所以在餐厅旁边单人沙发小憩处,旁边的玻璃采用了以长虹玻璃为基础,在其表面覆上一层炫彩膜,当户外的阳光从这里进入的时候,会在墙上留下一道斑驳耀斑
同时随着光照强度的不同会在墙上留下不同的色彩,与耀黑的艺术褶皱画卷相呼应,在单人沙发旁边的小桌子上加入一两束插花,让空间显得更具格调
05/书房
READ ROOM

考虑到女业主喜欢阅读和写作,所以将书房的整面墙作为书柜的存在,搭配上透明蓝的的可滑动座椅,给书房增添一点趣味。金色的开放式展示空间中加入灯带,业主收藏的小物品,也就成了书房中吸引人注意的一点色彩

为了体现对空间的优化,同时补充玄关的光照,所以才将门厅旁边的房间改为书房,然后书房的设计以弧线为主,借用半弧形的的处理搭配被法式罗马柱分隔的两个空间,整个书房就有种被包裹在弧形之中
06/卧室
BED ROOM


跟随空间主设计风格,主卧法式复古的风味,主色调采用深浅不一的咖啡色作为空间主色调,具有丰富层次感,尽显复古的气息,犹如一杯咖啡入喉,慢慢品味,回味悠长。打掉原本空间的飘窗,扩大使用面积


主卧的主灯采用艺术感十足的镂空花瓣灯,灯光在房间里散射开来,明朗温柔而不失氛围感;吊灯的顶上采用法式花浮雕,仿佛置身于复古法式的别墅之中

床头灯复古且装饰性较强,灯光柔和不刺眼,给整个房间营造一种温馨的氛围感。两盏灯不仅可以在主人晚上时照亮空间,同时极具法式的浪漫情怀
结语
现代艺术撞上复古情怀
强烈的色彩对比
直接冲击内心深处
感叹艺术所带来的美感
——搭其万殊,某舍为家——
THE END