什么是悬浮设计?
关雎DESIGN
2021-08-04
最近很流行悬浮式设计,今天咱们就来好好谈一谈“悬浮式设计”。

01.
什么是悬浮设计
悬浮设计即悬空设计,简单来说就是“不落地”的设计,通过预埋、加固等处理方式,让柜子,桌板等呈现悬浮的既视感,空间会因此显得更加通透。

这种轻盈与通透的感觉在现代、极简、轻奢风格中尤为重要,不仅仅是紧凑的小户型适用,大户型也会因为悬浮的设计带来更多高级感。

悬浮设计常常会与灯光设计相结合,共同营造更具现代感的氛围。


悬浮设计常用于柜体定制,柜体的材质根据需要可以选择板材、实木、岩板、石材、不锈钢等。


悬浮式的设计不仅仅局限于柜体的打造,一些特殊的造型也可以依靠悬浮结构呈现,比如餐桌、吧台、壁炉上方的悬空造型等。
02.
什么可以做成悬浮式
a.电视柜
相较于落地的电视柜,悬浮式电视柜下方悬空,与地面留有一定距离,视觉上更加轻盈,空间层次也更加丰富。


b.玄关柜
下方镂空的玄关柜可以让玄关区域的使用变得更加方便,下方镂空的位置可以放置常穿的鞋子,安装感应式灯带还可以让回家更有仪式感,换鞋的动作变得更加顺畅。




c.壁炉柜
壁炉在当下的设计中也非常常见,壁炉在定制过程中由于本身的功能使用需求,上方柜体都要做成悬浮式,不管是一面靠墙还是全部悬空,效果都非常美观。


d.吧台/餐桌
悬浮式餐桌吧台也就是无桌腿的餐桌或吧台,视觉上有一种漂浮感,在现代风格的家居设计中带有一种非常科技时尚的气息。


d.吧台/餐桌
悬浮式餐桌吧台也就是无桌腿的餐桌或吧台,视觉上有一种漂浮感,在现代风格的家居设计中带有一种非常科技时尚的气息。



f.书桌/梳妆台
悬空的桌板或者薄柜可以当做书桌或梳妆台使用,没有桌腿的设计减轻了对地面的压迫,视觉上更加轻盈灵活,也更具高级感。



g.浴室柜
悬浮式浴室柜也就是挂墙式浴室柜,这类柜体在我们日常的设计中非常常见,下方悬空的设计避免了柜体与地面的接触,可以有效的减少湿气入侵,这类型柜体一般伴随着墙排水使用,方便打理,效果美观。





h.楼梯踏步
悬浮式楼梯也就是我们常说的挑空式踏步楼梯,凭借高颜值和通透感受到大家的喜爱,这类型的楼梯的装饰感很强,轻盈优雅的悬浮式设计,没有多余的线条,楼梯踏步直接从墙面延伸出来,除了自身的功能性之外更像是一个艺术装饰品。





03.
悬浮设计有什么优势
a.美观性、通透感
与传统的设计相比,悬浮的设计可以给人轻盈通透的视觉感受,普通的家具也因此而具有了高级感。悬浮的造型使整个结构看上去不拥堵,空间仿佛具有了呼吸感,从而有了放大空间的效果。

b.功能性、实用性
悬浮式柜体下方留空可以有更方便的使用功能,比如收纳柜下方放置扫地机器人;玄关柜下方收纳常穿的鞋子;浴室柜下方留空避免水汽入侵等,功能性与实用性兼备。

c.无死角,易清洁
悬浮柜距离地面有一定的高度,在使用和清洁的过程中不用担心死角,扫地机器人和拖把可以轻易打扫到柜体下方。

04.
如何实现悬浮设计
a.固定方式
①膨胀螺丝
膨胀螺丝是柜体贴墙安装的一个最简单的方式,适用于小体积柜体,承重需求不大的情况。

▲安装示意图
②吊码
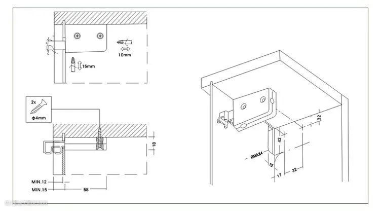
吊码是目前安装吊柜使用较多的一个方式,大部分的橱柜吊柜都是使用吊码安装,吊码具有一定的承重力,安装也比较方便,分为明装吊码和暗装吊码。
明装吊码
明装吊码的主体安装在柜体内,挂片安装在承重墙壁上,柜体后背开孔,将两者固定,即可安装完成。额定承重可达80~200kg。


▲安装示意图
暗装吊码
暗装吊码的主体安装在柜体外部后方,挂片安装在承重墙壁上,现将柜体与吊码主体固定,再将吊码与挂片固定,即可安装完成。额定承重可达150~200kg。


▲安装示意图
③角钢支架
对于有承重需求的柜体可以使用角钢支架固定,这种三角结构的支撑可以大幅提升柜子的承重能力。以下两种安装方式都可以使用,相对比较第一种的安装方式更美观些,根据角钢厚度和尺寸不同,它的额定承重也不同,最高可达100kg左右。


▲安装示意图
④钢架龙骨
在有承重需求,后方无墙体支撑时,可以使用钢架龙骨的方式来打造柜体,一般可以将钢架龙骨就近固定在墙面、地面、顶面上,营造出的悬浮感效果更佳。

▲定制壁炉柜
▼定制壁炉柜剖面示意


▲侧面支撑悬浮式餐桌
▼悬浮式餐桌侧面固定结构示意


▲地面支撑悬浮式餐桌
▼餐桌地面固定结构示意图

b.固定位置
①背部固定
在柜体后方是承重墙时首选背部固定的形式,背部固定配合较多的安装形式就是膨胀螺丝、吊码和角钢安装。

②顶部固定
在柜体四周无墙体时选择顶部固定,顶部固定适用于通顶的柜体定制,多用膨胀螺丝,钢结构等安装方式配合。


③侧面固定
侧面固定的形式视觉效果有种柜体从墙面延伸出来的感觉,非常美观,适用于柜体侧面为承重墙的安装情况,延伸出的柜体由于承重和结构的原因,所以会有一定的长度限制。


关于悬浮式设计的应用和实现就讲到这里啦~
内容转自于网络,如有侵权,联系删除!
-end-

1910关雎DESIGN ●专注缔造优雅闲适的生活方式
-----------------------------------------------
『喜欢的朋友记得点赞、收藏、+关注』
服务内容:
『全案设计●硬装施工●主材/软装代购』
地址:
中国(四川)自由贸易试验区成都市天府新区万安街道麓山大道二段1201号19-901