85㎡木质调一见倾心,日式家园的小众浪漫
禧鑫装饰丨旧房翻新
2021-08-10
【导语】日系风格清新又内敛的高级感,高冷中带有一丝暖木,暖木中带着更多温馨。当原木在家中肆意的蔓延和遍布,整个生活才重拾温润和静柔。这将是一套与众不同的充满小众浪漫情调的家装案例。

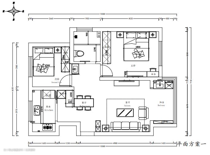
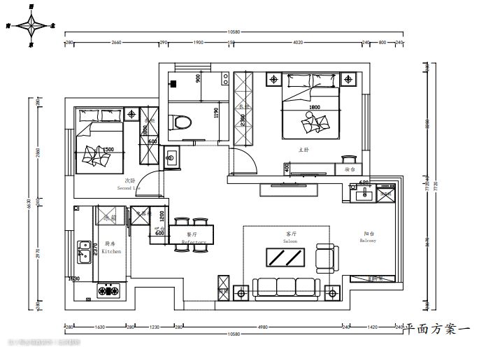
【结构】客厅、餐厅和阳台在统一动线上,公共区域较为明显和集中。次卧和主卧分别在卫生间两侧,这样布局很方便。

【客厅】大白墙搭配原木家具,再用简约装饰画装饰一下,营造出舒适温馨的居家环境。白色的沙发与原木的色调形成天然的契合,电视直接挂在白墙上,与四周的电视柜形成了交替错落的层次感。

【客厅】入户处与客厅之间用浅色木质格栅做分割,木质格栅不仅能当做功能结构,还能装饰整个空间,若隐若现,不阻挡光照,却能够起到隔断的租用。

【客厅】电视背景墙处,采用的都是白色与浅色实木柜打造电视柜。上方的吊柜开放格可以收纳书籍作为一部分展示柜的形式存在,另一部分的封闭柜可以收纳其他物品、整体家装定制能够更好的营造出氛围感。

【餐厅】因为家里的整体基调都是白色的大白墙,干干净净简简单单。餐厅和客厅是相互共通的,不需要过多装饰,干净温暖即可。餐桌椅选择白橡木实木,颜色更加的奶油效果。

【餐厅】厨房与餐厅之间留有一个承重墙被改造成岛台式的餐边柜,下方可以收纳很多物品、大理石与木质的结合让整体更加坚实又美观。上方的吊柜根据墙面空间大小做量身定制。,无论是收纳还是使用餐具,小小餐边柜都完美展现。

【厨房】厨房装修的颜色近看简单单一,纯白色的效果非常的大气高级。所有橱柜都采用无把手的形式,整体表面光滑又整洁。橱柜的柜门与操作台之间要留有缝隙,方便开关柜子。


【卧室】主卧为了营造出更加温馨的氛围,于是取消主灯模式,用嵌灯对于整屋进行照明。多个嵌灯的优势在于不会让光线过于集中在一点,让每个角落都能均匀的受到光照。软装之前的卧室只是大白墙,整体感偏冷,所以在这个基础上,选择了奶油白去代替之前的大白墙,墙壁上增加一些温馨的挂画元素,让卧室更加的舒适有格调。

【次卧】次卧更偏向于素雅低调,棕咖色的床头软包,舒适度与颜值同等在线。床头柜的开放格处可以收纳书籍,抽屉内可以放更多物品。

【卫生间】灰色大块格子瓷砖搭配白色黑色美缝小格子,拼凑出一个干净又通透的卫生间环境。灰色瓷砖从颜色上也更有立体感,淋浴区域的地面做防滑设计。充分考虑到淋浴中与道德问题。