89㎡理想家,把“杂志风”的家搬进了现实
果立达装饰
2021-08-12
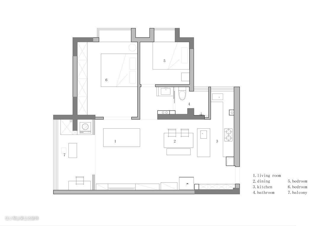
户型图

平面布置图

平面布置图两房两厅的原中规中矩的户型格局,在墙体结构上进行了乾坤大挪移。 摒弃常规的动静一定是要分区的格局形式,将卧室和客厅尽大限度的串联起来。 餐厨间隔墙体拆除,开放式厨房。 卫生间洗手台干湿分离。 在表达空间审美的同时,实用性也是不可忽略的。
玄关

由于是颜控,特别喜欢SMEG,喜欢它的设计以及外观,家里的小家电用品就用了这个品牌,还有点点中古风的效果,配上樱桃木胡桃木的质感。



入门是玄关顶天立地的大鞋柜,基本完全够收纳日常的鞋物/伞具等物件。奶油色的烤漆极窄线条柜门,无拉手任何的多余造型,浓浓的利落感。 入户右侧走到开放式厨房区,有大的橱柜空间,更有一个大的中岛台,有最爱的朋友聚会时刻,她们总能无时无刻今进行交流互动。 中岛台也是隐藏了大的利用,内嵌了一个补充冰箱储物量不足的小单门冰柜。
厨房

精致的中岛台天花挂架,各个物件触手可及。 厨房墙壁也都不放过,挂件满满。

开放式厨房,无吊柜视觉更开阔。

橱柜小物件

厨房
客厅

书架和满墙的书,是杂志中的家明显的特征,它们最具有特色的一角,满墙的书架,让这个客厅极具辨识度。 沙发是这个别致客厅的核心,也是动线上的核心。


都是以它为轴心,地面随意铺设的凉席,凉席下垫了薄床垫,取缔于常规的地毯中心《在地面随意葛优瘫的时候还是觉得地毯的接触面会偏硬》这里成为朋友到访聚会时最爱的中心区域。 空间无中间主灯的光源,两侧长度各异的轨道灯让空间层次更为分明,在这里。即使客厅中间无刺眼的灯光,但也依旧可以明亮,”家庭核心区域“起到了关键作用。


阳台”纳入“客厅,但也是可以相对独立。5扇胡桃木的雪见门,开启了这里的另一个空间,雪见门的可开可合。在任意百分比范围区间都可以作为开放封闭的任意组合,雪见门开启时可以藏在阳台柜子的侧面,也是最大程度的可以将户外风光映入客厅。将原本买来分配给客厅区域的茶几,移到地台区域,这里成为工作的第二空间,一张茶几,一盏吊灯,打电脑/看书/夕阳余晖在旁晚时分洒落,这里的光有着最美的样子,日常来家人铺个床垫,这里也可以做备用的卧室空间。一个又一个安宁的时候由此开始。美貌实用是可兼得,”面包“会有,”自行车“也更是需要。
餐厅

餐厅的大长桌

书房

原阳台位置,加了地毯,作为书房功能使用

雪见门隔断客厅和书房
卧室


另一个双扇的双开门开启了另一空间,有着复古的线条,更是有着做旧球形门锁,这里便是主卧室,卧室布局相对简洁。胡桃木的床架。小碎花的床品,奶油色的一门到顶衣柜,地面异域图案的地毯,复古姜黄色丝绒窗帘。足以让这个空间让身体舒坦下来。窗外是可以看到最美广州夜景的角度,窗户同是采用了老钢窗造型,早晨阳光会透过窗帘照进屋子,第一旅阳光便从格子窗映射进来,明亮而温柔。心情便是舒畅的开始。

小碎花的床品,奶油色的一门到顶衣柜,地面异域图案的地毯,复古姜黄色丝绒窗帘。足以让这个空间让身体舒坦下来。

儿童房


卫生间


定制白色大理石洗手台

蜜蜂棕红面 于原有的户型结构,不是能够满足日常的使用,因此卫生间做了二分离