水电改造,到底需要多少点位?开关插座设置在哪里最好?
优米生活轻装奢享
2021-08-25
水电改造项目是家庭装修中非常重要的一步,基本上水电改造完就确定了整个家居的生活基调,也是装修的“脉络”。但是,你知道你家到底需要多少点位,开关插座到底要怎么设置吗?

当然,并不是每家每户都需要改造水电,是否改造主要看这两点:
1.原有水电线路比较老旧,无法满足现在多样的家用电器安全运行,比如很多老房子电线还是铝芯线或者电线过细,承受不了大功率电器同时使用,而水管是镀锌管容易产生杂质,这种情况肯定是要进行水电改造的。
2.原有水电路满足不了自己的生活需求,比如开关插座不够、不实用,或者需要重新规划空间布局、配置家电,那么原有线路肯定是需要重新改造的。
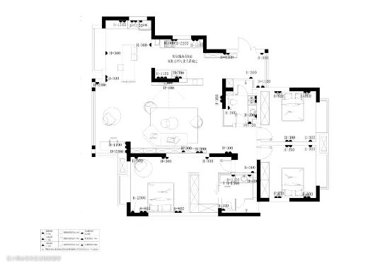
下面我们以Z先生家为例——120㎡清水房,三室两厅两卫的户型,水电全改——来说说水电改造点位那些事。

水电改造阶段所需时间:
水电交底:1天
水电改造:7天
水电验收:1天
■水电改造如何计算费用?
目前有两种计价方式:按点位和按米数。
大多数情况下,水电改造都是“按实收方”,是指按照实际改造的米数计算费用;
有些套餐公司会按点位收费,套餐内包含了一定数量的点位,在实际改造中超出规定数量点位的费用需要业主补齐。
这里主要说说按米数算的费用,施工方通常都是包工包料的,电路改造一米的价格包含了电线、线管、线盒、绝缘胶带、波纹管等材料费、人工费和辅料费用。电路改造费用中一般是不包含开关面板、配电箱、电表等特殊项目,这些项目是需要另外计费的。
水路改造一米的价格包含进水管或排水管的材料费、人工费和辅料费用。需要注意的是,水路改造费用中一般是不含水嘴、角阀、软管、各类阀门、地漏及各类用水器具下水的。
小贴士:每家公司的规定可能会有所不同,一定要了解清楚报价包含的具体内容,才能明白哪些东西需要自己买,哪些是公司提供。
■水电点位设置
开关插座的点位设置主要根据家庭成员的生活习惯和设计喜好来定,但是每个空间还是有不少共同点可以参考。

插座点位设置:

这个三室两厅两卫的房子,一共设置了74个插座,考虑到各类电器的使用和主人生活习惯来布置。
小贴士:
1.厨房插座点位由橱柜商家专业人员确定,建议厨房多设置几个插座方便使用,注意用电安全,开关插座远离灶具和水槽;
2.走廊上也可以设置几个备用插座,便于使用吸尘器等家用电器;
3.如果经常在家上网的话,最好在卧室也预留网络接口。尤其像无线网络有距离限制,空间越大信号越容易衰减,隔墙多也会影响网络信号强弱,喜欢躺在床上耍手机的朋友一定要注意这点;
4.有些特殊位置的插座一定要根据自己的需求提前跟施工方确认好,比如投影幕布、电动窗帘、智能马桶等等这类个性化的需求;
5.卫生间内的插座建议安装防水盖,保证使用安全;
6.不建议在家里使用地插,不实用、不方便、不安全,凸出地面的部分很容易绊倒人。

开关点位设置:

照明开关一共设置了29个,开关设置与整体设计和户型大小相关,筒灯射灯的数量、主灯灯头的数量、装饰灯带都会影响开关点位的设置,前期规划一定要确认好设计方案。
提醒一点:卧室照明最好设置双控开关,床头设置一个,这样就不用再下床关灯了,合理利用双控开关生活更方便;床头的开关插座高度一定要结合床头柜的高度来定,千万不能被床头柜挡住影响使用。
■开关插座的高度设置:
1.照明开关无特殊要求的话,均为中心离地1350mm;
2.常用插座离地高度:
普通插座中心离地:350mm
空调插座中心离地:1800mm
冰箱插座中心离地:1300mm
洗衣机插座中心离地:800mm
电视电脑信号插座中心离地:350mm
床头插座开关中心离地:800mm
热水器插座中心离地:1100mm
水路改造相对来说要简单很多,一般只有厨卫、生活阳台这些需要用水的空间才会改造水路,施工量也不会特别多,但还是需要注意下面这些问题:
1.排水管一定要有存水弯,防臭防异味,如果你发现家里卫生间老是有异味,很有可能是缺少存水弯造成的返味;
2.如果房子面积较大且需要热水的地方比较多,可以利用小厨宝提供热水;
3.水路改造时注意有冷热水管的区分,冷水可以用热水管,但是热水不能用冷水管;

家用电器可以大致分为固定电器和非固定电器两种,意思就是有些电器使用频率高且基本不会移动,这类固定电器插上插头就很少拔下来,插座比较固定,例如冰箱、洗衣机、油烟机、热水器、电视机等等;另一类非固定电器则使用灵活,体型较小,使用时才会插上插头,例如电饭煲、榨汁机、打蛋器、电磁炉等等。
在装修前,可以先把自己家常用的家电都列出来,跟设计师沟通一下你及家人的生活习惯,再看哪些地方需要用水,最后在设计图纸上基本就能确定水电改造的点位设置。