120㎡亮光暖灰色的地砖搭配上暖色的墙面 安华西里
博洛尼整体家装
2021-08-29
案例说明
客户在此房子里面住了10年了,觉得空间布置还算合理,主要是厨房和卫生间不满意,因此要求我们在他的空间上进行调整,使得空间更加合理,使用更加方便,利用率更高。
客厅

更多客厅灵感
亮光暖灰色的地砖搭配上暖色的墙面,使得空间更为温暖,在选地板的时候,客户特别墙面的地板,所以我们给他做了一个沙发的背景,窗帘和绿植,为此空间点缀色彩

更多客厅灵感
本案的设计以灰色加木色为主题。纯净柔和、散发温暖的气息,充斥着你的视野,挑逗 着你的神经。精心装点的空间,给人非同寻常的美感。
餐厅

更多餐厅灵感
客户特别喜好喝酒,在做方案之前特别强调一点要做个好看的酒柜,茶色的玻璃,铜拉丝的金属边框,再加上深蓝色为调色的穿插格,透出时尚轻奢的韵味。
厨房

更多厨房灵感
灰色的地面,白色的橱柜,为了不显单调,柜面上方的墙砖,采用了黑白色的拼花,整个空间的装饰简约而不落俗套,带来清新的视觉冲击。
卫生间

更多卫生间灵感
墙地面都是采用统一暖白色的砖,黑色的水龙头更为点缀,给人带来意想不到的惊喜,让人心醉的精致,带来视觉上的畅爽感觉。
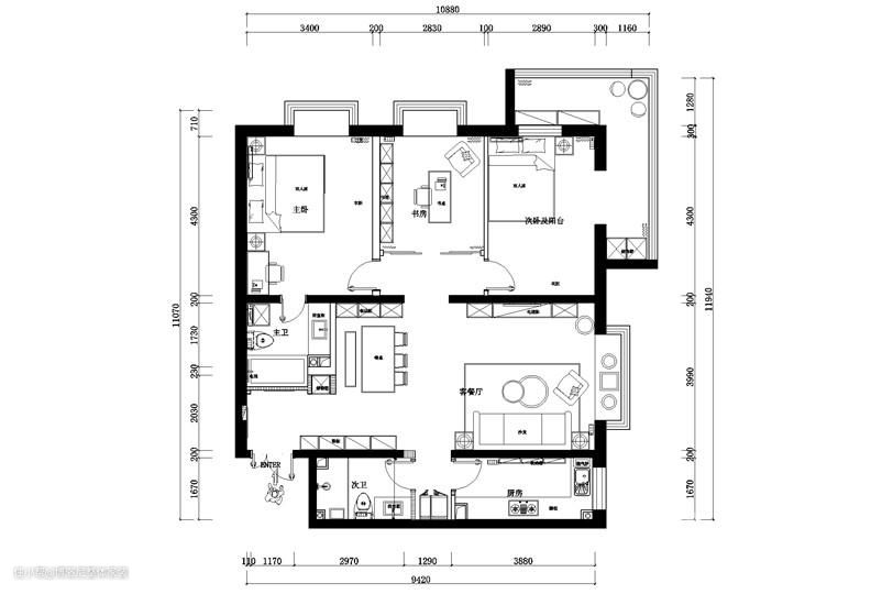
户型图

整个布局大局木有改变,主要是针对卫生间,厨房进行改动,主卫之前空间利用率太低,所以把卫生间北的墙往后面推了20公分,这样客户所以的需求都能满足,也使得空间更加合理。