这家侘寂风,一眼就喜欢上了
云艺设计师
2021-10-08
常住四口人,夫妻+小男孩+奶奶,正好三个房间分配各自使用,设计要求希望简单化,现代简约风为主,颜色不要多,家具要简单实用,需要一个办公的小地方,客厅不要电视,接受投影,老人房要一个电视,儿童房摆放书桌、书柜、衣柜、床即可,卫生间洗衣机的位置,厨房有镶嵌式烤箱、洗碗机,其它的没有过多要求,设计师自由发挥即可。

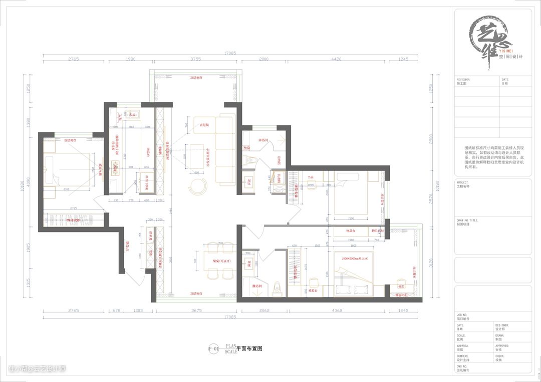
▲▲原始的内部空间个房间比例还比较协调,局部做微调即可,客餐厅的空间挺大,考虑储物空间的利用,进门的鞋冒柜很重要,卧室卫生间的门要做风水忌讳的调整,次卫考虑干湿分离,整体的颜色搭配考虑采用7:2:1的配比。

▲▲改造后的平面布局图以客餐厅为中心分为左右两部分,左边是老人房靠近厨房,右边是夫妻房加儿童房,中间为全屋的集中地,主卧卫生间门的方向调整90度,避开对床的形式,然后增加以整排的衣柜,加大储物,次卫做成干湿分离,洗衣机放在次卫方便实用,色彩以灰色、乳黄为主色系。

▲▲白色为主,灰色为辅,木色点缀,构成了整个空间的色彩关系,配搭无主灯的设计,整体感清清爽爽干净明了,改重的重改浅的浅,一点多余的繁琐也没有,让人整个身心放空,让忙碌的身体完全迷失,沉寂了一整天的气息,又渐渐苏醒过来,泡一杯咖啡,在明净的空间里享受惬意。

▲▲墙面柜里的木色起到打破肃静的空间氛围,投影在需要的时候放下来,不需要的时候隐藏看不见,沙发也是很舒适的,没有太多的繁琐构造。

▲▲沙发背景墙采用黑白配的拼接手法,也是为了平面的视觉化,让空间更有立体感,背后的装饰画和墙上的装饰物都是相互协调映衬的。

▲▲大圆套小圆的造型装饰挂件表面的条纹与背景墙想呼应,立体视觉超强。

▲▲进门的鞋帽柜做成上下两层的结构,方便放随手的物件,靠近门口的一组为通顶构造,方便挂长衣物等物品,换鞋区的顶上加了一组灯光,既是为了方便也是为了起到氛围光作用,对面墙还设计了一面穿衣镜。

▲▲小过道连接这整个家的幸福,步入家的温馨从这条小过道踏入。

▲▲餐桌的造型和颜色也是为了和整个空间相融合而精心搭配的,餐边柜的形式又和客厅的墙面柜相呼应,墙上的木质挂画拉平了左右空间的户型关系。

▲▲美观有实用的餐边柜。

▲▲这一套餐桌椅是专门找的南方厂家按照设计图1:1定制而成,墙上的挂画淘宝上选的,餐厅灯也是。

▲▲木色的装饰画让灰色的墙面瞬间了温度。

▲▲厨房的颜色以黑白为主色调,灰色为过度色,空间构造简单整洁,易打扫。

▲▲黑白灰的厨房好有腔调。

▲▲主卧的背景特意设计成外延伸形式的一字护墙板,这样就不用在墙上留床头灯的位置,保证了墙面的完整性,而且这种一字板内部发散出来的光是很柔和的,上面的平台也是可以放很多随手的物件,美观又适用,背景墙的乳黄色让整个素雅的房间有温度感。

▲▲大衣柜与梳妆进行组合,让空间不呆板。

▲▲别小看这么一副装饰画,足够起到画龙点睛。

▲▲装饰画可谓是所有需要提亮部分的首选。

▲▲浅蓝色+浅绿色构成了儿童房的空间色,多样化的组合书桌、柜让空间生动活泼。

▲▲竖条背景让空间立体更强。

▲▲空间的灵动性,往往大部分都是通过一些小点缀堆积而成,不一定非得大面积大手笔处理。

▲▲卫生间是全屋最有情调的地方,很多时候人除了客厅、卧室,在卫生间是待得最多的地方,梳妆、摆拍都在这里。

▲▲绿植和绿墙拉开了整个空间感,也建立了相互联系。

▲▲沙发的质感很舒服,半弧形的转角符合转角空间的过渡和衔接。

▲▲墙边的五斗柜通常被列为最实用的居家家具之一。