现代轻奢|简约雅致又充满生活情趣的三居室
深圳东易日盛福田店
2021-09-13
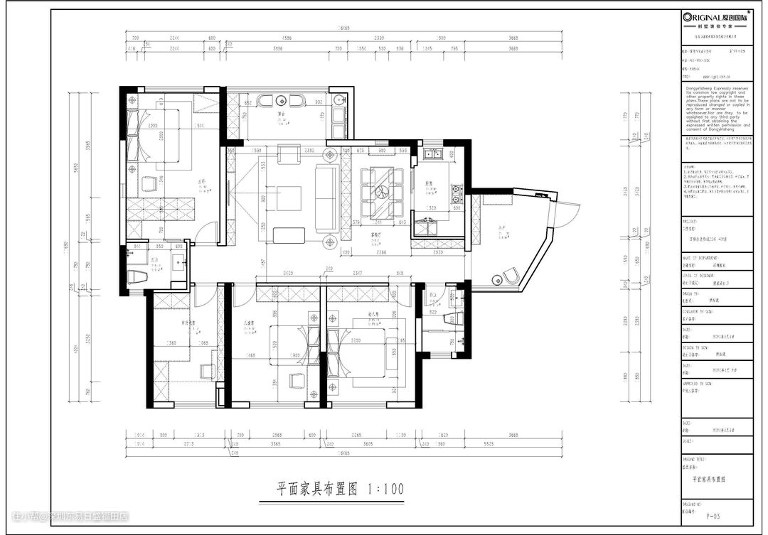
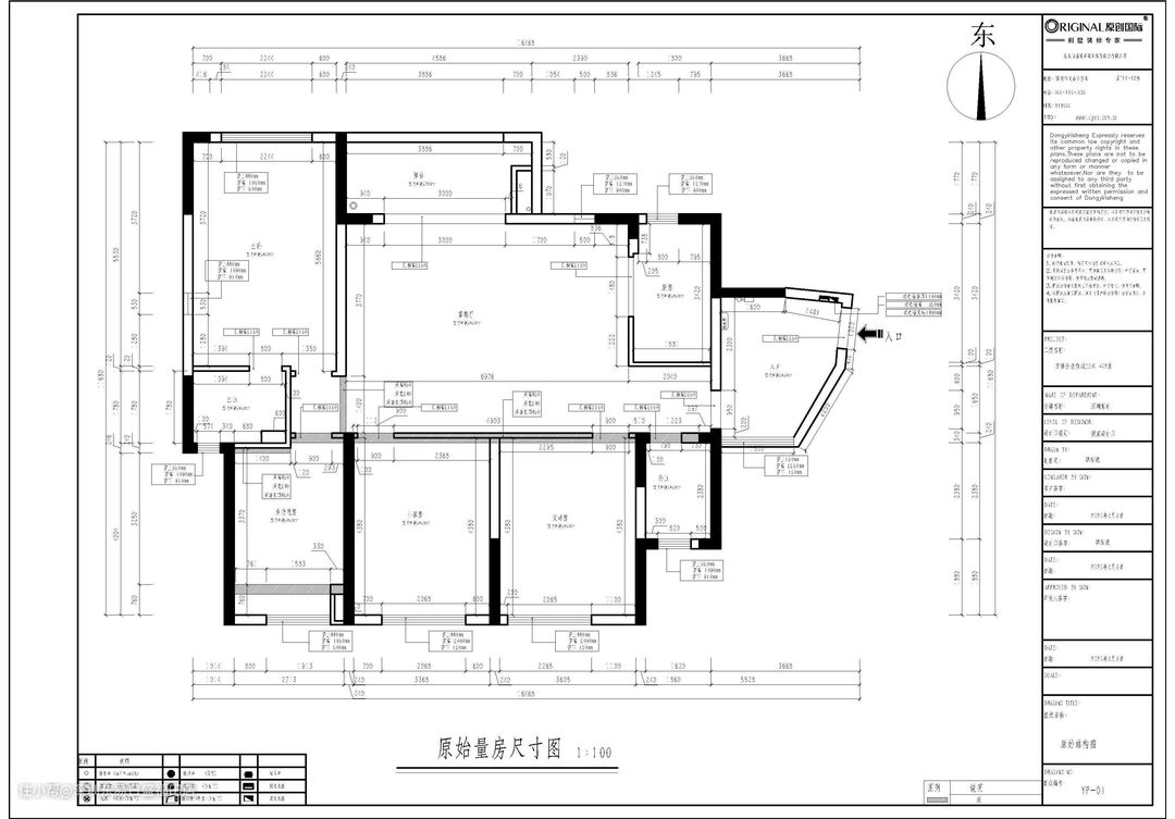
△建筑面积:150m²
△设计风格:现代轻奢
△空间格局:三室2厅2厨2卫
△设计理念:方案采用经典黑白灰的主调,搭配经典现代轻奢风格软装,设计手法简练,硬装用材简洁明快质感到位。
本套案例的业主是一对在深圳打拼刚进入中年夫妻,对于家的美好有自己独到的理解,业主希望与设计师为了这个家进行一点点改造,进而为一家四口来营造一处春夏秋冬四季都温暖且充满爱的家居空间。

大理石岩板的电视背景墙具有收纳功能强大,两边设有储物柜,业主可以收爱好的藏品进行展示。开放式的厨房,客餐厅一体化的布局,显得空间格外通透,用沙发来进行隔断,吧台的设计,也能够很好的将客餐厅相互连接。

玄关入户出到走道的设计中,定制了一整面的木质柜体,很好的满足和业主一家人额外的收纳需求,线条的整齐性,木质的色调和整体轻奢的格调也高度一致。
沙发后的吧台,设计师采用了大理石与镶金色的金属材质。客厅中心了搭配电镀金色的台灯,在搭配上如何色彩丰富但饱和度不那么高的土耳其风地毯后,让每一处细节都充满了惊喜。


主卧侧面整墙衣柜设计,储物功能非常强大用透明玻璃与黑色的巧妙搭配,让衣柜与梳妆台充满了连续性,梳妆台延伸至衣柜后,方便业主在换上服饰的同时也方便了化妆。

