97㎡现代简约风平层,这就是最理想的温馨小家
华浔品味装饰集团
2021-09-25
在看过多些豪宅设计之后,今天给大家带来一套非常接地气,更适合工薪阶层和中等收入人群的设计方案。房屋的业主是一位都市白领,在这场奋斗多年之后,终于攒够了钱,买到了一套属于自己的住房。下面要分享给大家的就是这套房屋的设计方案。
业主对这套房屋的装修非常上心,对最后的效果寄予了很高的期望,希望自己家装修好之后,在满足自己日常生活需求的同时,还能有现代时尚的视觉感受,成为自己和家人温馨舒适、简洁干净的小家。
基本信息
项目地址:福建泉州
项目面积:97㎡
建筑形式:平层
装修风格:现代简约
经过设计师和业主多次沟通,根据业主的喜好和经济条件,最终将装修风格定为现代简约风格。在沟通中还明确了业主对这套房屋更具体的居住要求,并把他们整理一下,作为之后设计工作的目标。
- 整个房屋在一进门就要给人是一个开阔的感受,因此门口的厨房要做成开放式的。
- 要一个吧台作为餐桌
- 偶尔会烤些面包蛋糕之类的西点,希望能在设计橱柜时预留出安装嵌入式烤箱和蒸箱的空间

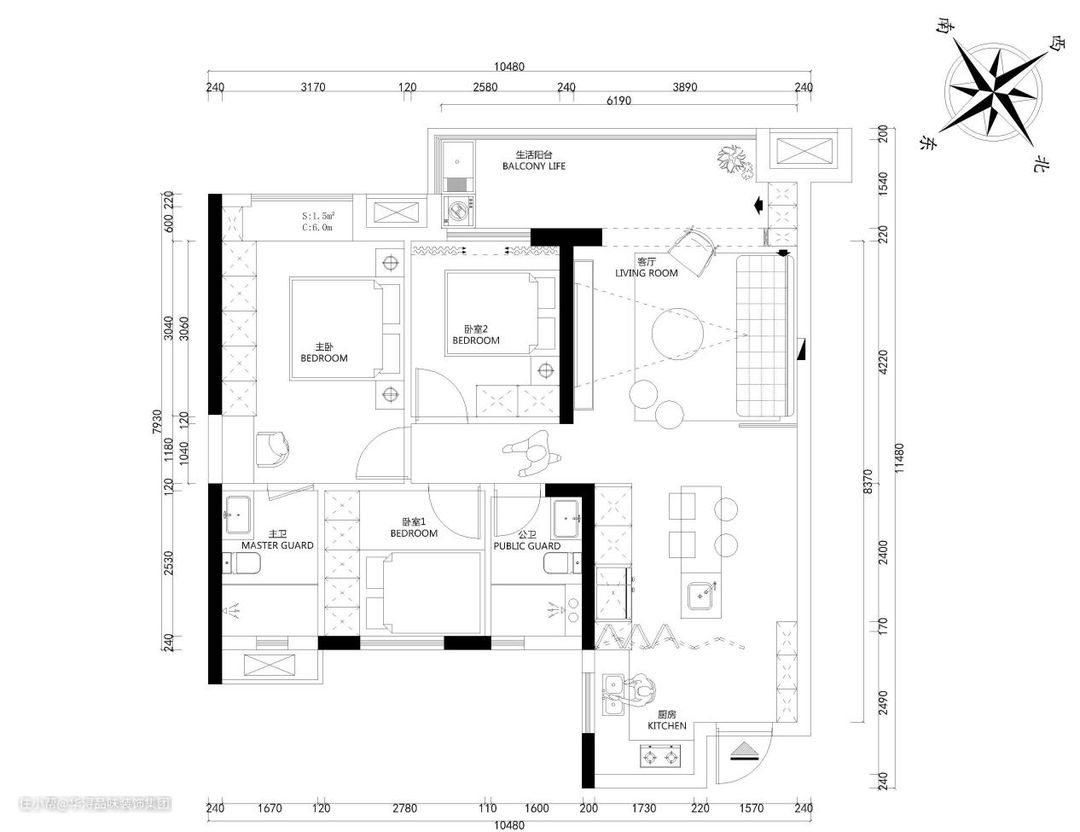
01户型图
在接到设计任务的第一时间,我们就同客户一起到新房进行了实地测量,整套房屋的原始空间布局也比较合理,不用太大的改动,基本能够满足业主的需求。因此设计师在测量完成之后,直接对房屋的平面布置进行了如下设计:
- 厨房和餐厅设置在靠近入户门位置,在整体上连为一体,未做实体隔断。
- 借着阳台位置本就有的上下水,将洗衣机布置在阳台角落,做成一个洗衣晾晒区。
- 主卧门设置在正对走廊的位置,将靠近主卧室的一个卫生间,囊括在主卧室之中作为主卧卫生间。
02厨房和餐厅

这两个空间位于入户门进门位置,因为厨房做的是开放式厨房,和餐厅之间没有墙体等实体隔断,因此在视觉上更像是同一个空间,这样的设计让整个房屋的空间看起来更加完整。
厨房空间原本窗户较小,使用白色花纹大理石作为厨房的墙面铺装,简洁干净,既保证了厨房空间的明亮,同时大理石是现代风格设计中最常用的经典元素,时尚且永不过时。在功能设计上,使用集成炉灶,这种从下方排烟的灶具,更有利于减少厨房的油烟,这对开放式的厨房异常的重要。
餐厅这边,餐边柜做成通顶的高柜,使用和厨房橱柜同样的香槟色烤漆门板,既保证了风格的统一,又非常自然的从厨房空间过渡过来。在高柜的中间位置,预留出了安装嵌入式烤箱和蒸箱的空间。这个安装位置,恰好是人手最方便操作的高度,更有利于业主操作。
厨房和餐厅之间做了个岛台,从岛台中间延伸出一条石英石材质吧台,在划分厨房和餐厅空间的同时,更可以作为定制的餐桌使用,一举两得。
03客厅

从餐厅位置向里穿过走廊,可直接到达客厅位置,厨房,餐厅,客厅之间没有间隔,在视觉上给人营造一种房屋空间很大的感受。整个客厅的设计,色调上更偏白色,给人一种明亮开阔的视觉体验。

电视背景墙使用白色花纹大理石。现代感十足,同时大理石花纹自然,在客厅灯光的渲染下,气质更为华丽,增强了整个客厅的时尚感。不规则圆形的茶几充满趣味,同时桌面同样使用了白色大理石材质,将这种时尚感沿着地面向横向延伸到整个客厅。

而沙发背景墙一侧,使用了灰色硬包,铅灰色调端庄高贵,给空间增加了优雅的气质;同时铅灰色作为一种深色调,增加了空间整体的重量感,平衡了白色,香槟金色等浅色调带来的轻浮感。
04卧室

卧室在地面、床头、入户门等位置大量使用原木色木纹这一设计元素,使整个卧室空间更接近自然,能给人更放松的感受。
床头背景墙上半部分圆与圆环,在虚实结合的同时加入了金属质感,充满现代艺术感的设计手法,给卧室营造了时尚和艺术的氛围。
05卫生间

卫生间空间最为封闭,使用浅灰色地面和白色墙体铺装,反射灯光的效果更好,更易保持空间的明亮。细节上,将地漏设置在悬空水盆柜下面,并在四周做了向下的斜坡,既保证了视觉上地面的完整,同时又有利于卫生间地面的水排出。
现代简约风格将现代风格和简约风格融为一体,既简单又时尚,特别能营造出一种温馨舒适的感受。而且这种风格更好控制造价,如果您装修经费有限,我想有温馨舒适的感受,那这种风格一定是您的不二之选。