天津装修案例-津铁泽苑 93平
天津众匠装饰旗舰店
2021-09-28
项目介绍
项目坐标:天津河西区津铁泽苑
项目类型:私人住宅平层
项目面积:93㎡
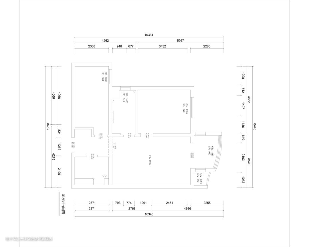
原始户型介绍:
这是一套全阳明厨暗卫的高层户型,整体功能空间完善,厨卫功能合理,在空间的使用上储物空间稍显不足,厨房内空间大小略微紧凑,次卧整体以长方结构为主,宽度不富裕所以在后期的空间规划上还是要以长度与高度为利用的空间,客厅与餐厅位置相连,整体开间足够正常的使用,电视墙与主卧门口相连,背景墙的完整性被破坏一部分但不影响整体的使用与美观度。后期根据业主的需要做一些细节的微调,但在整体的空间布局上没有过多的感动,相对来说是一套简单实用的标准户型。

平面布局介绍:
整体布局还是建立在原有的基础上,主要的细节改动在卫生间与厨房餐厅的利用上,卫生间做了整体的淋浴房,将原结构位置的洗衣机放在了餐厅餐边柜的地方,卫生间保留手盆淋浴与马桶的功能,餐厅位置的餐边柜将冰箱洗衣机与整体烤箱嵌合在一起,提高整体的利用率且节省出厨房与卫生间的一部分位置,增加厨房的利用空间。次卧为孩子房间,除去床外,将书桌与衣柜作为整体家具,留出相对自由的活动空间,使整体空间显出整齐划一,通过大部分表面的材质提空间的整体明度。主卧空间的布置相对于比较常规。厨房以l型橱柜利用为主,极大的利用空间的面积。阳台根据业主的需求添置家具。

玄关客餐厅空间:
玄关客餐厅的整体颜色搭配以浅灰色的地面材质与中性一些的墙面涂料色彩搭配为主,在家具的选择上偏向于现代请奢一些,用一部分重色来分割出整体空间的层次感,沙发背景墙以一种整体跳色为主提高空间的视觉效果。



厨房:
厨房整体以白灰为主色调,整体满足洗切炒的基本使用,最大限度的提高厨房内的使用率。后期根据个人的需要添置常用的厨房用品与电气。冰箱外移之后厨房使用率得到一部分的解放。

卫生间:
卫生间的配色以整体浅灰为表现,在空间的视觉上化为一体,墙面与地面的整体配色上与厨房的配色更为相近一些。满足基础需要的同时尽可能的提高活动空间而不显的局促。在马桶的一侧做一条效果线以提高空间的装饰性。

主卧:
主卧空间整体的颜色以温馨的暖色为主,床头的背景墙颜色做了一个跳色的改变,地面以浅灰色地砖为主,墙面的颜色与地面互为补色,使整体的空间颜色更加协调统一,顶面造型以石膏板线为装饰,衣柜的顶面做直线吊顶协调定制衣柜的同时使吊顶线条更为完整。整体空间营造出一种简单温馨且时尚的感觉。

次卧:
次卧为孩子房,整体以中性的颜色为主,以搭配浅色家具,整体营造出一种青春洋溢的氛围,在空间内竟可能通过色彩的搭配提高空间的视觉感受。
