深圳香山美墅三期云邸,深圳装修案例,户型图186平,现代风格
德派装饰&君尚软装
2021-10-09

项目地点:香山美墅三期·云邸
项目地点:深圳市南山区
项目面积:186㎡
交楼标准:毛坯房
风格定位:现代风格
服务模式:一站式整装
整装团队:德派装饰&君尚软装&摩洛卡家居
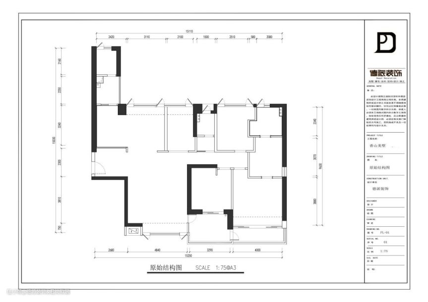
原始户型图

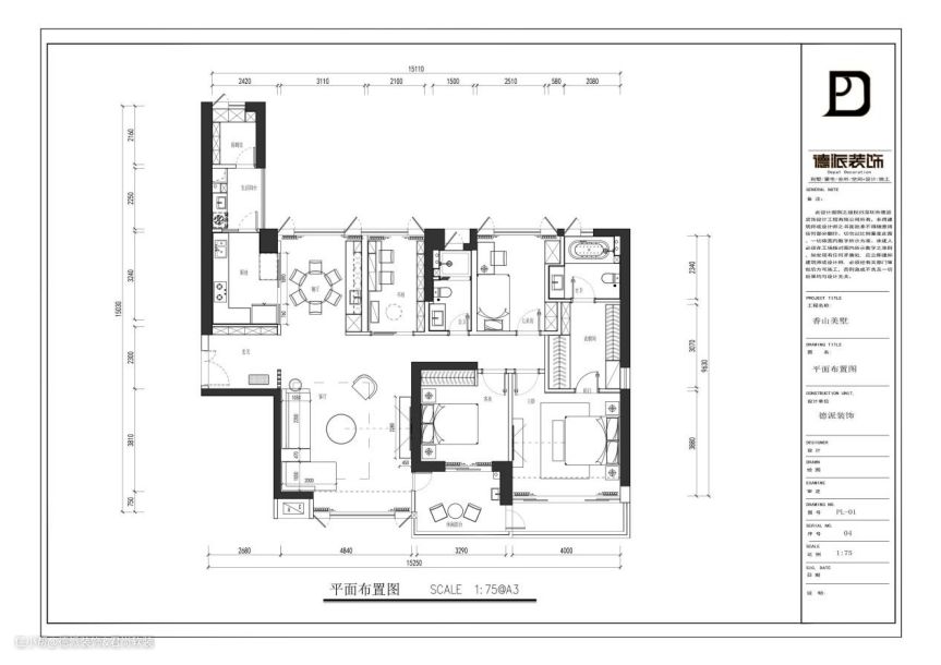
平面设计图

设计理念
整个设计中以现代风为主,结合了一些轻奢时尚元素。以浅灰色为主调,加入线条塑造立体感;不同的材质进行碰撞,呈现出不同的视觉感和层次感,从内而外营造精致氛围。空间的选材来源于自然,在色彩上最大限度地保留原有材质的色彩与肌理,同时在铺陈上采用形制简约的家具,宛如设计师笔下的主人,在追求品质生活时更能理性面对,不盲目,不空虚,彰显的是恰到好处的精致。
材质分析

色彩分析

客餐厅

客厅以现代主义的高度理性,调和出一种大气优雅的空间氛围,花艺的加入增添了自然生活的气息,生活方式如同一层层记忆在空间中渐次打开。在材料的运用上,金属元素点缀、简单的线条勾勒、沙发背景墙的光带引导、大理石材质的电视背景,不同材质的运用大大提升了空间的品质感与精致度。
餐厅选择了圆形餐桌,与家人围桌吃饭,增加氛围的同时还方便了周围的动线。灰色餐椅搭配木质桌面简约且舒适。用长虹玻璃做了厨房和餐厅、客厅和书房的隔断,透光不透影,用设计细节提升居住质感。
以纯粹的墙体关系、灯光变化形成设计中的系统,让各类软饰元素在空间中形成韵脚,让光一寸寸地落于其间,轻盈中优雅。
书房

书房能让人静心聆听着另一个世界、学习或者思考。在暖光灯的烘托下,营造出优雅时尚的艺术格调。要营造出一个舒适的空间,安静平和非常的重要,以温润木质与纯净白色系为基底的书房便显得舒适安逸、清爽利落。地面通铺温润的木质地板,定制书桌工作台+半开放式书柜,摆上舒适布艺书椅和极简的摆件装饰品,方圆之间线条的对比,在通透的环境下相互映射令空间扩容,落地窗搭配垂感度好的白纱温柔了时光,让每处细节都透露雅致的艺术美感。
卧室

整个卧室没有任何抢眼的颜色,白色、木色、咖啡色相互映衬,整体色调单纯而不单调。墙面运用木饰面元素,白色与木色交错,布置上灰白色系的皮艺床与床品,干净的白色床品搭配咖啡色搭毯,带来一个简约舒适的睡眠氛围感。衣柜是白色基础柜体加入了木色的空格柜+玻璃柜门结合,嵌入灯光设计,收纳物品一目了然,整体空间也更加简雅高级。白色床头柜摆上造型独特的球形床头灯,搭配在现代素雅的空间下,带来的是一种华丽端庄的氛围感。