听说在马桶上打王者荣耀是上钻的捷径?然而厕所没有网怎么行!
住范儿
2021-10-16

我对生活的全部恐惧都来源于网络不稳定。

记得姜思达在大美玲之夜那一场“时保联”的辩题中说:“坐飞机在天上的时候,没信号,感觉自己就是上帝的弃儿”。
此言不虚,因为每次我在马桶上想看剧的时候,网络总能诡异又精确的向我展示“加载2小时,看剧5分钟”的神技,那一刻感觉自己就是折翼的天使。

▲ 是不是有点着急? 图源:www.cnblogs.com
我在经历了无数次重启路由器,又无数对生活和工作丧失热情之后,终于盼来了一位大神——翰哥。
翰哥是住范儿的技术负责人,一个全端全平台的技术大神,在翰哥的带领下,我们本着求真求实的精神,用科学的实验方法、严谨的逻辑进行了一场伟大的实验!
根据实验结论我对自家的网络进行了优化,于是现在我在家用着快到飞起的网络刷着你们的点赞评论,我爱工作!
此文将从实测过程、数据分析、结论、优化建议几个方面入手,科学的告诉你“为什么你在马桶上打不了王者荣耀”以及“如何在马桶上优雅的打王者荣耀”。

▲ 图源:住范儿自制

两个户型,不同的困难
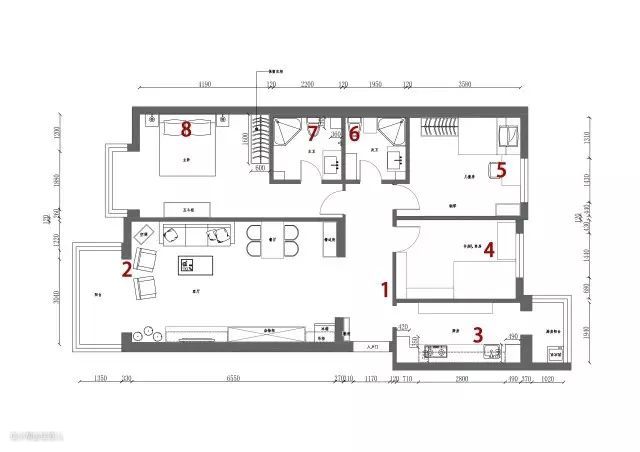
▏100m²三居室▕

在这个100平的三居中,屋内所有墙体均未拆改,我们模拟了不同的生活场景,选取了8个点位,在每一个房间内都进行了Wi-Fi点位测试。
其中1号位是弱电箱的位置,主路由器就在1号点位。
我们首先把其中一台电脑(电脑A)调试为服务器,固定放置在1号点位,另一台电脑(电脑B)作为客户端,分别去2-8号点位。
并在测试前关闭了电脑B所有有上网需求的软件,统一采用一个1.10G大小的文件包作为下载测试文件。

▲ 信号路径示意图 图源:住范儿自制

▲ 各点位下载速度数据对比图
图源:住范儿自制
可以看出两点:
1. 从下载速度来看,5G完爆2.4G,但总体趋势是几乎一致的;
2. 在8号点位(主卧),2.4G在远距离、连续穿墙、大衣柜三重阻挡下,终于弱爆了,下载速度极度不稳定,从500kb/s到3MB/s波动,期间一度停止了……用翰哥的话说叫“丢包率非常高”。
在这个100平的三居中,除了主卧无法很好的使用2.4G Wi-Fi之外,别的区域都非常顺畅,之后我们会针对8号点位进行优化并再次测试。
不过接下来先看看另外一个更为复杂的户型,它的无线网络使用有什么问题。
▏更为复杂的跃层▕

注:跃层,即上下两层都有实实在在的楼板,楼板里有钢筋,对信号的遮挡效果较强,可以说是非常大的挑战了。
和上面的布置一样,我们把电脑A放在1号位,离主路由器最近点地方,如下图

▲ 屋主家正在施工,刚做完水电改造
图源:住范儿自摄

▲ 信号路径示意图 图源:住范儿自制

▲ 各点位下载速度数据对比图
图源:住范儿自制
不难看出,和之前的测试一样,2.4G和5G的表现趋势是几乎一致的:在7号点位(一层主卧)、8号点位(一层阳台)、9号点位(餐厅)因为即穿楼板又远距离穿墙,对信号均有明显的遮挡作用。
但是!在10号点位(厨房),2.4G的稳定性却比5G要好得多,尽管下载速度依然是5G完胜,但其波动在4.2MB/s-40MB/s之间,稳定性远远不如2.4G。
翰哥说这是因为5G虽然是带宽独立的,但是衰减快,因此可以明显的看到在远距离且连续穿墙的情况下,5G的表现不如2.4G。
针对不稳定的7、8、9号点位,我们也同样做了优化,并再次测试。

优化测试及结果
▏100平8号位的优化▕
翰哥说:“非常简单!”
于是我们加了一个小米Wi-Fi放大器,再测试,2.4G达到了4-5MB/s,非常稳定。
于是这间100平的三居就这么结束了。
期间有几个值得注意的地方,为了真实的模拟生活场景,在卫生间里的测试是坐在马桶上、关上门的,主卧的卫生间更是把卧室门也一并关上了。从数据来看,普通的卫生间门对信号没啥影响。
卫生间的门有哪些讲究,才能颜值功能两不误?
▏跃层的优化方案▕
方案一:无线桥接
器材:TP-Link WR842N、小米Wi-Fi放大器
结果如下,

▲ 图源:住范儿自制
因为使用的两个设备均只支持2.4G,因此以上数据都是在2.4G网络环境下得出的结论。
不难看出,小米完爆TP-Link WR842N!

▲ 小米Wi-Fi放大器 图源:住范儿自摄
方案二:有线Wi-Fi扩展
具体操作:用普通家用路由器,设置成AP模式,与主路由器相连。
结果如下,

▲ 图源:住范儿自制
阳台是离室外最近的地方,2.4G情况下信号容易受周围的干扰,我不是很明白,为什么只有2.4G受干扰,5G没影响。
翰哥解释说:“咱们拿安卓手机测一下你就知道了,为什么我说5G是革命性的改变。”

▲ 2.4GWi-Fi信道 图源:住范儿自制

▲ 5GWi-Fi信道 图源:住范儿自制
“2.4G是共享带宽,假如你家周围有10个设备,那么即使是175M(bit per second)的,共享下来就很慢了。”翰哥说,“5G的带宽是独立的,就算在无线密度大的情况下也没问题。”

▲ 有线wifi扩展,被设置成AP的路由器
图源:住范儿自摄
针对这个需要穿楼板也需要穿墙的复杂户型,我们给出的优化建议是:
1. 一楼的主卧、阳台有弱电点位,直接用支持5G的家用路由器设置成一个AP,就可以实现顺畅的上网;
2. 餐厅、厨房没有弱电点位,使用小米Wi-Fi放大器,根据测试的下载速度显示,完全可以满足在线观看1080p视频~

结论
1. 信号强度不等于网速,更不等于网络质量。尤其是很多国产路由器厂家会专攻信号强度这个数据,但实际上其能达到的网络质量并不能带来很好的使用体验;
2. 新技术带来的进步是革命性的:5G技术比2.4G先进太多太多,so amazing!
3. 居民楼中2.4G信号太嘈杂,你家的网速慢就是因为邻居有买200多块所谓高端的TP-Link路由器,所以解决之道就是使用5G技术;
4. 推荐路由器AC66U-B1,性价比最高的家用5G无线路由器,真·千兆;
5. 推荐小米Wi-Fi放大器。
我本身是对无线技术完全不懂的,但是翰哥给了这份真诚的总结之后,我按着字母输入淘宝,就大大提高了自家的网速houhouhou!
这和住范儿提供的整装产品简直一毛一样好吗?!! 根本不需要懂那么多,就能有又美又实用的解决方案!
此外翰哥还提出一个注意事项,尤其适合对智能家居感兴趣的盆友们。
目前市面上主流的智能产品都只支持2.4G,这是技术发展的局限,所以家里如果用的是支持5G的路由器,记得不要把2.4G关掉噢~
来源:住范儿原创