北京昌平二层新中式别墅
建房云图库
2021-10-22

北京昌平二层新中式别墅
建筑尺寸:面宽 12.3米 进深 11.6米
建筑面积:282.0㎡
结构形式:砖混结构
2层 / 4室 1厅 5卫 1厨 1堂屋 2储物 1酒藏 1晾衣 1书房 2阳台
平面图

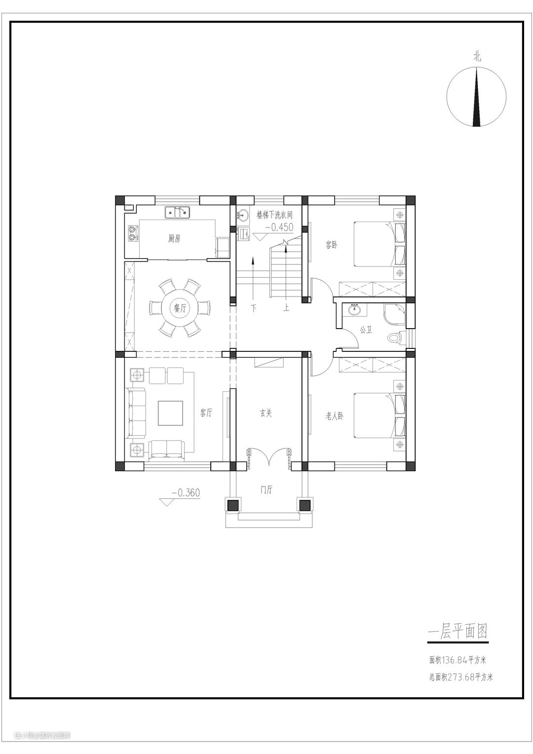
一层平面图
一层以待客居住功能为主,设计师在东侧预留了较大面积的居住区域,通过中部的公卫划分开;西侧的客厅与开放式餐厅相连,使得业主家用餐休闲更具灵活性。

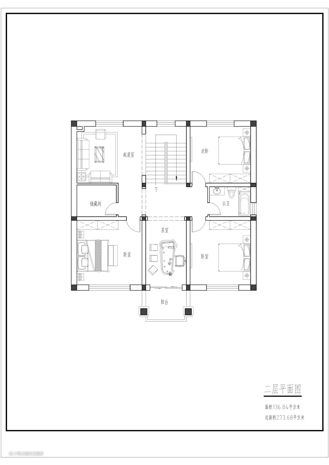
二层平面图
二层以居住休闲为主,共设置3间卧室,西北侧预留了起居室空间,搭配南侧的茶室使用,丰富整层的使用体验。
效果图

南侧效果图
项目为新中式风格,整体色调自然而淡雅。立面采用浅色真石漆,搭配精简的深色线条及中式栏杆构件,造型上错落有致,使得整体更显大气、稳重。

西南侧效果图

东南侧效果图

东南侧效果图

西南侧效果图

局部侧效果图

东北侧效果图

西北侧效果图

局部效果图