客厅没有沙发,舍弃了电视墙,看了他的89㎡家,后悔自己装修早
品然装饰(闵行店)
2021-10-27
这是89㎡之家,拥有三室一厅的格局,但同时户主也忍痛不买沙发,甚至还舍弃了电视墙,没想到装修之后,却有意料之外的惊艳之感,参观完全屋后,后悔自己装修早了。
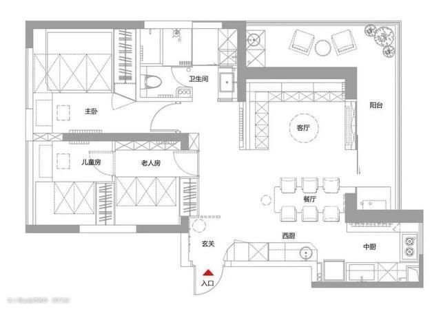
▼设计图纸

这是一套仅有89㎡的房子,原始户型为二居室,但因为屋主需要再多一个房间,因此重新置入了一个房间,两室变三室。因此舍弃了电视墙,将餐厅安置在客厅与厨房之间。
原有的餐厅空间,则被改造成了一个房间,提高了空间利用率,也满足了户主的“三房”需求。

▼入户玄关
入户后的第一眼,就是客厅。考虑到入户隐私问题,设计师在入户的正对面处,加入了一道原木的格栅隔断,既不影响采光,也起到了遮挡的作用,同时玄关处加入了时下流行的六边砖,与客餐厅的原木地板,形成了“泾渭分明”的层次感,自然又大方。

▼玄关处的鞋柜,与西厨的橱柜,进行了联合设计。相比如单独的设计,这样的融合设计,更有一气呵成的整体感,空间利用率也显得更高。

▼餐厨空间
由于厨房的空间面积实在有限,因此厨房加入了一组定制式橱柜,嵌入了烤箱、蒸箱,让厨房空间显得整洁利落,不用担心堆积的电器,弄乱了厨房里的空间感。


▼全屋开放式的布局
为了实现二房改造三房的空间,设计师以开放式的布局,将餐厨与客厅放在一个空间之中。厨房一旁是岛台式餐桌,餐桌一旁则是客厅空间,原木风与浅绿之调,成为了不同功能区之家的划分。

▼半开放式的厨房
因为日常主要是中式烹饪,因此厨房以半开放式的设计为主,并且置入了一个集成灶,方便油烟排放,同时再以淡绿色的橱柜,营造了一派清新淡雅的空间氛围。

▼岛台式的餐桌
餐厅里的岛台式餐桌,既是一个厨房的操作台,又是一个餐桌。桌子下方均植入了收纳空间,让桌椅可以收纳到餐桌下方,岛台下方也有几个储物柜,为小小的房子,提供了一份实用的收纳功能。

▼没有沙发的客厅
而为了多出一间卧室,客厅忍痛不买沙发,仅以定制式的L形卡座为主,座椅下方还布置了收纳空间,卡座上方同样也加入了一个吊柜,看似小巧的客厅,虽然没有沙发,却拥有丰富的收纳功能。

▼相比传统沙发,卡座更节省空间,同时还能增加储物空间,同时卡座在定制的时候,能依据户主的舒适度,进行靠背和腿部位置的高度进行自由设置,拥有更加的舒适性。

▼看似小巧的客厅,却拥有了一席之地,还兼具了丰富巧妙的收纳功能,简洁大方。

▼被舍弃的电视背景墙
而电视被摆在了阳台位置,舍弃了电视墙,空间显得更为开敞自由,既满足父母的观影需求,也让空间在整体上显得井井有条。

▼以“榻榻米”为风的主卧
而主卧空间的设计,则以原木的榻榻米定制床作为视觉焦点,兼具了睡卧+储物功能。同时为了女主人,设计师还在靠窗的位置,设置了一处书桌梳妆台,可以说空间被利用到了极致。

▼榻榻米的内部空间,就是收纳柜体,为主卧空间提供了充足的储物区域,日常不常用的东西,可以放置在榻榻米储物柜里。

▼梳妆台+壁龛
靠窗位置的梳妆台书桌,堪称惊艳。打开桌面,就是属于女人的一个小小梳妆台,放下桌面,就是男主人办公书桌,搭配墙面上的壁龛书架,起到了双重功能的作用。

▼父母房+儿童房一体式设计
而父母房与儿童房被布置在同一个空间之中,同样以榻榻米床为主,同时靠墙的通道位置,设置了一排原木风的收纳架,收纳功能特别强大。


▼收纳架的中央位置,还预留了电视机的位置,方便父母偶尔观影,设计可谓体贴得当。

▼“父母房”旁的儿童房
而通过父母房,可以进入儿童房空间,以榻榻米+书桌的组合式空间,就是这个家里硬生生挤出来的“第三个房间”,作为家里宝贝的小房间,温馨且自在,而且采光一流,学习还是玩耍都特别方便。


▼床尾的衣柜和抽屉,与父母房的衣柜进行了组合式的设计,同时还开辟了一个小小的格窗,让父母房不至于太过阴暗压抑。

▼卫生间空间的多功能化
而卫生间以多功能化的性质为主,洗衣机和烘干机,都被嵌入到台盆下方的柜子之中,同时考虑到孩子使用的便利性,还加入了一高一低的双台盆设计,使用起来更为便利。


▼同时淋浴区与洗手间,均以干湿分离式的设计,更方便日常使用,让一家五口人居住在这仅有89㎡的空间之中,也不会手忙脚乱。

▼让人羡慕的阳台空间
而客厅的阳台空间,以L形的拐角设计为主,晾衣区域做了木质收纳柜,同时以阳光玻璃房的形式,让一家人能够收获一阳台的光照与采光。

不得不说,如此89㎡的小公寓,在设计师的巧思之下, 拥有了让人羡慕的魅力。不管房子大小,只要对生活充满热爱,即便是小房子,也能过出精致感。