四层新中式私宅,观影室、健身房、茶室一个不差
宁夏装修设计院
2021-11-06
摒弃了不必要的繁复雕饰、浓墨重彩,在设计上力求简约,格调高雅,简朴优美;立足于传统,又巧妙地融合了现代特色;将现代元素与古典元素相结合,让传统艺术在现代生活中得以延续。
在设计的过程中,设计师一遍又一遍解读自然环境和室内设计之间的关系,材质与材质之间的碰撞融合,力求达到最完美的效果,建立自然环境与建筑的亲密关系。

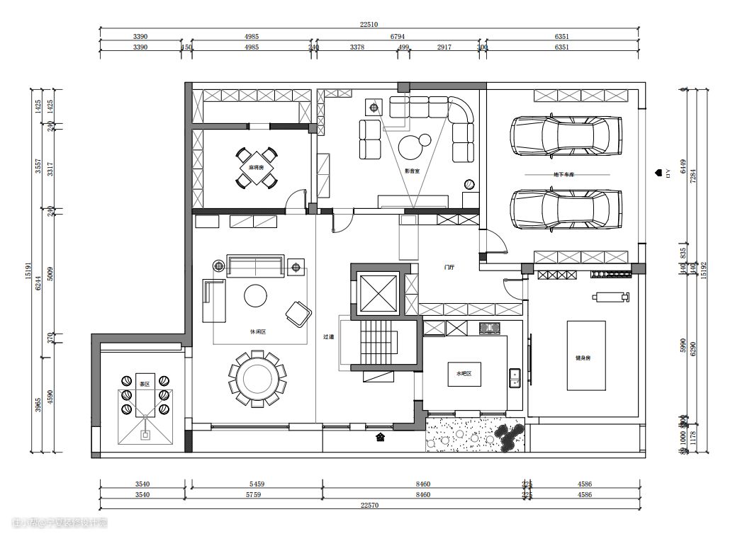
(负一层平面布置图)

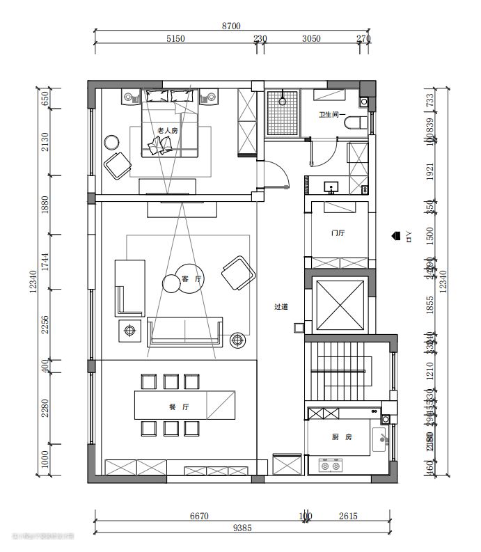
(一层平面布置图)

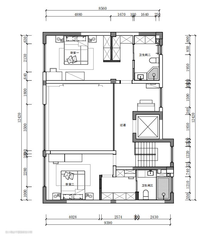
(二层平面布置图)

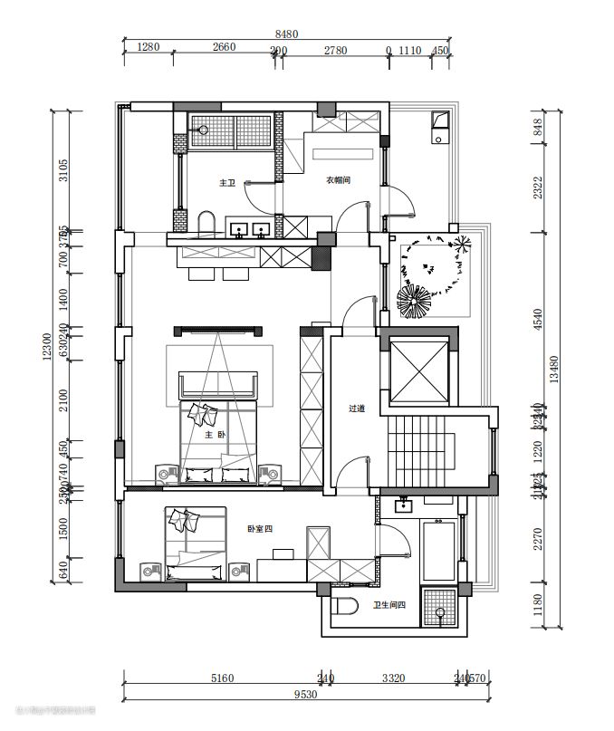
(三层平面布置图)
#01
客餐厅丨一层


客厅的挑高是两层的高度,五米多的电视背景墙用水墨感的山脉铺满,将客厅的视觉空间上延,在一二层的不同楼层体会不一样的景观,或是“不识庐山真面目”或是“一览众山小”的诗情画意。


横厅的设计使客餐厅空间更显开阔,明亮的落地窗与横厅的搭配,无论从视觉感官、还是身心感受,都是一片享受惬意生活的景象。

#02
老人房丨一层
一楼的老人房沿用新中式风格,在衣柜的把手、软装靠枕、装饰画都能体会到设计的匠心独具。双床的设计让老人在休息时不会互相打扰,长辈们的睡眠因此而得到更好的保障。

#03
主 卧丨三层


主卧在装饰上更注重纹路和线条的美感,用纱质窗幔堆砌出中式独有的似梦似幻的氛围,同时也减弱了深色木材带来的深沉感,突出卧室的休息功能。

主卧为了更好的划分区域功能性,设计了方形隔断配以柜子和圆形装饰,将中国传统学说中的“天圆地方”理念融入其中,象征着概念上的“外儒内法”和为人处世方面的“外圆内方”等思想。
而隔断的另一边是既能办公也可以作为女主人的化妆台的区域,中式造型的储物柜实用性极强。

#04
儿童房丨二层/三层

在二、三层分别是不同色调的儿童房,儿童房符合孩子们的审美意趣,独特造型的床头、桌椅,可爱的摆件、玩偶。墙面的设计也考虑了几个孩子的年龄段不同的需求,用装饰画、整墙的壁纸进行点缀装饰。
不套用新中式的风格给儿童房,是不把父母的想法强加给孩子的表现之一,孩子在更符合自己喜好的卧室里休息,是被父母的爱包裹的自有小天地。


#05
休闲区丨负一层


休闲区给主人提供了聚餐的地点,多人的圆桌和木质的桌椅更显正式和端庄,即使把会议搬进家中也可以有严肃的氛围感。即使在阴天天窗的光线不足以保证采光,地下的灯带、射灯和离桌子更近的传统灯笼样式的灯具,都可以使负一层显得亮堂。

设计的细节体现在负一层的楼梯后,绿植摆件也是一副小型“山水画”。负一层的水吧区满足了主人喝茶、品酒的喜好,不会因缺少水源跑上跑下而使负一层的使用率降低。

#06
茶 区丨负一层

茶区设计在更亮堂的天窗下,倒一杯香茗看茶气翻腾,随着热气视线上移,天窗上或是雨点滴滴答答、或是阳光徐徐柔柔、或是星星漫天璀璨。
#07
健身房丨负一层

健身房是“豪宅”标配,周末邀三两老友在乒乓球台前来一场“国手”大比拼,在忙碌的工作之余提高身体素质,自律给人自由。

#08
影音室丨负一层

影音室配置隔音墙、按摩椅,直线提升观影体验,所谓生活的最佳享受不过如此。以人为本的设计不仅要满足居住的需求也更要懂生活的期待。
