247㎡现代简约别墅,在南昌有这样的家,过的是神仙日子
南昌丛一楼装饰总部
2021-11-06
题记
不为浮华遮望眼,愿为春泥化落红。
炫目又多彩的世界里,家是我们最终停留的方向,守望它,并好生打理与经营,日子自然会开出花来。
户型:别墅
面积:247㎡
设计风格:现代
项目地址:南昌-万科璞悦里
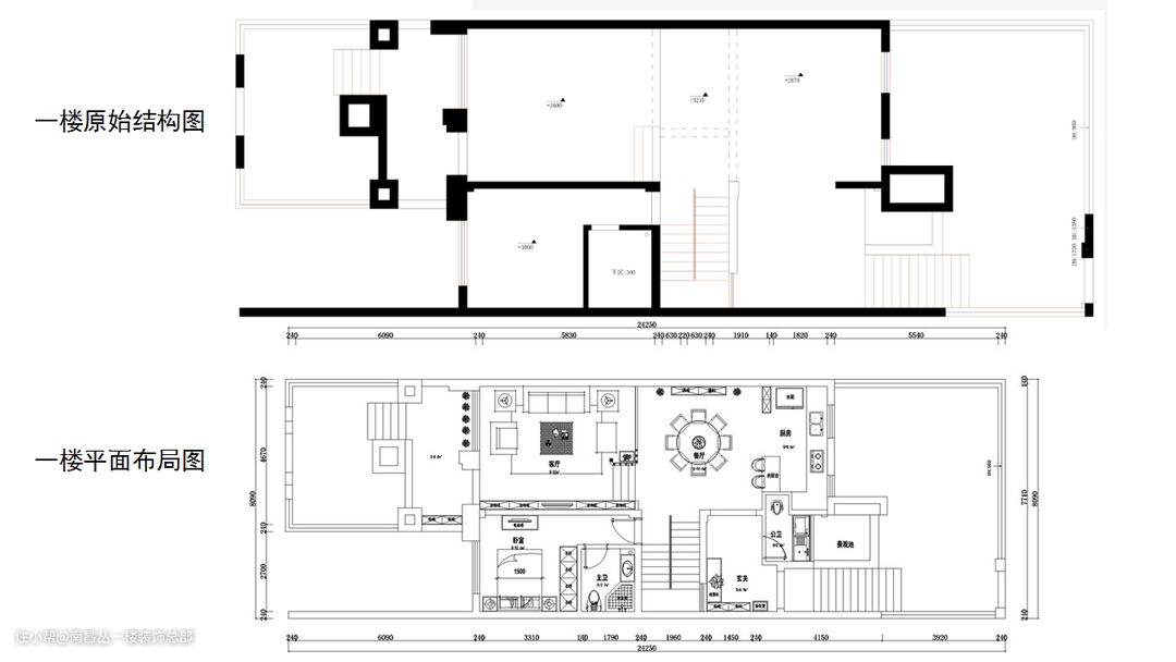
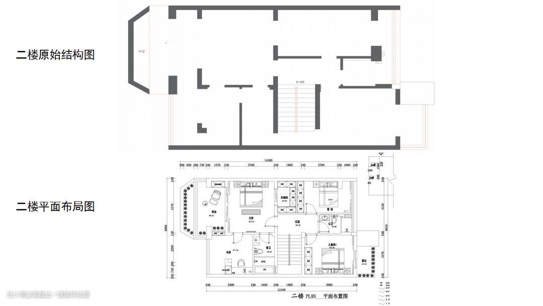
户型结构图&平面布置图
前后都有小院的家,是多少人梦寐以求的梦想追求呢?春夏秋冬不同绿植和花卉的色彩变化,让家对四季有了不同的感知和印象,也让家因着四季的轮回有了不同的色彩变化。户型结构大方规整,根据家庭人口的居住需求梳理,让我们获得了本案女主家庭居家生活本该有的模样,流畅、清晰的空间动线布局,让我们在忙碌而繁杂的生活中找到规则和自律的情愫涵养环境,拾花弄草也好、沏茶读书也罢、抑或是独处卧听风雨,皆是人生一种况味。



前后对比图看看
毛坯状态时的入户区域,从前面的原始户型结构中,我们可以看到,全房对家庭成员居住需求的满足还是非常充分的,但是你有没有发现还是缺少一处家庭休闲和观影的地方?

入户就是客厅,那在入户玄关区域,设计师将投影幕布墙做了综合考虑后,就很好的将功能进行了融合,平时不使用的时候,幕布打上去,它还是一整面的储物收纳墙,整洁、立体,没有任何视觉阻隔影响。

入户玄关储物收纳柜的设计上,采用白色平板门,无把手,简洁无痕,除此之外,加入了层板和灯光之后,让这一处的端景效果更为突出,功能和观赏皆可得到满足。

沙发背景墙大板砖和碳钢线条来做层次修饰,竖向线条的拉升让进门的感觉也拔高不少,地面通铺灰色大板砖,浅灰和卡其的家具与背景墙协调呼应,整个空间呈现出一种很放松的状态,搭配一些绿植和亮色配饰,简约时尚。

餐厅&厨房
从客厅拾阶而上,我们来到餐厅和厨房区域,客餐厅直线联通,动线合理。标准的U字型厨房、大圆桌,满足了女主对下厨的梦想规划,从客厅到餐厅再到厨房,全房地面通铺灰色砖,一气呵成,厨房橱柜采用的是烤漆白色面板,给人清爽简洁又很干净的空间。

餐厅摆放六人位圆桌,它可做进一步扩展,小就餐或大聚会皆能得到满足。
由于餐厅区的进深是比较紧张的,那设计师利用厨房移门区域,加入了两组收纳窄边柜,满足餐边一些物品的收纳需求,同时将移门做了折叠嵌入,敞开或封闭都可以自由切换,让女主对对下厨的体验感更为通透和放松。


楼梯区域
楼梯区域的设计很简洁,立面不做过多装饰,淡雅的浅灰色色漆另视觉温润不少,黑白根雪花大理石和黑色木质扶手呼应,纯粹极致,大大方方,施工前后对比看看:



其它细节

感谢相遇,美好如初
生活平淡,日子美好,也许装修过程当中总会有或多或少的遗憾,但每一种遗憾,都会成为下一次努力为之奋斗的方向,愿未来的生活里,每当回味起这一路走过来的装修之旅时,它是幸福和开心的,足矣。
