400平米意式极简别墅,看我们怎样巧用空间打造理想家
设计师廖廖
2021-11-10
▲案例背景:这栋位于什邡的透天厝,面积400㎡,地上三层,地下一层。屋主是一对儿做了十多年服装生意的80后夫妻,对生活品质要求很高,大女儿初中,小儿子小学。一栋透天厝,恰有象征屋主一家独立又团结的意志。在孩子们渐渐长大的欢乐时光里,夫妻俩希望培养出他们独立的性格,对于自己的风格偏好,两个人也很明确,简单时尚是他们的初衷。但设计过程中完全由我们发挥,足够的信任和给予设计充足的时间,成就了一个用心塑造的作品。 ▲户型问题:别墅楼层比较多,每一层的房间尺度都不是很理想。 1.客厅宽度不是很大,需要搭建扩充。 2.卧室没有衣帽间储物不够,儿童房没有独立卫生间和足够的储物区。 3.阳台较多,没有得到很好的利用。

负一楼原始图

一楼原始图

二楼原始图

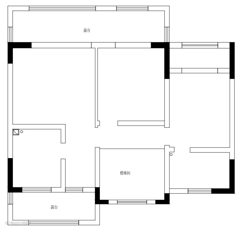
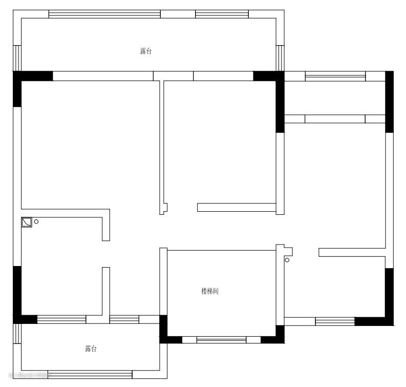
三楼原始图
▲业主要求:1.客厅空间大一点,外部可搭建,空间需要利用好。 2.女主喜欢看书,有个地方可以看书,想事情; 3.有间茶室,朋友来了可以聊天喝茶。 4.亲子互动空间,陪孩子一同成长。 5.每个房间都需要卫生间,储物空间要多。

负一楼平面图
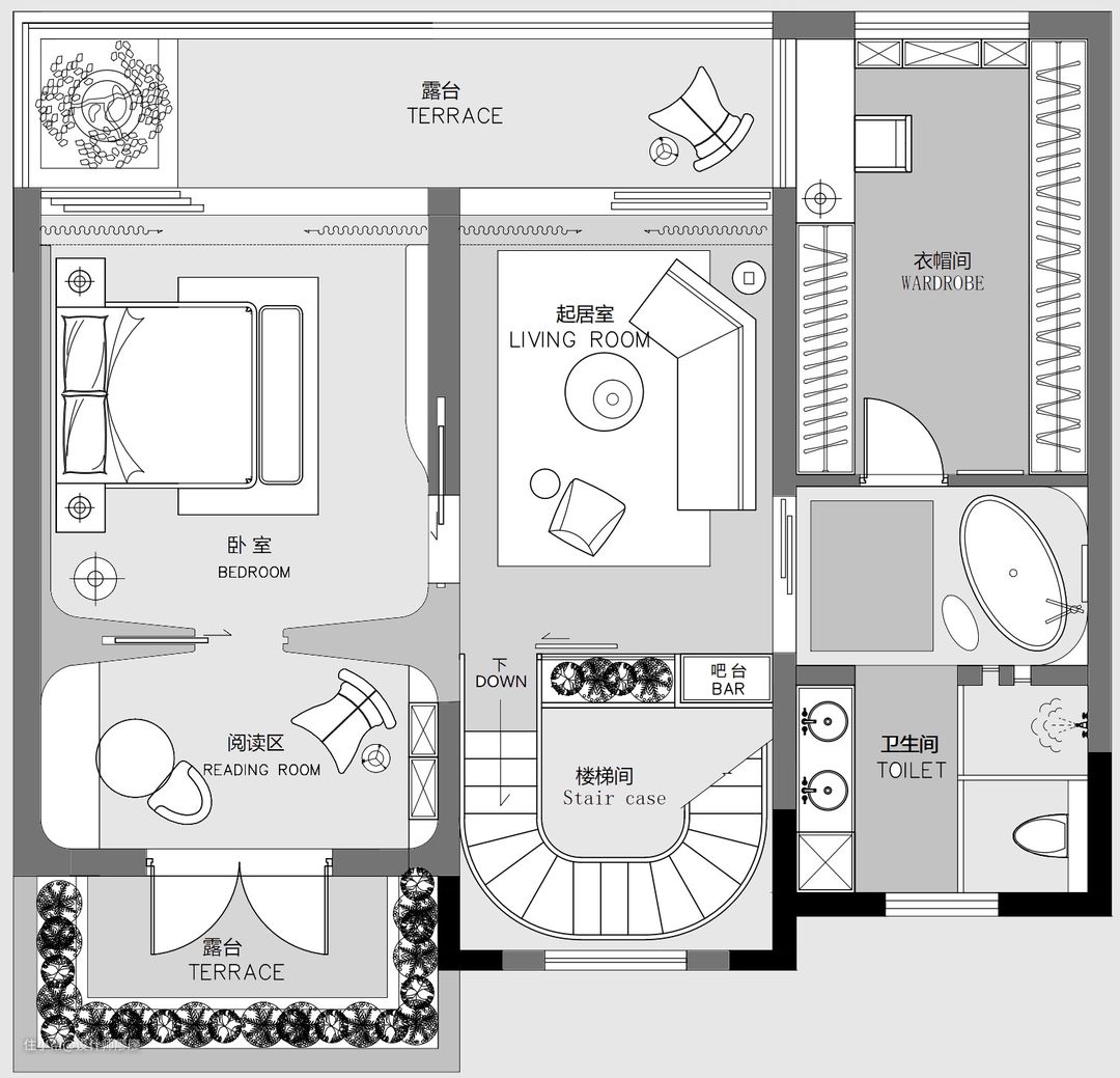
▲布局改造:对原户型进行梳理,拆除室内非承重墙部分,对空间进项重新分区和改造。 1.入户门厅做透明化处理,让门厅与花园有一个空间呼应。 2.增加客厅公共区域面积,把阳台空间纳入到客厅,使空间得到延申。 3.2楼为两个孩子的卧室和活动空间,调整空间比例,让卧室有独立的衣帽间、卫生间、书桌,满足孩子的功能需求时也照顾到了孩子的心理平衡。两个儿童房中间有一个独立的亲自空间,方便家长与孩子的互动和交流。 4.3楼经过搭建,梳理出新的空间定位;起居室、主卧室、阅读区、衣帽间、卫生间、休闲露台,增加了空间内容,丰富了空间的多场景使用。 5.负一楼:开放式空间格局,获得更好的娱乐生活体验,一家人生活娱乐更希望有一种开放的格局。

一楼平面图

二楼平面图

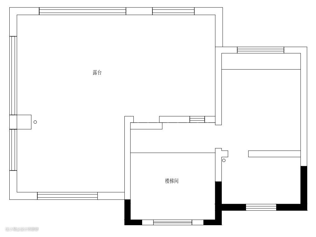
三楼平面图
▲设计思路:本案设计定了一个主题叫《幸福房子》,在某一次不经意的窥探中,发现设计的不凡之处。我们希望房子不仅是居住,还包含了情感,它具有一种吸引人的性情,假如它摇身一变成为一个人的话,正是个我们喜欢的人。 从空间格局入手,更多的是把开放与包容融入到家庭的细节设计中,提高业主的生活幸福指数。我们希望空间是灵活的,开敞的。希望空间之间会有一些有趣的互动,不去刻意强调空间的轴线关系,但追求空间统一的气韵。我们希望空间形成后,能够带动家人之间的互动,增进家人之间的情感交流。规划好主要动线和辅助动线,主要动线使用过程中,辅助动线可以独立使用。我们提倡私人空间和个人世界的独有性,也希望使用者能够从房间中走出来,彼此沟通交流。
- 门厅
纯粹的空间,恰到好处的温度,目之可及都是空间艺术,在艺术与生活之间,找到属于自己的那个平衡点,意式极简,正是如此。 整体空间形成上不受原建筑结构的约束,力寻空间之中的包容性和延伸性。

门厅采用非传统的设计手法是希望夜晚回家的时候迎接业主的不是一个关闭的防盗门而是透过玻璃看到的一盏夜灯。然后延申到客厅、卧室,每个空间都与户外有交融,有独立的户外休闲空间,自然是最好的设计元素。
- 客厅
我们希望每一个灵感或者设计语言都像从空间生长出来,好像一切都那么理所当然。在一些不经意间,又出奇不意。空间有根有据,即便是装饰,也不是刻意附和。它应该具有包容性,包容世俗生活,包容未来的变化。

客厅并无多余的装饰堆砌,精简了家具,只利用简单的线条、材质勾勒出空间的线条美感和艺术质感,淋漓尽致地展示出社交场所的品质与高级。 将阳台与客厅打通,解放整个空间的布局。客厅的开放式布局搭配大面积的落地窗户,让阳光在空间得以流连、驻足,甜蜜在生活中升温,感受四季变化。

◆色调上全屋偏暖色系,温柔的奶油色以及跳色的软装搭配让开阔的空间显得不那么生冷。
◆整体墙面选用有机理质感的艺术漆。
◆沙发选用的是一款与世无争却独领风骚的异形沙发、一个带边几双人沙发、两个单人座椅。一系列软装的搭配让空间充满调度。
◆客厅背景墙选用奢石系列结合壁炉,极窄灯条让天然奢石更显质感,提升意式风情。

进口品质的家居,细腻的体验感在舒适的氛围中缓缓释放。克制的设计语言将屋主对生活的期待展示出来,客厅就这样被还原成屋主的审美情趣。
- 餐厅
极简空间下是近乎较真的细节落地,在设计时推演出空间细分尺度,强调细节的作用和精心挑选的材料,用它们独特的特征定义了整个空间。合理的布局加上适当的摆件给生活足够的仪式感。

开放式西厨结合餐厅一体化设计,彰显出空间的大气。当鱼肚白岩板与茶色玻璃组合,立面简致,纹理细腻,视觉层次丰富,彰显出饱满的意式美感。

双人位吧台让空间有了划分,更增加了浪漫的情调,提供了生活的便利性,同时也为日常社交创造了空间。椭圆形餐桌满足了用餐需求,玻璃钢材质的餐椅充分激发空间简而不失其华的意式感染力。

两个台面交错咬合,设计上灵活巧妙,尽可能保证了各自功能的完整性。
- 厨房
中厨整体选择大板地板和壁面,搭配黑色橱柜,整体干净简约,尽显高级质感。

西厨完美解决了与家人之间的互动,满足高颜值厨房的追求。

中西厨设计好处就在于它可以达到彼此独立又相互贯通的效果,中厨可以在里面忙碌烹饪不被打扰,西厨则可以和家人交流谈心,这样的设计岂不是一举两得?
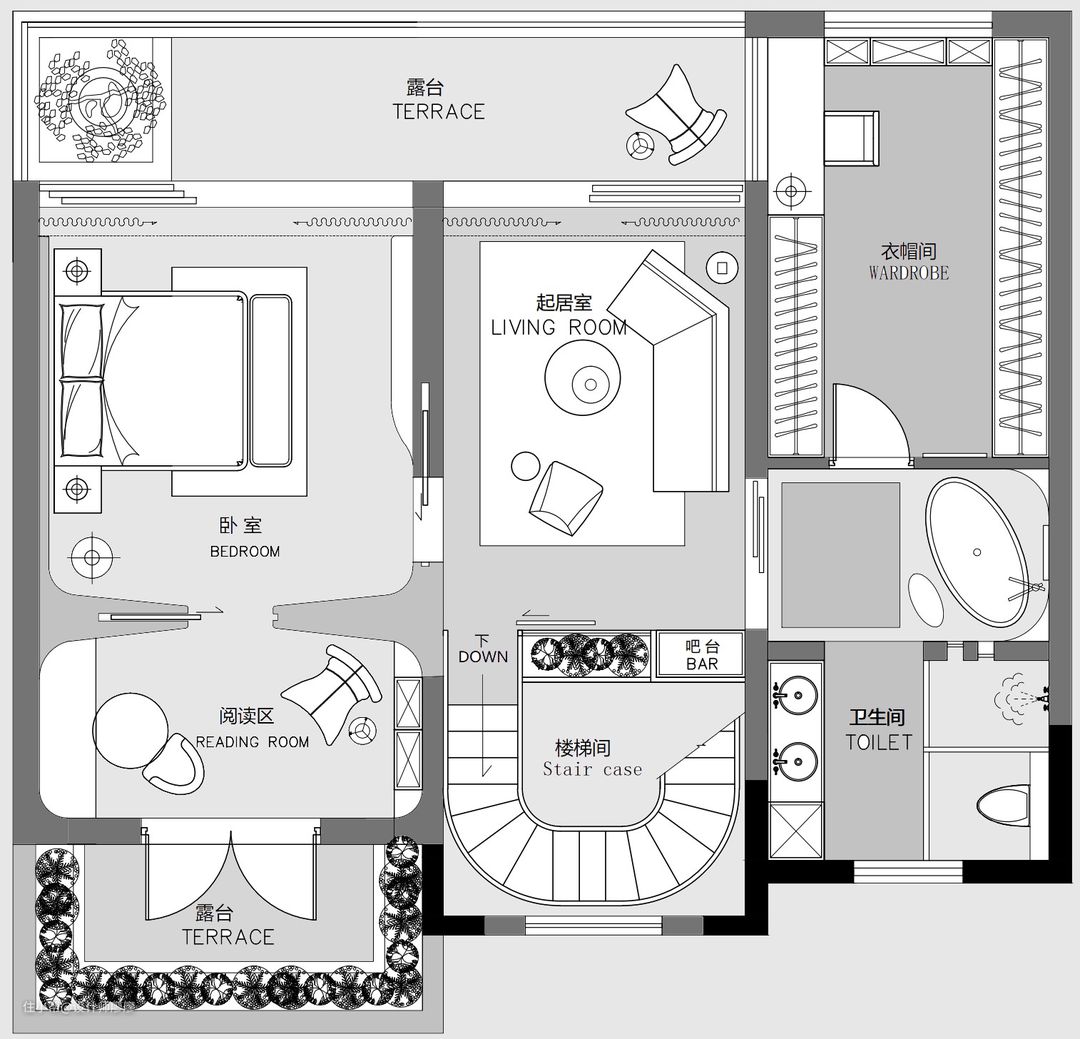
- 主卧
每个卧室空间的设计,非常微妙的。这里不仅是主人的隐私空间,也是代表着屋主的品味喜好,从室内肌理至家饰软件,到各具性格的自然色系,在简约的曲直场景中,加上中意的风格摆件,重现屋主内心深处的归属模样。

主卧的舒适度很高,将颜值与舒适都打到了绝佳的平衡。简约的米色背景墙,奠定下静谧内敛睡眠基调,全无主灯设计,线性灯和射灯温暖了空间色调,柔软的床品和大面积留白则营造出休闲舒适的氛围。

将主卧的小阳台包进室内,再结合窗外的景致打造木质落地窗,被木饰包裹的落地窗更带来自然舒适的气息,整个睡眠空间也放佛笼罩在静谧的氛围里。再放置一把舒适的单人椅,室内绝佳的休息区也坐落而成了。给足了私人空间,在空闲时间里,拿上一本书,躺在阳台上,也不失为一种好的放松方式。

衣帽间选用茶色玻璃和覆膜板做整体衣柜,根据屋主的生活习惯,大多都是挂衣区。玻璃柜门为了整齐美观做了长衣区和皮质收纳盒的组合。挂大衣风衣之类的长衣服透过玻璃看着会比较整洁,能突出衣帽间的质感,不建议玻璃门做短衣区,挂太多而显得太乱没有质感,包包多的女生也能作为包柜。

- 次卧
次卧老人房简约的色调勾勒出卧室的轮廓,没有浮夸的色彩,只在材质上颇为考究,锻造出一个柔美舒适的睡眠空间。

- 儿童房
女儿房整体设计透露着小公主的优雅气质又不显稚嫩,床头背景用PU线和拼色艺术漆做造型分割,显得白色的空间也有了造型层次,玻璃墙的处理和背景墙形成呼应,也克服了卫生间没有窗户的这个难题。


儿子的房间设计主旨两个词“玩耍”“创造”,墙面的太空宇宙造型灯给人无限遐想,与灰蓝色床品交相呼应。

男孩一般都比较好动活泼,因此儿童房家具的摆放和功能的划分都以简洁为主,尽量多的留出空间给孩子玩耍学习。

- 卫生间
主卫的浴室做了和整体色调完全不同的暗黑系,能够让人完全静下来泡个澡,有一个可以冥想的空间。过多重不同硬装材质、软装搭配,让整体质感满分并不会冰冷。

纯白的浴缸置身黑色之中看起来高贵优雅,浴缸龙头没有选择传统的金属色,而是用鲜艳的红色和黑色条纹砖墙面搭配出了艺术展品的视觉美感。 地面铺设的鹅卵石不仅美观而且在夏季还可以保持房间的凉爽,不仅防滑还自然健康。天然石材与木质元素的完美搭配,让每一次的呼吸都充满了生命力。

主卫洗漱淋浴间做好了干湿分离处理,依然保持着高格调。整个空间没有墙或隔断,用全透明的玻璃材质来延伸空间,增加视觉深度。

女儿房的卫生间颜色格调与房间保持一致,但没有窗户成了最大的难题,透光不透人的玻璃砖成了好帮手,不仅装饰性强,也能解决采光问题。壁龛的设计解决了空间储物问题,节约空间造型同样美观。

公区卫生间设计采用最简洁的黑白设计,黑色的线条在纯白空间显得干净利落。

- 起居室
虽然传统的习惯都更突出卧室的重要性,但实际上,现代住宅已经逐渐形成了以起居室为核心的结构样式。起居室在所有居室中不仅面积最大,而且处于“交通枢纽”,起着联合各个居室的重要作用。

本案中的起居空间不仅能满足不同家庭成员活动的需求,在整体的装修中又有恰到好处的留白,带来视觉上的空灵感。吊顶的流线形与楼梯间隔断拱形造型相辅相成,是整个空间更加柔和,承载了一家人的幸福生活。

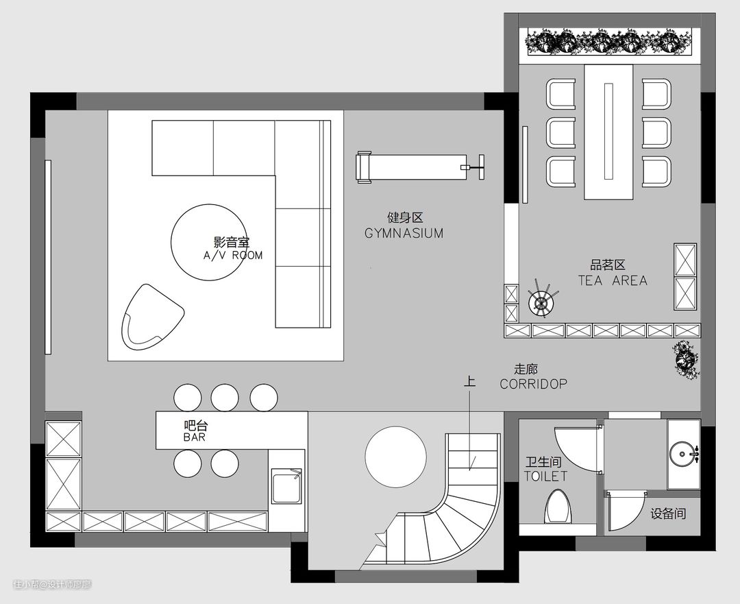
- 多功能室
负一楼的多功能室满足了一家人很多生活习惯,可以作为家庭活动室、影音室、健身房、酒吧、茶室......

主色调以米白色为主,搭配蓝色系沙发,楼梯和部分墙体柜子用深色大理石,整体视觉冲击力强,层次分明。

- 茶室
影音室旁边设置了一个独立的茶室,整个茶室透着一股浓浓的东方元素。最大的亮点在天井的设计,光源照射下来给人朦胧的美感,也给茶室进行了天然光源的补充。


- 亲子空间
亲子空间是屋主特别强调的一部分,在这里屋主希望抛弃电视为中心的格局,打造有阅读氛围的亲子共处空间,也能让孩子静下心来练琴。整体氛围充满童趣和想象力,能够尽情释放孩子们的想象力。

一整面墙的书柜提供巨量收纳,奠定了书香氛围。减少大件家具的摆放,沙发上、地毯上、软木地板上,随时可以坐下来阅读,轻松自在地享受共处时光。

- 经验问答
▲问:装修这套房最大的难点是什么?
答:1.别墅扩建,和露台搭建,需要考虑承重结构,机电设备点位等 2.三楼主卧室的分区,对分区的探讨是比较长的一个过程,中途在探讨中反复修改,验证方案的可行性和现场的屋顶搭建施工等。 3.花园设计与室内设计的互通性,一楼为大面积的落地玻璃,对景观设计要求比较高。
▲问:最满意的亮点设计是什么?
答:1.曲线设计:在满足功能前提下,运用流线行设计,对三层空间进行串联,这样做会让空间属性保持统一,让空间看起来柔和、舒适。线条多采用石膏线条,能很好的去控制装修硬装造价。 2.借景:室内空间借花园的景,借阳台的景,让空间得到延申,丰富室内空间的内容,让景观成为设计中的重要元素。
▲问:这套设计的亮点是什么?
答:1.本案运用的大量的线条来组合,通过线条的串联让空间给人以简练、柔和的感觉。线条在空间自如地伸展,气息蔓延,时间都慢下来。 2.别墅对软装形式要求是比较高的,我们对软装在空间尺度的表现全新的定义,软装的布置全部根据主人的动线和生活习性来搭配,让空间具有一种吸引我们的性情。 3.空间格局呼应业主的生活方式,不断提炼,减去复杂没必要的空间,让空间与自然对话。玻璃门的入户门厅、客厅超大的落地玻璃,卧室出去的露台,这些都是把周边的自然景观纳入室内设计的一部分,目所能及的地方都是自然的馈赠。