参观贵阳女主180㎡婚房,我被彻底治愈了,全屋清新温馨超精致
贵阳生活家装饰旗舰店
2021-11-10

爱与梦是括弧的两端,我把我的身体置于中间,
以此,我认识世界。
我的愿望是玫瑰,点缀着我的岁月。
——阿多尼斯《时光的皱纹》
现代主义曾倾向于效率与实用。但绝对的实用主义所催生的精神萧条令人不堪重负。在时代步履匆忙不停的时刻,家除了要构建功能空间,更要满足灵魂深处的渴求。
本案在精工细作的现代风格下,用美学的态度处理每个空间的关系。融合对家具的考量,让空间更具秩序感和仪式感,展现灵活手法下,功能性、人性化墅居生活真实的美学价值。


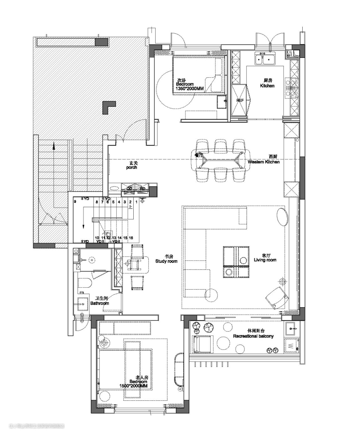
玄关
玄关是“家”的第一印象。一个有温度的“家”,便从玄关开始。一副艺术挂画与顶天立地的玄关柜彼此相和,虚实相生。玄关柜镂空的位置摆放着艺术摆件,既打破了立面的刻板单调又兼顾了展示功能。入门仪式感,包含了对主人的尊重与关怀。

客厅
光线充足的横厅开放疏阔,原木所营造的优雅基调统摄整体风格。在其影响下,现代家具的排布节奏轻快、灵动,点润日常生活的理想场景。


以建筑手法造景,楼梯间既有石材的厚重,也有玻璃的轻盈,再添一尊伫立的雕塑,小小角落也横生趣致。
大面积的浅色系家具与简洁的线条相得益彰,干净的界面用一副黑白相间的画作点睛。L型沙发既围合又开放,砖红和墨黑的「出色」组合茶几打破了客厅的沉闷,将色调美学和空间质感做了完美的平衡。


客厅面朝的全景落地玻璃,揽景入怀。树影花语,每个被阳光浸润过的角落,一切尽在不言中。




餐厅
高级感十足的浅灰桌椅与细巧的金属吊灯组合,尺寸慷慨的餐边柜使得整个餐厅视觉效果更加立体轻盈。



餐厅与客厅的空间边界虚化,这也是首层的亮点所在。开放式公共活动空间使得视觉纬度更为开阔,活动区域动线的扩大,凸显室内空间更加宽敞。

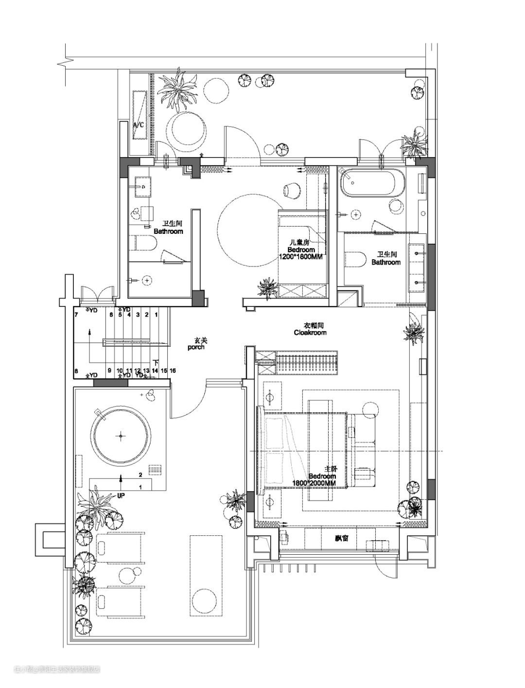
卧室
精神仅限于想象和认知,不囿于方寸。作为内心的映照,家庭成员的私密领地各有侧重。每一方专属天地都带着玫瑰的馨香,滋养着心灵的意象,回馈爱与梦幻。
低饱和色度空间氛围和意识形态绘画作品之间的巧妙兼柔,结合灯光的映射,为主卧增添了几分雅致柔情。把握「藏」与「露」之间的方寸尺度,特意留空的收纳空间更彰显主人的艺术品位。


简洁有序的空间布局,暗隐内涵沉稳之气度,让人产生「乍见之欢,久处不厌」的眷恋之情。简洁到不掺杂一丝冗余的块面,意味着居住者内心的充盈和从容。




儿童房
抛却陈规,独一无二的露台景致留给了儿童房,充分体现了对儿童成长的体贴关怀。与户外的繁华喧闹相比,儿童房则延续简洁的风格,去主题色的设计是一种留白。纯粹童真的色彩,应该留给孩子自己来涂鸦。



老人房
老人房在兼顾浅灰色的基础上,赋予色彩更多可供解读的余地。浓淡渐变的圆形装饰充满艺术与哲学意味。生命是一个圆、一次溯源、一场回归。


客房
客房运用治愈系小摆件与艺术壁画,映射心灵放飞的自由。开敞明亮的视觉感官体验,给予客人宾至如归的礼遇。


透过与身体的对话,获得心灵的放松。自得其乐的“乐”,以让朴实的日子变得更加力量。瑜伽或SPA,不但代表墅居生活的品质,更代表着内省和疗愈。露台一角,蓝天白云,光影轮廓之流动,享受自然闲适生活。


人只有“存在”才能体会细水长流,而“存在”需要参照和投射。将现代艺术风格与现代品质生活自然融合,诠释着现代艺术美学的生活理念。世界,从家为原点,出发到远方,有家,便有生活,枕诗意栖居,看星河灿烂。