80㎡简约三居室,卧房榻榻米、洗手台外移,他们的退休生活很有趣
广州聚轩装饰
2021-11-13
项目信息
设计师:莫金梅
设计施工:聚轩装饰
项目地址:越秀·丽景台
房屋类型:旧房改造
装修风格:现代简约
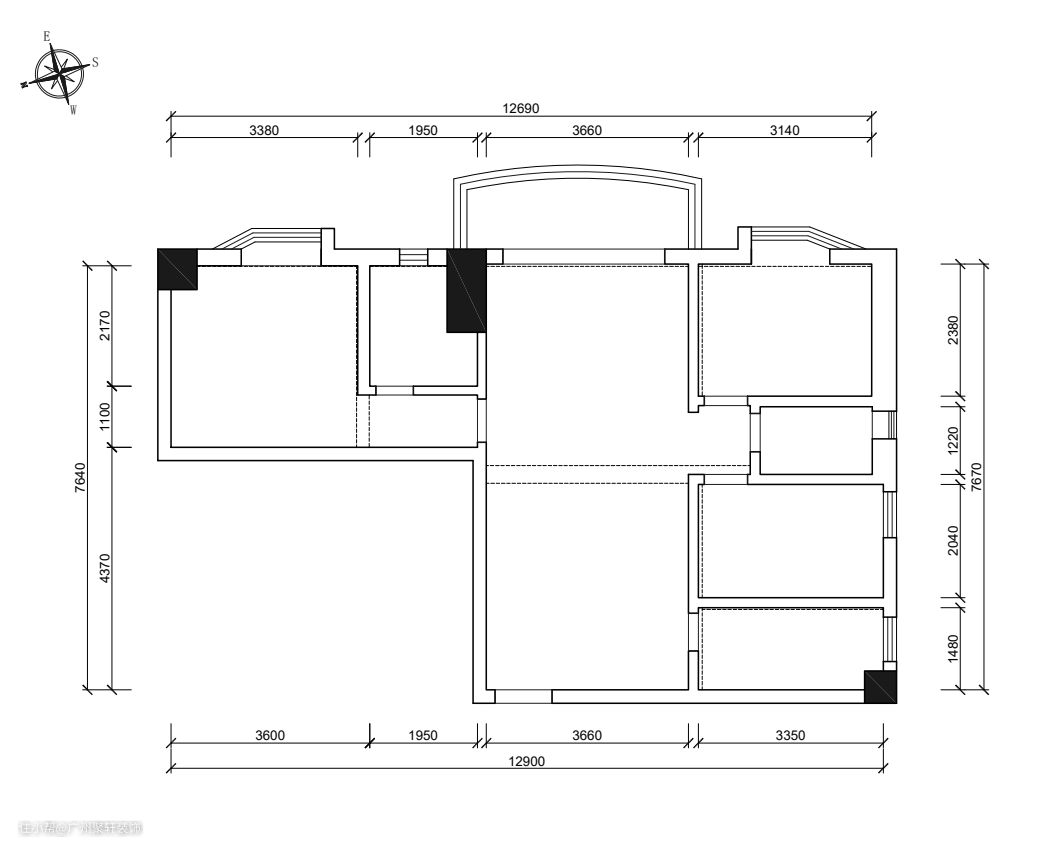
房屋面积:80㎡
房屋户型:三房两厅


说在前面
喜欢这对退休夫妻的家,并不是因为装修多精致,而是比起华丽感,两人更钟情于舒适度。
全屋是怎么简单怎么装,所有背景墙留白、吊顶走石膏线条、简单舒适的家具……在80㎡的居宅展开慢活闲逸而不失优雅的退休生活。
设计解析
01
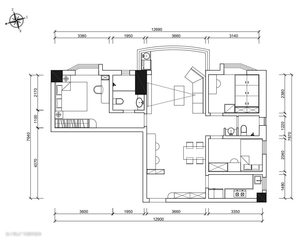
玄 关
平行于入户门,我们选择了沉稳的黑灰色隔断柜,能避免风水疑虑,也增强了室内外的隐密性。
靠墙一侧还放置了一个超薄鞋柜,做为补充储物用。大面积收纳的置入,保证了出入户整洁有序。


02
客 厅
黑白灰作为空间的主色调,利用一抹橙色带入空间暖意。

无论是素雅的灰色沙发、简单的一字型电视柜,还是带自然纹理的黑白茶几,都十分简单利落。主灯是一盏简约的「吸顶灯」,也是客厅的“小心机”。



环顾整个空间,无冗余的装饰,恰恰对应了居者去繁就简的生活态度。

03
阳 台
客厅与阳台之间墙体拆除,给室内带来了更敞亮的空间感。
阳台门垛处卡进了洗衣机烘干机,解决了洗衣晾晒的问题。阳台还承载了休闲功能,冬日午后,搬两把躺椅倚在这听听小曲、晒晒太阳...也很惬意。


04
餐 厅
餐厅延续简单,细脚大理石餐桌美观耐看又好清理,一盏别致的圆吊灯烘托出一日三餐的氛围感。

餐桌后设置了整墙餐边柜,几乎藏进客餐厅90%的物品,还留出了台面做“西厨”区,让业主日常的生活更便捷。


05
厨 房
长条形的厨房做了L型布局,还嵌入了冰箱,提高了下厨动线。
通体以白色为主的厨房设计,既能拉大厨房的视觉效果,又能让空间清爽干净。


06
卫生间
卫生间空间比较小,设计师把里面的空间做成淋浴区和马桶区,洗手台从卫生间移到外面,变成一个独立的盥洗区。
半墙隔断的洗手台设计,对于屋主来说再合适不过了,一体式浴室柜台盆搭配合适的灯光、镜子,格调满满。


07
主 卧
主卧的色调比较平和,以米白色为主,搭配上朴实的木地板,细腻而温暖。

床头背景墙是延伸的整墙衣柜,连接榻榻米床,不仅收纳功能强大,还很有设计感。床的三面留出了宽敞的空间,方便居者走动。
左侧的飘窗很好地将阳光引入室内,这对于老年人的身体健康也十分有利。

08
主 卫
主卫以米白色的墙砖搭配极浅灰的地砖,再加上白色的卫具,整体简洁大方。



09
次 卧
次卧是留给儿子偶尔回来住的,但功能也很强大。角落嵌入收纳型书桌,无论是阅读还是休闲,都能拥有最佳体验。


榻榻米床床头处,设计师顺势打造了通顶储物功能区,兼具美观与实用。

10
客房
客房空间比较小,没有过多的装饰。榻榻米床,实用满分。一柜到顶充分利用空间,既能装又不会顶部落灰。

