131平现代轻奢,低预算高效果,超大客厅,环岛餐厨梦想中的家
设计师十一
2021-11-25
哈喽,大家好,我是为大家介绍方案和开拓思路的设计师发发,此次带来的案例是130平,一家四口,目前是爷爷奶奶住在一起照顾小baby,所以在我们前期交流的时候女主人特别强调了几个需求:
1.需要特别多的储物空间。
2.大阳台不想浪费,想好好利用一下
3.一儿一女,儿子几个月大,女儿上一年级,所以需要独立的空间
4.厨房想要大空间,不希望冰箱占用厨房的空间。
......
在沟通过需求之后,确实需要对这个户型进行一些改造,还需要在布局上进行调整和优化,看方案!!

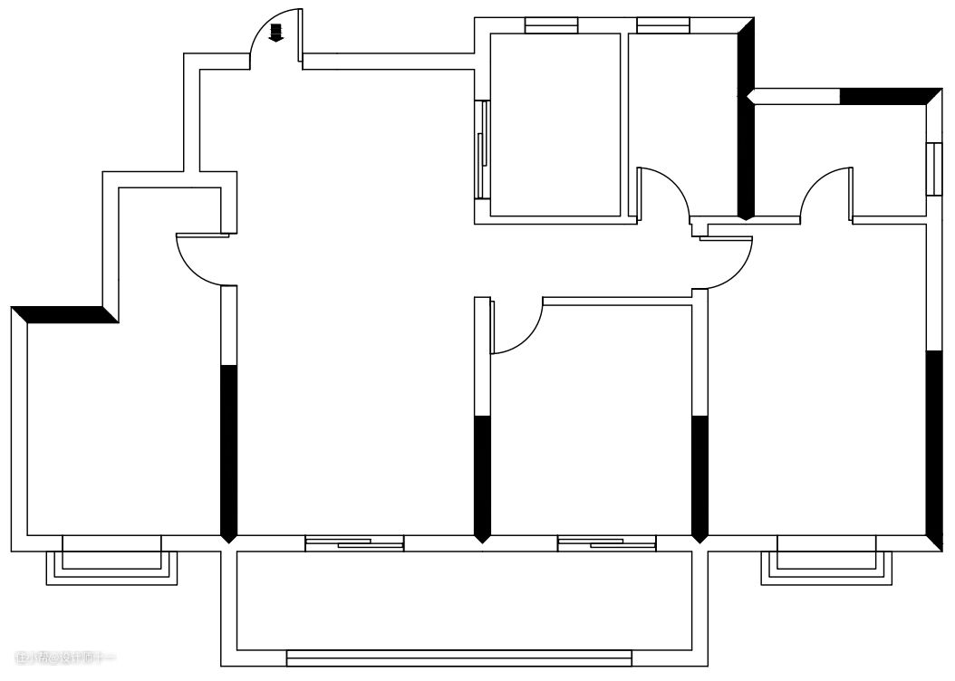
原始户型

户型更改,红色圆圈的位置做了墙体调整

平面布局鸟瞰图解析:
1.首先一进门右手边是鞋柜,我利用南次卧墙体的位置给冰箱做了安身之处,这样实现了女主人不希望冰箱占用厨房的愿望。
2.厨房做了开放式厨房,留了橱柜半面墙,也很好的给瓷砖做了收口留边。整体动线呈环形,一进门就可以放置果蔬,更方便了在厨房空间进行操作。
3.整体风格现代轻奢,没有用昂贵且厚重的护墙板,影视墙和沙发墙做了石膏板开槽混油工艺,在节省了成本的前提下还能达到想要的效果。
4.客厅阳台连接客厅成为一体,在休闲阳台设计了大案板,爸爸妈妈孩子能同时在这个案板上进行互动玩耍。阳台之前的连接运用子母门的设计,既不影响美观,又不会影响晾晒衣物的便利
剩下的我们每个空间单独看...

沙发墙做了石膏板开槽,石膏板整体包裹阳台墙垛,统一颜色和材质在视觉上阳台和客厅进行统一。

影视墙没有做复杂的造型,和沙发墙呼应

开放式厨房,岛台和餐桌连接

入户鞋柜,冰箱做嵌入式设计



阳台,保留了洗衣机的位置,更方便操作

主卧床尾做梳妆台

用L型衣柜隔开主卧和卫生间,避免卫生间反味影响卧室空气,冲门立面做了小件饰品存放抽屉


女孩房,利用柜体的侧面宽度做了榻榻米和书桌,既保证了孩子的休息空间,又能有单独的学习空间,榻榻米增加了两级抽屉台阶。同时做床尾出做了可活动的储物格,孩子的玩具都可以放置立面

女孩房入户正对衣柜,选用了白色不突兀也不会很压抑,床头单独做了软包造型。

南次卧,目前做老人房,所以这边连接这生活阳台,整体设计简洁大方


主卫

客卫,做了淋雨造型墙

厨房,用了亮面门板,在一定程度上能显得整体空间更敞亮。
以上就是整个方案的全部,有问题可以主页咨询,喜欢记得点个关注哦!!如果喜欢这个方案可以拿自家户型图来询问,承接全国效果图,等你>->