深圳香山美墅五期·云颂,装修案例,户型图167平,现代简约风
德派装饰&君尚软装
2021-12-08

项目地点:香山美墅五期·云颂
项目地点:深圳市南山区
项目面积:167㎡
风格定位:现代简约风格
交楼标准:毛坯房交付
服务模式:一站式整装
设计理念
本案风格定位于现代简约风,整体空间温文尔雅、简单流畅。软装色彩运用灰褐色、卡其色、木色等经典色,材质采用浅咖色皮革、灰色布艺、灰咖色进口木皮等,还有金属、石材、玻璃等搭配运用,让整体设计现代时尚又充满活力,在简约空间中彰显个性,开放的室内空间,深浅色的对比运用,绿植的点缀,塑出简洁优雅氛围。
现场照片

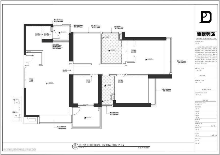
原始结构图

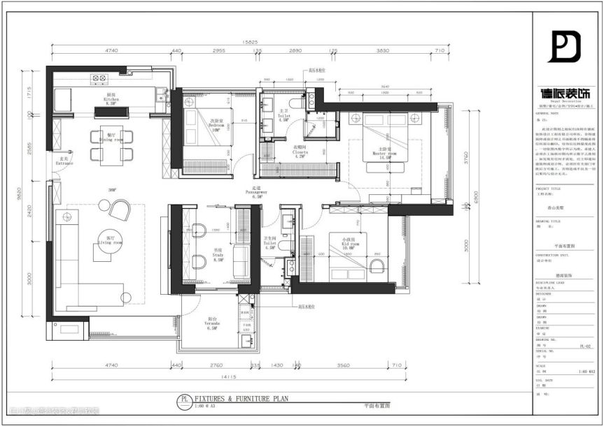
平面布置图

硬装材质分析

软装色彩分析

客餐厅
客餐厅纯粹的用色,自然的质感,地面铺贴了温馨的大理石纹地砖,两侧墙面和天花板都保持了白色+木色的基调,铺垫安静、雅润的气质,阔达感由心自然而起,随氛围渐入到平和温馨的生活节奏里。
入户木作系统柜作收纳,木饰面+通顶柜延伸,局部留空,黑色木门搭配木饰面,很有现代自然简约的感觉。

客厅浅灰色的布艺沙发和同色系地毯,搭配金色不锈钢+大理石组合茶几,顶面无主灯设计加入隐形灯带增添层次,营造舒适质朴氛围。
大面积的落地窗让室内光线充裕,给人明快干净的视觉体验,肌理清晰的白色大理石电视背景,简约的黑白两色相搭配,再加入独特精心的设计,让空间简约赋有张力。

餐厅布局简洁明快,大理石的餐桌台面和皮质的坐垫靠背餐椅,墙面一幅创意的装饰画,搭配上一盏别致的金属水晶吊灯,整个餐厅让人感觉很有格调感。
封闭式的厨房设计,更符合于国人,黑色边框的玻璃推拉门,设计上节省了空间,玻璃的选材既阻挡了油烟,又不会阻挡光线。
客餐厅一体化的设计,在木头的温润与石材的刚硬凌冽交织一起,勾勒出独特的空间气质,在优雅极简中展现出质感的生活品味。
主卧

主卧舒适性和方便是设计的前提,同样没有选用过多鲜艳的色彩,休息区域它是静谧的,以简约线条勾勒出极致舒适的当代生活哲学,散发出舒适优雅的都市情调。
暖咖色背景墙布置一幅装饰画,浅灰白床品和家具,床头点缀精致灯饰,木质地板与羊绒地毯的搭配,暖黄色的光洒满卧室的每一个角落,暖意十足,使得卧室不禁的上升了一个档次,将飘窗打造卧室的休闲一隅,简约实用,每一个细节只为成就满意的家居生活。