她家扔掉餐桌、扔掉书架,电视柜打横放,却能装又好看!
内蒙古赤峰橘子装饰
2021-12-27
今天给大家看点不一样的设计!
由我们有才情的帅哥设计师小洋主笔撰稿,晒给大家看看他的设计思路,让大家在装修路上少走弯路~
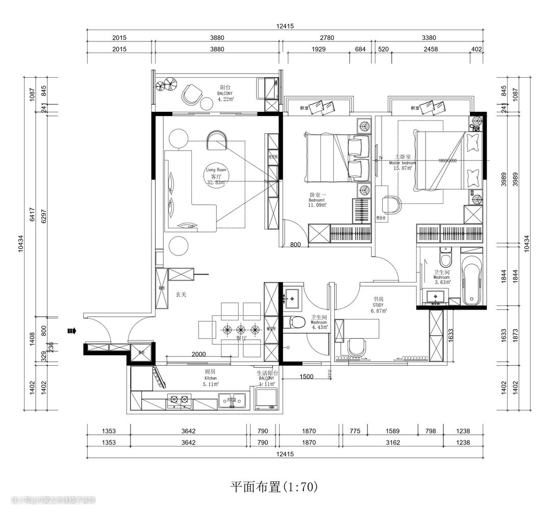
这是我设计给三口之家的样板房,也是将我的收纳概念,从平面图完整呈现到实体空间的“收纳实验室”。
住宅信息
面积:88㎡
户型:2房2厅
人口:2个

相比起帮业主们设计规划住宅,必须同时兼顾他们的喜好、预算、需求等因素,样板房由于没有特定的居住者,只需要锁定族群,所以,可以把所有想做的收纳设计通通纳入其中,呈现自己心目中最实用、最完美的收纳设计。
设计说明
隐藏式收纳设计:在空间条件不足的情况下,物品展示与隐藏的比例分别为2:8,将80%的物件藏起来,才不会压缩空间感;
柜体的不规则、非常规组合:按照动线适当设计层板区与抽屉区;摆脱柜子一定要正正方方的刻板印象,定制斜切面玄关、T字型餐边组合柜等设计,节约空间之余,也挖掘出更多的储物空间。
贴合生活的匠心细节:比如玄关的鞋柜不但能收纳鞋靴,还搭配长虹玻璃作为隔断,保护隐私;
玄关
在顶天立地的柜体上打破常规,加入斜切面设计,悄悄为玄关增加收纳空间,进门即可快速放置随身物品。

▲玄关俯视图

▲玄关正视图

▲玄关鞋柜侧视图

▲玄关鞋柜细节图
▲玄关鞋柜打开动态展示图
客厅
考虑到如今的客厅,早已脱离以电视机为中心的设计模式。所以这个空间设定为一家人感情联络的场所,因此,电视柜做的体量较小,让客厅的视觉更轻盈些,让家人呆在这心情更放松。

▲客厅俯视图

▲客厅正视图

▲客厅侧视图

▲客厅细节图
▲客厅电视柜打开展示图
餐厅
餐厅定制了带桌面的餐边柜,将用餐区的位置压缩的同时,使用也更高效了:日常常用的水杯、热水壶、榨汁机都安置于此,不用厨房、餐厅两边跑。

▲餐厅俯视图

▲餐厅侧视图

▲餐厅斜视图

▲餐厅正视图
▲餐边柜打开示意图
卧室
别看卧室陈设简单,里面藏着不少设计小心机:贴合天花定制了到顶的大衣柜,床头柜也是定制的,尽可能挖掘边角的储物空间,减少卫生死角。

▲卧室俯视图

▲卧室侧视图

▲卧室斜视图

▲卧室正视图
▲衣柜打开示意图
书房
书房的梁柱和边角都比较多,所以设计师贴合墙体定制了柜子,将尴尬的凹位填满,把边角和梁柱都变废为宝。

▲书房正视图

▲书房定制书柜图

▲书房侧视图
装修是人生大事,错1次都嫌多!多找几个设计师咨询,货比三家、不后悔!