66㎡莫兰迪色小宅,LDK、玻璃隔断...高级感十足!
千思装饰总店
2021-12-28
这套66㎡的公寓,屋主是一对夫妻。设计师在满足居住者使用需求的基础上,全屋采用柔和的莫兰迪配色,高级感十足。

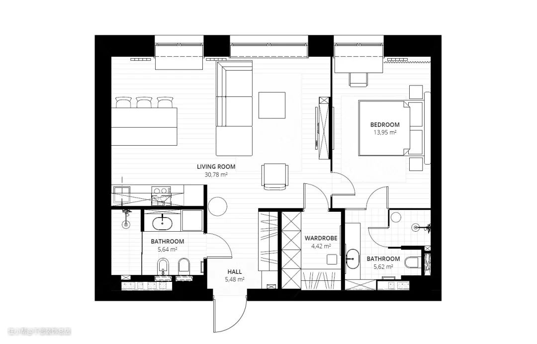
▲ 平面布局图
全屋格局方正,空间一分为二,靠近采光窗户一侧安排客餐厨和卧室,另一侧则布置卫生间、玄关、衣帽间等功能性空间。

▲ SU模型图
客厅


客餐厅和卧室之间用玻璃隔断分开,尽可能让采光通风穿透无阻,大胆的布局给予居住者更舒适的体验。

▲ 采光良好的起居空间

临窗增设飘窗坐榻,底部的开放层板刚好收纳屋主常看的书籍等,打造小小阅读角
餐厨

▲ 一体式LDK

开放式厨房面积不大,黑色+原木色橱柜,清冷中带着温暖,契合全屋柔和中性色调。
▲ 嵌入式冰箱


空间虽小,五脏俱全,冰箱做隐藏式设计,烤箱也提前确认好尺寸嵌入橱柜,准备日常简餐足够使用。
中岛与餐桌结合,平时除了用餐,还能约上朋友小酌一杯,或是临时办公。
卧室

▲ 黑框玻璃门后面是卧室

卧室延续客厅的莫兰迪配色,低调温柔,营造放松舒眠的休憩氛围。


床头简洁几何吊灯,提供睡前照明,也引入现代美学的利落感。

卧室临窗采光最好的地方布置书桌兼化妆桌,满足屋主的多功能需求。

▲ 书桌一角
衣帽间

独立衣帽间,透明柜门 + 氛围灯带,收纳展示当季常穿的衣服,方便穿搭,侧面封闭高柜储藏换季衣物。
卫生间

▲ 从主卫看向卧室


主卫同样选用黑色墙砖 + 木饰面,地面铺设花砖点缀避免沉闷,细腻丰富的材质搭配,凸显功能性空间的美学体验。

▲ 干湿分离
壁挂马桶 + 清洁喷枪,不留清洁死角,半墙上部增加收纳柜,存放囤积的日用品,简洁而实用。